QQ登录

只需一步,快速开始

登录 | 注册 | 找回密码

三维网

 找回密码
 注册

QQ登录

只需一步,快速开始

展开

通知     

查看: 1701|回复: 2
收起左侧

[求助] 图形编辑问题

[复制链接]
发表于 2010-1-19 22:58:34 | 显示全部楼层 |阅读模式 来自: 中国湖北鄂州

马上注册,结识高手,享用更多资源,轻松玩转三维网社区。

您需要 登录 才可以下载或查看,没有帐号?注册

x
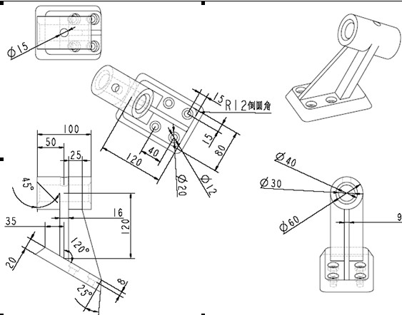
如图所示' i6 H  s$ Z% Y# O0 i0 c
我想问一下% m( Z# ?0 f- T. }6 H3 E
在装配图中,如果我把底板和凸台装配到一起后,还能不能在这图形上面画编辑出筋特征啊?
8 a" T5 V8 j# @5 `还是说只有在零件图中把这张图完整地画出来?' K6 i9 P( h: B
谢谢了!; q' e1 e/ k' F1 X/ `4 H
445F63C0-8261-4C71-B0B0-B8D706684E4C.jpg image002.jpg
头像被屏蔽
发表于 2010-1-20 08:24:57 | 显示全部楼层 来自: 中国辽宁营口
提示: 作者被禁止或删除 内容自动屏蔽
发表于 2010-1-20 08:32:52 | 显示全部楼层 来自: 中国上海
两个办法:1作为一个独立零件来处理;2作为装配体处理,在装配体中也能对零件进行编辑,如加筋。
发表回复
您需要登录后才可以回帖 登录 | 注册

本版积分规则


Licensed Copyright © 2016-2020 http://www.3dportal.cn/ All Rights Reserved 京 ICP备13008828号

小黑屋|手机版|Archiver|三维网 ( 京ICP备2023026364号-1 )

快速回复 返回顶部 返回列表