QQ登录

只需一步,快速开始

登录 | 注册 | 找回密码

三维网

 找回密码
 注册

QQ登录

只需一步,快速开始

展开

通知     

查看: 1992|回复: 24
收起左侧

[求助] look 这家伙咋做

[复制链接]
发表于 2010-1-8 13:56:56 | 显示全部楼层 |阅读模式 来自: 中国山东烟台

马上注册,结识高手,享用更多资源,轻松玩转三维网社区。

您需要 登录 才可以下载或查看,没有帐号?注册

x
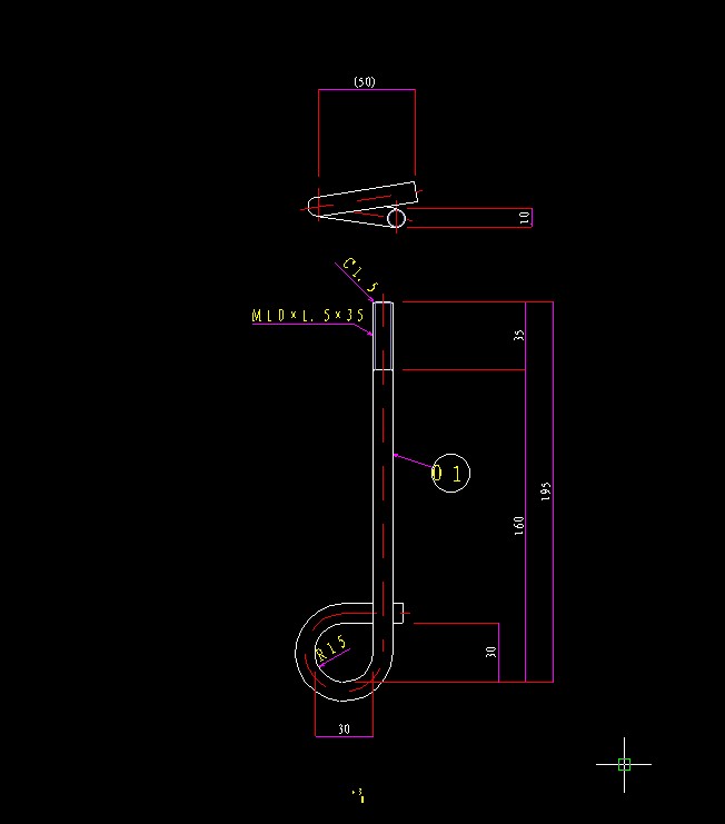
这玩意没有思路做,做了一个也不像 大家帮着看看 有心的提供下思路 或者帮忙做一个 记得把源文件附上 感谢 螺栓.jpg 不像.jpg
发表于 2010-1-8 14:04:46 | 显示全部楼层 来自: 中国江苏无锡
扫描就好了,思路很清晰的
发表于 2010-1-8 14:17:27 | 显示全部楼层 来自: 中国北京
已经很好了,干嘛谦虚啊?
# z# t: V% l' t只是感觉2维图标注怪怪的。
发表于 2010-1-8 14:21:13 | 显示全部楼层 来自: 中国江苏常州
原二维图的主视图投影有问题
发表于 2010-1-8 14:31:30 | 显示全部楼层 来自: 中国广东佛山
用3D扫描就可做出来,上面平面图好像不是solidwork做的,而且投影用了第三角投影
发表于 2010-1-8 17:36:38 | 显示全部楼层 来自: 中国江苏苏州
LZ贴出的二维图纸,绝对是个新手标注的。哪有这样搞的。。
* z) A4 X/ n5 f根本不方便折弯。。。
 楼主| 发表于 2010-1-8 19:41:19 | 显示全部楼层 来自: 中国山东烟台
这是个日本图纸
 楼主| 发表于 2010-1-8 19:43:29 | 显示全部楼层 来自: 中国山东烟台
问题是下面那个位置的螺旋 大家做个我看看 我知道是扫描 但是我螺旋线跟直线组合后 扫描完 再把螺旋那个位置切除一半然后拉伸的  大家做个我看看
发表于 2010-1-8 22:22:15 | 显示全部楼层 来自: 中国江苏苏州
是只样子?
888.JPG
发表于 2010-1-8 23:33:07 | 显示全部楼层 来自: 中国四川德阳
楼上的做的很好啊,是不是直接扫描的
0 e, P- h; ]1 A5 O0 g+ c另外,楼主那个二维图有点怪怪的
 楼主| 发表于 2010-1-9 09:40:13 | 显示全部楼层 来自: 中国山东烟台
9楼把你的源文件 发上来好吗?我看看
发表于 2010-1-9 09:45:49 | 显示全部楼层 来自: 中国山东滨州
做的很好,发个文件看看!
发表于 2010-1-9 10:55:58 | 显示全部楼层 来自: 中国江苏无锡
3D草图的螺旋怎么弄的
发表于 2010-1-9 11:06:06 | 显示全部楼层 来自: 中国湖北武汉
9楼把你的源文件 发上来好吗?我看看
7 p8 P2 k- w) E& ftxz1314 发表于 2010-1-9 09:40 http://www.3dportal.cn/discuz/images/common/back.gif
) X, B9 x+ S9 ]5 i" B+ h
好吧,我来传一个给你,看看是不是这个样子的?注意:我没有按你的尺寸做的! lok.rar (118.74 KB, 下载次数: 14)
发表于 2010-1-9 11:51:37 | 显示全部楼层 来自: 中国广东广州
I do NOT konw
发表于 2010-1-9 11:52:08 | 显示全部楼层 来自: 中国广东广州
如何整没做过这东西(*^__^*) 嘻嘻……
 楼主| 发表于 2010-1-9 11:52:54 | 显示全部楼层 来自: 中国山东烟台
昏死中2010版的 我的是09版的打不开
发表于 2010-1-9 12:19:33 | 显示全部楼层 来自: 中国湖北武汉
稍等,我再用sw2009的试着做一个给你好吗?
发表于 2010-1-9 12:38:58 | 显示全部楼层 来自: 中国江苏苏州
其实很简单用弯曲
999.jpg

弯曲.zip

90.02 KB, 下载次数: 19

发表于 2010-1-9 12:41:44 | 显示全部楼层 来自: 中国湖北武汉
look.rar (86.79 KB, 下载次数: 8)
 楼主| 发表于 2010-1-10 09:40:37 | 显示全部楼层 来自: 中国山东烟台
感谢各位19楼用的弯曲比较好玩 以前没玩过
 楼主| 发表于 2010-1-10 10:23:49 | 显示全部楼层 来自: 中国山东烟台
xuxinzhi2006 你 的QQ号码 多少 我可以加你吗
发表于 2010-1-10 10:31:00 | 显示全部楼层 来自: 中国江苏南通
很好,谢谢,学习了。
发表于 2010-1-10 10:48:59 | 显示全部楼层 来自: 中国吉林吉林市
19楼的看了下 方法很好
发表于 2010-1-10 13:19:32 | 显示全部楼层 来自: 中国湖北武汉
我也看看弯曲是怎么做的,学习一下。
发表回复
您需要登录后才可以回帖 登录 | 注册

本版积分规则


Licensed Copyright © 2016-2020 http://www.3dportal.cn/ All Rights Reserved 京 ICP备13008828号

小黑屋|手机版|Archiver|三维网 ( 京ICP备2023026364号-1 )

快速回复 返回顶部 返回列表