QQ登录

只需一步,快速开始

登录 | 注册 | 找回密码

三维网

 找回密码
 注册

QQ登录

只需一步,快速开始

展开

通知     

查看: 1439|回复: 1
收起左侧

[求助] 高手请进,液控换向阀的控制问题

[复制链接]
发表于 2010-1-5 17:08:16 | 显示全部楼层 |阅读模式 来自: 中国广东广州

马上注册,结识高手,享用更多资源,轻松玩转三维网社区。

您需要 登录 才可以下载或查看,没有帐号?注册

x
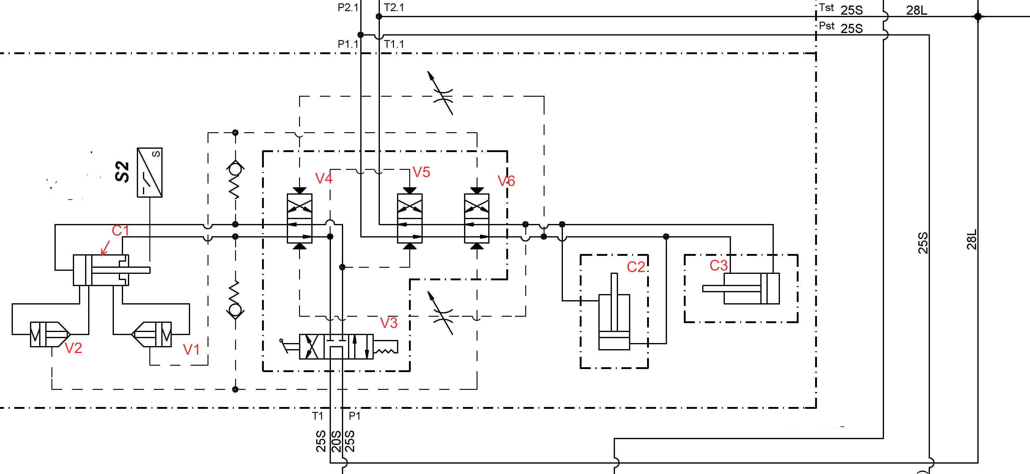
砼泵使用两位四通液控换向阀自动控制油缸换向,两个油缸的换向阀换向控制压力同对方的主缸压力相关联,问题:2 U4 d( n' ?4 u( V$ L
1、插装阀的作用和原理5 M8 Z: u" Q# v6 \. O  H+ g& T! X1 f
2、两位四通液控换向阀换向压力,达到多大压力换向,各位有些这方面的资料吗?
4 z. V% K4 |3 B- D! i; ?3、单向阀的作用,估计单向阀的压力设置和换向阀先导压力有关。+ i; j# V0 a8 ^$ s1 s+ q
4、节流阀的作用
' S1 r2 K* u5 M, |% `1 S7 I7 u5、谁能列出各个油缸和阀的动作时续表吗? 砼泵工作原理.jpg
发表于 2010-1-5 20:29:31 | 显示全部楼层 来自: 中国江苏徐州
1.插装阀的作用是换向压力油发生器;( k9 t! V2 h: }- e# O4 r
2.不知;+ o9 a0 ?2 E* Y& K8 G
3.单向阀是背压阀作用;
- T" K$ B' X) j$ X3 y' U! _4.节流阀控制主油缸换向速度,减少冲击;
发表回复
您需要登录后才可以回帖 登录 | 注册

本版积分规则


Licensed Copyright © 2016-2020 http://www.3dportal.cn/ All Rights Reserved 京 ICP备13008828号

小黑屋|手机版|Archiver|三维网 ( 京ICP备2023026364号-1 )

快速回复 返回顶部 返回列表