QQ登录

只需一步,快速开始

登录 | 注册 | 找回密码

三维网

 找回密码
 注册

QQ登录

只需一步,快速开始

展开

通知     

查看: 2240|回复: 11
收起左侧

[求助] 自己想了一个月都没解决的问题~实在没招了,向高手取经

[复制链接]
发表于 2009-12-26 10:54:46 | 显示全部楼层 |阅读模式 来自: 中国广东佛山

马上注册,结识高手,享用更多资源,轻松玩转三维网社区。

您需要 登录 才可以下载或查看,没有帐号?注册

x
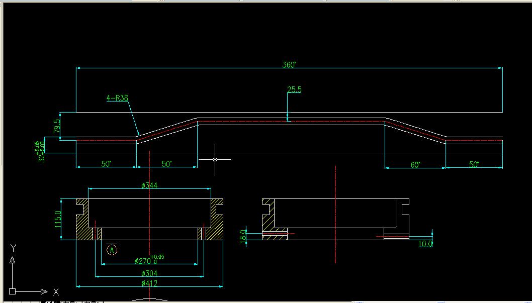
附件是公司的一个零件图~只有CAD图,要求UG三维建模,本并不难,可是那些展开线度长度什么确定,尽管可以画出来,但是展开线尺寸不对,三维模型也不准确,,  a# T. N' x% h( Y( ?
求教各位大虾,图中每段展开线长度什么计算啊?或在UG如何画是好(需要精确的弧长)?只有度数,不知道什么计算长度,UG画不出精确尺寸~~期待高手解答,谢谢* e* P! x# P  N: \8 p& x
& h/ m4 Z9 Y0 h; o" T! i3 x
[ 本帖最后由 hnld888 于 2009-12-26 11:04 编辑 ]
截图00求助.jpg

展开图.rar

26.67 KB, 下载次数: 24

发表于 2009-12-26 11:39:00 | 显示全部楼层 来自: 中国山东青岛
从CAD导入UG的东东是可以直接用的啊。我以前常那么用的,没问题。
. K+ z0 V7 |3 p6 x! \不知楼主具体问题为何。是不是导入时没有设定单位啊?
发表于 2009-12-26 13:08:07 | 显示全部楼层 来自: 中国上海
展开线长度和你以哪个直径展开有关,如果要很准确的(貌似很准确)表示出展开线的长度,只有用方程式来表示,因为π是一个无理数,无论你给出多少位都是不准确的,所以只有把π的值交给软件自己去处理。
 楼主| 发表于 2009-12-26 13:58:33 | 显示全部楼层 来自: 中国广东佛山
谢谢楼上解答~关键是CAD图不是按比例来画的~CAD图不正确~就一个CAD尺寸图~但是要按照尺寸建模~没有各户CAD文件~
发表于 2009-12-26 15:34:08 | 显示全部楼层 来自: 中国湖北襄阳
麽认真考虑,过来看看,
发表于 2009-12-26 16:56:16 | 显示全部楼层 来自: 中国上海

回复 4# hnld888 的帖子

UG是参数化三维软件,草图(或其它)不要在CAD里画,而在UG里重画,用方程式去驱动展开尺寸,你要用CAD画草图就没办法。
发表于 2009-12-27 16:05:15 | 显示全部楼层 来自: 中国浙江金华
不是有角度50,60和高度尺寸吗?只要尺寸是准确的,那就非常简单.
2 {4 |; O. M% o9 p/ O园柱上挖位移槽只要确定位移段的角度及升角(也就是这里的高度尺寸)就可以精确画出.
发表于 2009-12-27 16:35:17 | 显示全部楼层 来自: 中国
原帖由 czy12 于 2009-12-27 16:05 发表 http://www.3dportal.cn/discuz/images/common/back.gif  e8 c3 k4 ?2 J3 V: I
只要尺寸是准确的

5 S4 v3 y4 ~/ O0 ^4 ?" o) x, u7 d- c. ^, S7 n
问题恰恰就在这里,这个图从图形到标注都有错误,恐怕神仙也要无所适从了.
发表于 2009-12-27 20:12:06 | 显示全部楼层 来自: 中国浙江金华
按LZ的图,只是把79.5按实际测量改为79.1,25.5,总高115,(不要去管32),按50,50,50,60位移角,不必去管弧长,这里按外径作为展开尺寸,槽深20,宽20.) M" ]. A* H# U
* O0 u* I- t+ g1 U; V- z0 G
[ 本帖最后由 czy12 于 2009-12-28 08:40 编辑 ]
发表于 2009-12-29 10:18:03 | 显示全部楼层 来自: 中国浙江嘉兴

看看对不,对的话孔自己画,无聊随便玩玩的,呵呵

55.rar (191.82 KB, 下载次数: 1)
发表于 2009-12-29 12:41:53 | 显示全部楼层 来自: 中国浙江嘉兴
截图326.jpg

评分

参与人数 1三维币 +5 收起 理由
唐昕晨 + 5 应助

查看全部评分

发表于 2010-1-3 13:09:30 | 显示全部楼层 来自: 中国山西太原
使用UG草图进行建模,然后做展开图,没有问题
发表回复
您需要登录后才可以回帖 登录 | 注册

本版积分规则


Licensed Copyright © 2016-2020 http://www.3dportal.cn/ All Rights Reserved 京 ICP备13008828号

小黑屋|手机版|Archiver|三维网 ( 京ICP备2023026364号-1 )

快速回复 返回顶部 返回列表