QQ登录

只需一步,快速开始

登录 | 注册 | 找回密码

三维网

 找回密码
 注册

QQ登录

只需一步,快速开始

展开

通知     

全站
9天前
查看: 2000|回复: 2
收起左侧

[注意] 这个风罩怎么加工

[复制链接]
发表于 2009-12-14 17:12:38 | 显示全部楼层 |阅读模式 来自: 中国江苏徐州

马上注册,结识高手,享用更多资源,轻松玩转三维网社区。

您需要 登录 才可以下载或查看,没有帐号?注册

x
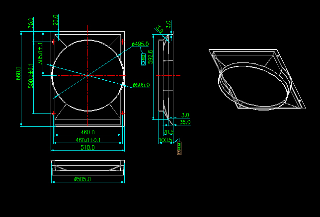
公司接了一个风罩,小弟新手。请教下大家这个产品应怎么拆分开焊接& w! v. g; r& u4 I1 l4 d9 W7 V! q
客户要求让焊接
未标题-1副本.jpg

风罩.pdf

84.82 KB, 下载次数: 3

发表于 2009-12-14 17:32:19 | 显示全部楼层 来自: 中国陕西西安
如果是单件生产,可按图折线位置下料该滚园的滚圆该成型的成型,然后采用对接焊组立即可。采用氩弧焊则零件变形小些。
发表于 2009-12-14 18:16:36 | 显示全部楼层 来自: 中国辽宁营口
就是矩形法兰与罩子分开加工,然后焊在一起
发表回复
您需要登录后才可以回帖 登录 | 注册

本版积分规则


Licensed Copyright © 2016-2020 http://www.3dportal.cn/ All Rights Reserved 京 ICP备13008828号

小黑屋|手机版|Archiver|三维网 ( 京ICP备2023026364号-1 )

快速回复 返回顶部 返回列表