QQ登录

只需一步,快速开始

登录 | 注册 | 找回密码

三维网

 找回密码
 注册

QQ登录

只需一步,快速开始

展开

通知     

全站
9天前
查看: 1424|回复: 5
收起左侧

[已解决] 图示尺寸如何理解

[复制链接]
发表于 2009-12-1 15:15:39 | 显示全部楼层 |阅读模式 来自: 中国江苏泰州

马上注册,结识高手,享用更多资源,轻松玩转三维网社区。

您需要 登录 才可以下载或查看,没有帐号?注册

x
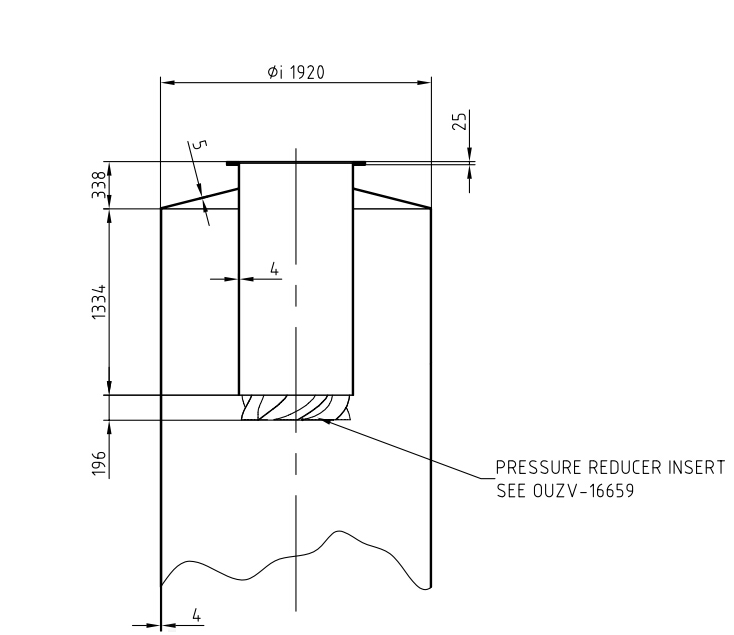
图示尺寸如何理解?
Image00012.jpg
 楼主| 发表于 2009-12-1 15:16:48 | 显示全部楼层 来自: 中国江苏泰州
忘了说是图中的1920前面的i是什么意思?内径吗?
发表于 2009-12-1 15:30:38 | 显示全部楼层 来自: 中国浙江杭州
是哪里的图纸啊,国内没有这种标法的,没见过/...............
发表于 2009-12-1 15:30:44 | 显示全部楼层 来自: 中国辽宁鞍山
内径1920mm壳体厚度4mm.
发表于 2009-12-1 15:53:39 | 显示全部楼层 来自: 中国江苏常州
同意楼上的,i可能是inside简写。
发表于 2009-12-2 11:55:13 | 显示全部楼层 来自: 中国四川德阳
φi就是φ内,及内径
发表回复
您需要登录后才可以回帖 登录 | 注册

本版积分规则


Licensed Copyright © 2016-2020 http://www.3dportal.cn/ All Rights Reserved 京 ICP备13008828号

小黑屋|手机版|Archiver|三维网 ( 京ICP备2023026364号-1 )

快速回复 返回顶部 返回列表