QQ登录

只需一步,快速开始

登录 | 注册 | 找回密码

三维网

 找回密码
 注册

QQ登录

只需一步,快速开始

展开

通知     

查看: 2477|回复: 15
收起左侧

[已答复] 帮忙计算定位误差,谢谢

[复制链接]
发表于 2009-10-30 16:51:08 | 显示全部楼层 |阅读模式 来自: 中国山东泰安

马上注册,结识高手,享用更多资源,轻松玩转三维网社区。

您需要 登录 才可以下载或查看,没有帐号?注册

x
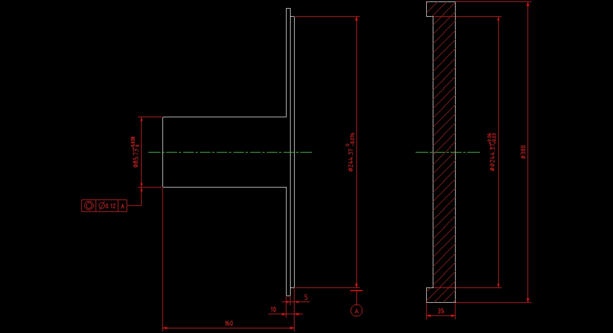
如图,请问用工件底面止口定位,公差如图所示,请问能否保证0.12的同轴度
0 Y( f. G8 N4 q% L; i' f6 Q止口尺寸为244.37 0 -0.076   定位止口为244.37 +0.06 +0.03 要求同轴0.12,谢谢各位
Drawing1.jpg
发表于 2009-10-30 18:01:35 | 显示全部楼层 来自: 中国江苏常州
问题不大,不过你的定位止口及定位端面必须是在机床上直接车出,或者装配时校正回转同轴度及端面跳动至0.02以内。
3 \# A+ d% W7 P! A
9 ^8 ]$ Z  ^6 ^" K[ 本帖最后由 ftgww123 于 2009-10-30 18:02 编辑 ]

评分

参与人数 1三维币 +2 收起 理由
天际孤帆 + 2 鼓励交流

查看全部评分

 楼主| 发表于 2009-11-2 15:50:51 | 显示全部楼层 来自: 中国山东泰安
您好,如果用定位误差的计算方法能行吗?) X4 E% W: C! |9 F4 M9 G
我本想&D+&d+Xmin=&Y,这样算出来对吗?
6 z. U$ G* z, W* u# V9 Y7 p比如我想保证0.12的同轴度,应该怎样计算才行?
发表于 2009-11-2 16:11:23 | 显示全部楼层 来自: 中国江苏常州
其实要保证同轴度和计算定位误差是两个概念
3 X, m2 _! N9 e& u( ^  a$ R0 r定位误差的计算是对的
5 V( h% i/ E' C* B& |但是要保证同轴度,
0 t. o, V( ?, V( ?- o必须考虑机床系统的本身的同轴度误差-------如果是0.02-0.04' o( ^) q# |, A7 v
那么,你的定位误差必须小于0.08才行
5 J9 x! X- S  _* X所以,你可以确定你的工艺尺寸2 J" w+ \  M0 b# d, m0 i% f
止口定为0/-0.05
4 _8 z% {& Z* J8 }0 o1 N定位止口定为+0.01/+0.03+ b, n4 Q+ I1 M) r3 f
-----------------------------
6 z! D$ o- y; n6 ~# f9 G' S& B一家之盐

评分

参与人数 1三维币 +2 收起 理由
天际孤帆 + 2 技术交流

查看全部评分

 楼主| 发表于 2009-11-2 16:39:43 | 显示全部楼层 来自: 中国山东泰安
谢谢您的回复7 |8 y( o* T( D6 r$ R
如果我这样计算:位移误差0.09-0.076+0.03=0.044,这样计算出来的结果对吗?这个误差是直径范围的波动对吧?  U" S# l. D" [" Z, x2 U' w4 P
突然明白了,这个同轴度完全可以用平面保证,所以位移误差影响的可能是前面圆柱的尺寸,同轴度并每影响,是吧?
发表于 2009-11-2 17:10:00 | 显示全部楼层 来自: 中国天津
不对。基于你现有的加工设计,需要确保加工后(D85.75mm)径跳0.016mm内(设备上测量),即可保证同轴0.12mm。你可以做一下CPK测算一下工艺稳定性,如不好,可以调整止口公差(减小)。
 楼主| 发表于 2009-11-2 17:23:01 | 显示全部楼层 来自: 中国山东泰安
为什么这么说,为什么保证径向跳动0.016内就可以保证同轴度0.12?可以给出理论依据吗?关于CPK,如果方便的话给些说明,非常感谢老师
发表于 2009-11-2 17:45:02 | 显示全部楼层 来自: 中国天津
不考虑D85.75与定位平面的垂直问题(止口高度较小),同轴可简单视为同心。止口与定位止口的极限偏差值为0.106,装配间隙至少0.002,实际极限偏差0.104,0.12-0.104=0.016。检测时转化为检测径向跳动。) Y/ n7 I; ~0 G' A# M% ^
CPK可以下载SPC教程学习一下即可。(建议定的高一些,例如cpk>=1.67)
 楼主| 发表于 2009-11-2 19:16:09 | 显示全部楼层 来自: 中国山东泰安
请问如果是极限偏差值,为什么不选择0.076和0.06的和?为什么要选择两个下偏差,这种结果准确吗》
: I+ ?1 d5 ]( H  R- V# m  y( C对于CPK,谢谢指点
发表于 2009-11-3 08:52:09 | 显示全部楼层 来自: 中国重庆
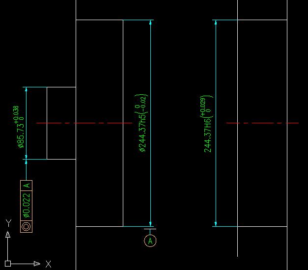
这只是一个简单粗略标法,严格来说还得考虑圆柱度等问题,你看行么2 p0 J" }* Q+ K0 D; k
1 ?' l, Y8 t: K3 Q: l! {9 q
刚才算错了,图形改了个5 x4 C# d3 _$ k- B1 T* B9 y5 c3 t

0 N, x8 {7 B. b3 q! ^  K这种情况最好还是先配合,再车/ X( S) \* \3 S7 o. d

3 ]4 `4 ^1 L4 D( |9 s/ T2 k[ 本帖最后由 lussssssssss 于 2009-11-3 09:51 编辑 ]
未命名a.JPG
未命名a2.JPG

评分

参与人数 1三维币 +2 收起 理由
天际孤帆 + 2 鼓励交流

查看全部评分

发表于 2009-11-3 09:01:47 | 显示全部楼层 来自: 中国天津

回复 9# llu_2008 的帖子

计算的是两个公差带的极限偏差!你需要恶补一下基础知识了。
 楼主| 发表于 2009-11-3 09:40:59 | 显示全部楼层 来自: 中国山东泰安
不明白楼上的意思" p% z6 x- @6 H6 \' N  P
个人觉得吧,如果是这样计算,就取止口和定位止口间的最大间隙减去最小配合间隙,这个值应该可以考虑是径向跳动; T% j6 ~: L+ O  G: u6 l; t" _6 d
我基础知识不好,莫怪
 楼主| 发表于 2009-11-3 09:48:32 | 显示全部楼层 来自: 中国山东泰安
gerald_lee  我明白了,谢谢你,学到很多东西
 楼主| 发表于 2009-11-3 09:52:32 | 显示全部楼层 来自: 中国山东泰安
如果主轴有0.02的径向跳动怎么办?计算的数值要在0.106的基础上加吗?
发表于 2009-11-4 14:14:40 | 显示全部楼层 来自: 中国天津
是的。但是最好是装卡后,测量定位止口的径跳。最好减小点止口公差(以工艺基准重新定义公差作为控制手段),0.03~0.136mm的间隙太大了。
 楼主| 发表于 2009-11-5 14:45:37 | 显示全部楼层 来自: 中国山东泰安
gerald_lee' B# k' x  G& E% a1 G
关于CPK,你们用的是3丝格玛还是6丝格玛?% t' ]' @+ J: g' @+ |: z0 ~
另外,如果我主轴轴承有间隙,在没有调整的情况下,例如这个零件,加工出来的左端圆柱会出现椭圆吗?还是整个的尺寸都变细?
" }6 m# O4 w. C/ s如果存在间隙(0.02),零件在止口盘上出现偏心,这个偏心值(0.02)就应该直接加到上面说的同轴度上,对吗?
发表回复
您需要登录后才可以回帖 登录 | 注册

本版积分规则


Licensed Copyright © 2016-2020 http://www.3dportal.cn/ All Rights Reserved 京 ICP备13008828号

小黑屋|手机版|Archiver|三维网 ( 京ICP备2023026364号-1 )

快速回复 返回顶部 返回列表