QQ登录

只需一步,快速开始

登录 | 注册 | 找回密码

三维网

 找回密码
 注册

QQ登录

只需一步,快速开始

展开

通知     

查看: 1349|回复: 4
收起左侧

[已解决] 这样的工程图在SW中如何作?

[复制链接]
发表于 2009-10-28 09:38:33 | 显示全部楼层 |阅读模式 来自: 中国浙江宁波

马上注册,结识高手,享用更多资源,轻松玩转三维网社区。

您需要 登录 才可以下载或查看,没有帐号?注册

x
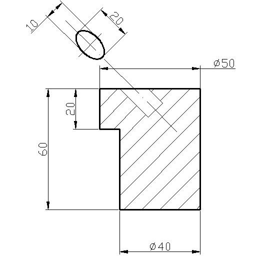
如题,这样的工程图在SW中如何做?& h/ W4 i/ l3 L
我现在的做法是用草图绘制一个斜孔的轮廓图来表现.不知有没有更好的方法?
8 S' A% I" M! A1 m2 o* z1 P9 i
6 I( m5 X" l1 `, }9 _. x[ 本帖最后由 19720205 于 2009-10-28 10:36 编辑 ]
求助.jpeg
发表于 2009-10-28 09:58:33 | 显示全部楼层 来自: 中国浙江湖州
按孔的方向做辅助视图,然后再剪裁视图,就是标注椭圆的长短边可能有点困难
 楼主| 发表于 2009-10-28 10:05:27 | 显示全部楼层 来自: 中国浙江宁波
谢谢楼上指点,我试一下.
头像被屏蔽
发表于 2009-10-28 10:29:49 | 显示全部楼层 来自: 中国辽宁营口
提示: 作者被禁止或删除 内容自动屏蔽
 楼主| 发表于 2009-10-28 10:35:35 | 显示全部楼层 来自: 中国浙江宁波
回楼上,我只是想知道如何做出孔的截面,所以上的图尺寸是不完全的.: ]% r: d; ?5 m7 B8 `: _: d7 {: ^7 d! U
根据2楼的指点,已做出.谢谢 chif0360 兄,也谢谢楼上的关注..
发表回复
您需要登录后才可以回帖 登录 | 注册

本版积分规则


Licensed Copyright © 2016-2020 http://www.3dportal.cn/ All Rights Reserved 京 ICP备13008828号

小黑屋|手机版|Archiver|三维网 ( 京ICP备2023026364号-1 )

快速回复 返回顶部 返回列表