QQ怬

Ö»ÐèÒ»²½£¬¿ìËÙ¿ªÊ¼

µÇ¼ | ×¢²á | ÕÒ»ØÃÜÂë

ÈýÎ¬Íø

 ÕÒ»ØÃÜÂë
 ×¢²á

QQ怬

Ö»ÐèÒ»²½£¬¿ìËÙ¿ªÊ¼

Õ¹¿ª

֪ͨ     

²é¿´: 1515|»Ø¸´: 8
ÊÕÆð×ó²à

[ÇóÖú] Һѹͼ

[¸´ÖÆÁ´½Ó]
·¢±íÓÚ 2009-10-26 21:24:30 | ÏÔʾȫ²¿Â¥²ã |ÔĶÁģʽ À´×Ô£º ÖйúÉϺ£

ÂíÉÏ×¢²á£¬½áʶ¸ßÊÖ£¬ÏíÓøü¶à×ÊÔ´£¬ÇáËÉÍæ×ªÈýÎ¬ÍøÉçÇø¡£

ÄúÐèÒª µÇ¼ ²Å¿ÉÒÔÏÂÔØ»ò²é¿´£¬Ã»ÓÐÕʺţ¿×¢²á

x
¸÷λ´óÏÀ£º3 J+ l$ Y, C3 P3 \$ g  n- @
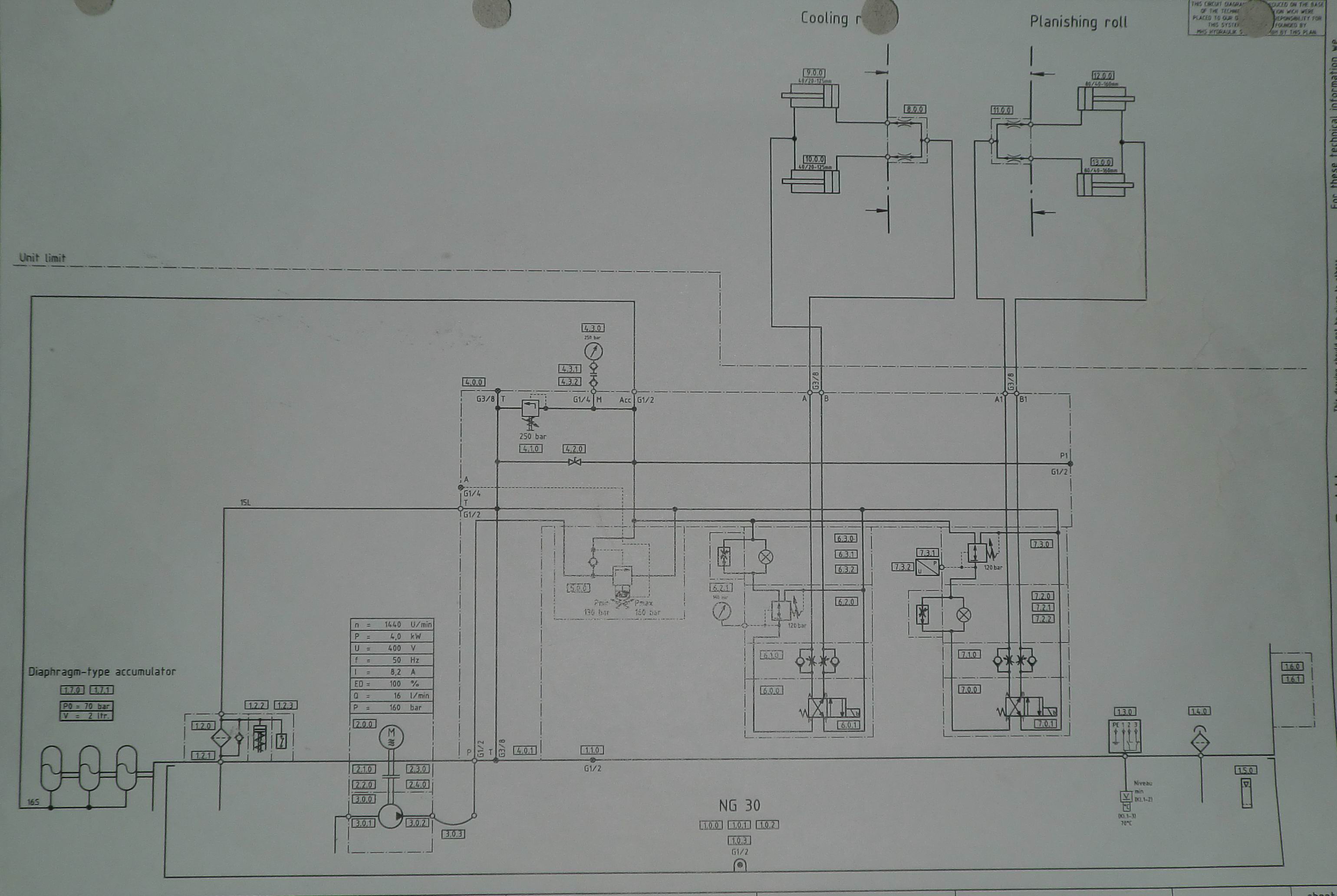
       ¸½¼þҺѹͼÖУ¬Óкü¸¸öÔª¼þ²»ÖªµÀÃû³ÆºÍ×÷ÓᣴúÂë4.1.0£¬1.2.2£¬1.2.3£¬5.0.0£¬ºÍϱê×¢120barµÄÔ­¼þ¡£Ð»Ð»ÁË
11.jpg
 Â¥Ö÷| ·¢±íÓÚ 2009-10-26 21:32:40 | ÏÔʾȫ²¿Â¥²ã À´×Ô£º ÖйúÉϺ£
Èç¹ûÄܰïÎÒ½éÉÜÕâ¸öϵͳ¹¤×÷Ô­ÀíÁ÷³Ì¾Í¸üºÃÁË
·¢±íÓÚ 2009-10-27 08:15:08 | ÏÔʾȫ²¿Â¥²ã À´×Ô£º ÖйúÁÉÄþ¸·ÐÂ
Ó¦¸ÃÊDZÈÀýÒçÁ÷·§Ö®ÀàµÄ£¬¿ÉÒÔÕÒһЩÕâÑùÑù±¾¿´Ò»¿´¡£
·¢±íÓÚ 2009-10-27 10:57:33 | ÏÔʾȫ²¿Â¥²ã À´×Ô£º ÖйúÁÉÄþ±¾Ïª
4.1.0--ÒçÁ÷·§¡£
5 [7 x) {. P- j; r" E; V) r$ I1.2.2ºÍ1.2.3ÊÇ»ØÂ˵ķ¢Ñ¶×°ÖÃ.
! ~$ s' U  G, u+ g. x' T# s5.0.0ÊÇжºÉÒçÁ÷·§.# Q& ]! w4 b- Q3 e7 N
±ê¶¨120barµÄÊÇÈýͨ¼õѹ·§.

ÆÀ·Ö

²ÎÓëÈËÊý 1Èýά±Ò +3 ÊÕÆð ÀíÓÉ
×ÔÁ÷¾® + 3 Ó¦Öú

²é¿´È«²¿ÆÀ·Ö

 Â¥Ö÷| ·¢±íÓÚ 2009-10-28 06:08:11 | ÏÔʾȫ²¿Â¥²ã À´×Ô£º ÖйúÉϺ£
¶àл¥ÉÏ´óÏÀ4 M) a; ]6 D, A, C: i- }5 O
£¬
·¢±íÓÚ 2009-10-28 19:02:53 | ÏÔʾȫ²¿Â¥²ã À´×Ô£º Öйú°²»ÕºÏ·Ê
1¡£ÄãÄÇ4¸öÓ͸×ÒªÇóÊä³öѹÁ¦·Ç³£Æ½ÎÈ£¬¾Í¼ÓÁËÁ½¸ö120BarµÄ¼õѹ·§£»8 L& N7 D2 m: b/ J6 l
2¡£Ó͸׷µ»ØÊ±£¬Ó¦¸ÃËÙ¶ÈÒªÇó·Ç³£Æ½ÎÈ£¬¾Í¼ÓÁ˸ö£¬³å»÷кºÉµÄÒçÁ÷·§£¬250Bar£¬µ«Õâ¸öѹÁ¦Òª¸ù¾ÝÏÖ³¡À´×ÔÐе÷½Ú£¬Ò»°ã½¨ÒéÉÔÉÔ³¬³ö£º5.0.0µÄÉ趨ֵ¡£¿ÉÒÔÈ¡1.1»ò¸ü¸ß£¬ÊÓÏÖ³¡¶ø¶¨¡£
: F2 A9 n- O' _( R$ U3 j3¡£Õâ¸öÓÍÏäûÓÐÀäÈ´Æ÷£¬Ó¦¸ÃÓÍÏäÈÝ»ý±È½Ï´ó£¬×îºÃ³¬¹ý40L¡£¾ßÌåµÄ×Ô¼º¸ù¾ÝÈÈÆ½ºâ¼ÆËãһϡ£
·¢±íÓÚ 2009-10-28 20:54:34 | ÏÔʾȫ²¿Â¥²ã À´×Ô£º ÖйúÉϺ£
Äã°ÑÄãµÄ¹¤×÷»ú¹¹Ôõô¹¤×÷»¹ÓÐÒª´ïµ½µÄÒªÇó˵һÏ£¬ÄǼ¸¸öÐîÄÜÆ÷¿ÉÄܺÍÄãµÄ¹¤¿öÒªÇóÓйØÏµ¡£ÆäËû¾ÍÊdz£¹æµÄϵͳ£¬¾ÍÊÇʵÏÖÓ͸׵ĽøºÍÍË£¬ÔÚѹÁ¦¿ØÖÆÉÏÖ÷ÒçÁ÷·§×î¶à×öµ½150bar²»È»µç»ú¹¦Âʶ಻¹»¡£ÄǸö250barÓ¦¸ÃºÍÐîÄÜÆ÷Ò»ÆðÏû·åֵѹÁ¦µÄ°É£¬»¹ÓÐÄǸö4.2.0µÄ½ØÖ¹·§Ó¦¸ÃÊdz£±ÕµÄ°É£¬Ôõô»­³£¿ª°¡¡£
 Â¥Ö÷| ·¢±íÓÚ 2009-10-28 21:30:29 | ÏÔʾȫ²¿Â¥²ã À´×Ô£º ÖйúÉϺ£
Õâ¸öÊǵ¹úÈ˵Äͼֽ¡£¶ÔϵͳѹÁ¦ÒªÇóºÜ¸ß£¬ÎªÁË´ïµ½Îȶ¨µÄ120bar¹¤×÷ѹÁ¦£¬Ö÷ÒªÊÇÄĸö¼¸¸öÔª¼þÆð×÷Óá£ÌرðÊÇ5.0.0Õâ¸öʲô·§ÃÅ¡£ÏëÖªµÀÔõôÄܹ»ÌṩÎȶ¨µÄ120bar¹¤×÷ѹÁ¦¡£Õâ¸öϵͳȷʵûÓÐÀäÈ´×°Öã¬ÓÍÏäÒ²²»´ó£¬ÎÒÒ²Ææ¹Ö¡£
 Â¥Ö÷| ·¢±íÓÚ 2009-10-28 21:32:32 | ÏÔʾȫ²¿Â¥²ã À´×Ô£º ÖйúÉϺ£
5.0.0Ó¦¸ÃÊÇÈý¥˵µÄжºÉÒçÁ÷·§¡£¾ßÌ幤×÷Ô­ÀíÊÇÊ²Ã´ÄØ£¿
·¢±í»Ø¸´
ÄúÐèÒªµÇ¼ºó²Å¿ÉÒÔ»ØÌû µÇ¼ | ×¢²á

±¾°æ»ý·Ö¹æÔò


Licensed Copyright © 2016-2020 http://www.3dportal.cn/ All Rights Reserved ¾© ICP±¸13008828ºÅ

СºÚÎÝ|ÊÖ»ú°æ|Archiver|ÈýÎ¬Íø ( ¾©ICP±¸2023026364ºÅ-1 )

¿ìËٻظ´ ·µ»Ø¶¥²¿ ·µ»ØÁбí