QQ登录

只需一步,快速开始

登录 | 注册 | 找回密码

三维网

 找回密码
 注册

QQ登录

只需一步,快速开始

展开

通知     

查看: 1493|回复: 6
收起左侧

[求助] 这种机能的多路阀谁家有啊?谢谢!!!

[复制链接]
发表于 2009-10-14 20:51:41 | 显示全部楼层 |阅读模式 来自: 中国辽宁大连

马上注册,结识高手,享用更多资源,轻松玩转三维网社区。

您需要 登录 才可以下载或查看,没有帐号?注册

x
这种机能的多路阀的谁家有啊?还有国产多路阀谁家做的好啊 ?先谢谢大家的帮助!!!!
发表于 2009-10-14 20:56:38 | 显示全部楼层 来自: 中国北京
没图啊   怎么帮啊
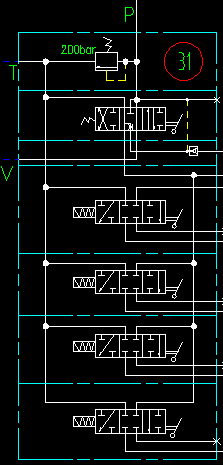
 楼主| 发表于 2009-10-14 20:58:21 | 显示全部楼层 来自: 中国辽宁大连

这种机能的多路阀

这种机能的多路阀谁家有啊?

未命名.pdf

30.17 KB, 下载次数: 8

 楼主| 发表于 2009-10-14 21:00:03 | 显示全部楼层 来自: 中国辽宁大连
不会上传,只能传文件啦!!大家下载看来!破费大家的流量啦!!
 楼主| 发表于 2009-10-15 08:44:07 | 显示全部楼层 来自: 中国辽宁大连

这种机能多路阀谁家有啊?

这种机能多路阀谁家有啊谢谢各位啦!!!!
未命名.jpg
发表于 2009-10-15 12:19:44 | 显示全部楼层 来自: 中国江苏徐州
多重机能在一起,厂家可以定做组装的。大厂家不一定愿意做,找中等的。
发表于 2009-10-17 22:43:59 | 显示全部楼层 来自: 中国湖北武汉
我有啊,要的找我哈
发表回复
您需要登录后才可以回帖 登录 | 注册

本版积分规则


Licensed Copyright © 2016-2020 http://www.3dportal.cn/ All Rights Reserved 京 ICP备13008828号

小黑屋|手机版|Archiver|三维网 ( 京ICP备2023026364号-1 )

快速回复 返回顶部 返回列表