QQ登录

只需一步,快速开始

登录 | 注册 | 找回密码

三维网

 找回密码
 注册

QQ登录

只需一步,快速开始

展开

通知     

全站
8天前
查看: 2120|回复: 10
收起左侧

[讨论结束] 开亮学堂习题七:行位门槛

[复制链接]
发表于 2009-9-21 21:06:11 | 显示全部楼层 |阅读模式 来自: 中国广东广州

马上注册,结识高手,享用更多资源,轻松玩转三维网社区。

您需要 登录 才可以下载或查看,没有帐号?注册

x
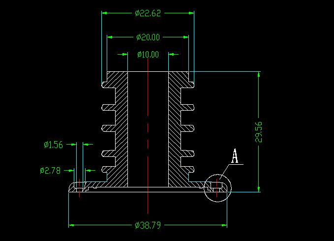
如图所示哈夫式的产品模具结构,行位上有对称2处凹孔(如图:A), 出模的方法越简单越好,相信人们一定能简化它。( T2 z' W# v  X! [( p
产品1出2,材质ABS
) R% g; {' K' s要求模具结构简单可靠
" I* l+ Q2 ~- j 73.jpg

Drawing1.rar

23.07 KB, 下载次数: 10

 楼主| 发表于 2009-9-28 20:10:39 | 显示全部楼层 来自: 中国广东广州

行位先弹针再行出,延时铲鸡。

74.jpg
发表于 2009-9-28 22:05:28 | 显示全部楼层 来自: 中国香港
延时铲鸡唔耐用
 楼主| 发表于 2009-9-29 08:37:50 | 显示全部楼层 来自: 中国广东广州
原帖由 laplaplap 于 2009-9-28 22:05 发表 http://www.3dportal.cn/discuz/images/common/back.gif, w; p  `6 i" Y7 U
延时铲鸡唔耐用

0 q$ h" ]% U" c; e% K- a/ Y" `' ~/ y/ L9 J0 S
要耐用就要热处理
发表于 2009-10-11 14:28:06 | 显示全部楼层 来自: 中国山东潍坊
这种结构的延时滑块不知应用在大型滑块上能否可靠?有一次做模想用又没敢用。
 楼主| 发表于 2009-10-12 11:51:16 | 显示全部楼层 来自: 中国广东广州

回复 5# chaseeker 的帖子

放心使用,大滑块情况下你把圆型斜导柱改为方型增加强度即可。
发表于 2009-10-12 13:43:52 | 显示全部楼层 来自: 美国
原帖由 chaseeker 于 2009-10-11 14:28 发表 http://www.3dportal.cn/discuz/images/common/back.gif# u6 n5 ^2 p1 L- H# E
这种结构的延时滑块不知应用在大型滑块上能否可靠?有一次做模想用又没敢用。
+ \& d4 X: ]' @! t# \5 V
大的滑块可以改成方形导柱,如果太宽,可以用两个,在滑块两侧一起作用,如果空间够的话也可以改成油缸结构的。
发表于 2009-10-12 13:47:37 | 显示全部楼层 来自: 美国
我看你发的图纸中滑块一般都是采用弹簧顶珠限位的,不知道这种结构是否稳定,你们使用过程中有没有出过问题?特别是批量大的产品,如果采用这种结构会不会失效?
 楼主| 发表于 2009-10-12 18:00:00 | 显示全部楼层 来自: 中国广东广州

回复 8# guxing2417 的帖子

谢谢孤独兄指出不足之处,采用弹簧顶珠限位,寿命不长。建议采用如图:
20090917_11f87a8f032aba674fbfWWVa6uP8RVHS.jpg
20090917_f00a3f87f886fb7806b2lyhcgtxyf8B8.jpg
发表于 2009-10-15 22:43:20 | 显示全部楼层 来自: 中国广东广州
原帖由 chaseeker 于 2009-10-11 14:28 发表 http://www.3dportal.cn/discuz/images/common/back.gif
8 E( [5 w% _. _& F这种结构的延时滑块不知应用在大型滑块上能否可靠?有一次做模想用又没敢用。
! V) M! m# n* A  u1 _8 Y2 e
有油压比较耐用而且比较顺畅
 楼主| 发表于 2009-10-16 08:58:14 | 显示全部楼层 来自: 中国广东广州
原帖由 zizi5b419 于 2009-10-15 22:43 发表 http://www.3dportal.cn/discuz/images/common/back.gif( l8 `/ z" Y" _, F8 _+ s
8 d7 y; }( f+ ~
有油压比较耐用而且比较顺畅
" @4 N7 q) N4 z; x; L; w' W
机械结构比油压工作周期短些
发表回复
您需要登录后才可以回帖 登录 | 注册

本版积分规则


Licensed Copyright © 2016-2020 http://www.3dportal.cn/ All Rights Reserved 京 ICP备13008828号

小黑屋|手机版|Archiver|三维网 ( 京ICP备2023026364号-1 )

快速回复 返回顶部 返回列表