QQ登录

只需一步,快速开始

登录 | 注册 | 找回密码

三维网

 找回密码
 注册

QQ登录

只需一步,快速开始

展开

通知     

查看: 2470|回复: 14
收起左侧

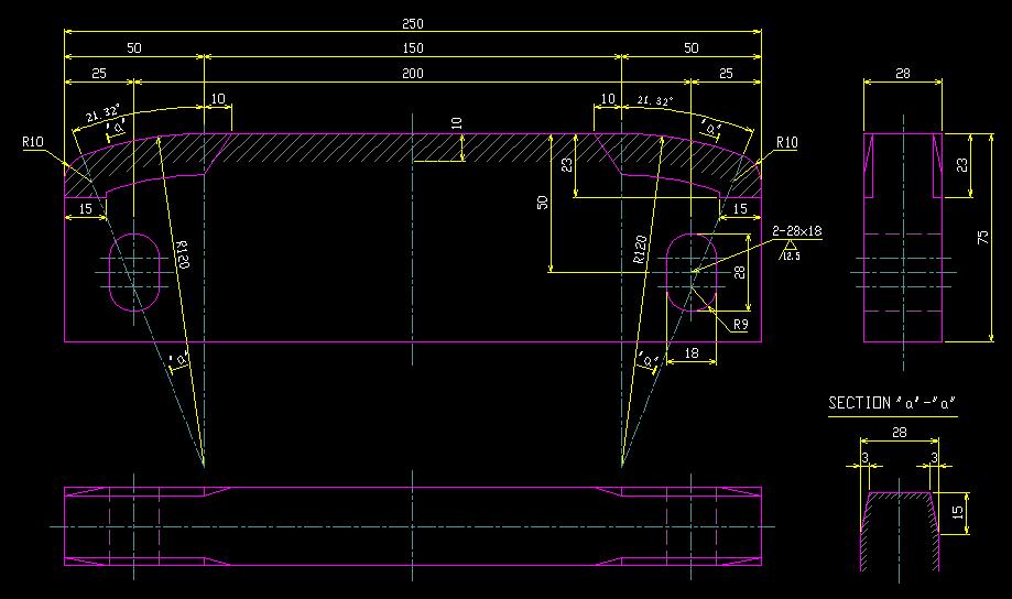
[求助] 这种折磨人的倒角,谁来帮我画一个

[复制链接]
发表于 2009-8-31 18:21:47 | 显示全部楼层 |阅读模式 来自: 中国上海

马上注册,结识高手,享用更多资源,轻松玩转三维网社区。

您需要 登录 才可以下载或查看,没有帐号?注册

x
这种要求的倒角,想了半天也不知道怎么整,谁能画个源文件给我吗???
# H$ Q: i' @" n5 R; ?7 c: ^3 Z' u8 b9 h
我一直怀疑这种倒角要求是不是合理,不过是领导画的,不能质疑,质疑了会有麻烦的,呵呵,所以只好求助各位了。
11.JPG

6XH053W011S.rar

44.1 KB, 下载次数: 27

发表于 2009-8-31 19:28:15 | 显示全部楼层 来自: 中国广东惠州
用分割線給整一整就ok啦!
 楼主| 发表于 2009-9-1 09:47:18 | 显示全部楼层 来自: 中国上海
我用分割线了,可是还是出不来,提示:几何条件限制不能创建倒角。
$ o- X5 e6 d  P6 e# r7 [9 T# P( m5 |2 F& B- P' a& P
能不能请楼上的帮我画一个?
发表于 2009-9-1 10:17:06 | 显示全部楼层 来自: 中国广东惠州
對不起說錯了是分割實体不是分割線.如圖: b0 l3 f5 G/ p, W
fg1.jpg
+ p3 ~- u$ S* f3 T9 `0 j/ l9 S
发表于 2009-9-1 10:53:51 | 显示全部楼层 来自: 中国北京
danilso大师能不能把源贴上来。谢谢!关键是想和大师学学在一个平面上分区后分段倒角。
* z' P- \2 _1 u7 m* R, a. g) L0 _5 v% d; _) ~# l& Q2 S! t
[ 本帖最后由 英俊少年 于 2009-9-1 11:38 编辑 ]
发表于 2009-9-1 11:31:10 | 显示全部楼层 来自: 中国江苏泰州
俺也做了一个,可能做繁了?和楼上大师兄做的好像不一样,不知正确否?请指正。
倒角.JPG

倒角.rar

174.1 KB, 下载次数: 8

发表于 2009-9-1 11:54:51 | 显示全部楼层 来自: 中国广东广州
不错啊,高手
发表于 2009-9-1 13:43:24 | 显示全部楼层 来自: 中国上海
我也搞一个,不过我觉得第一位大师画的最象,可惜没把零件发上来。
bbb.JPG

ABSfg-b.rar

114.02 KB, 下载次数: 7

发表于 2009-9-1 14:04:15 | 显示全部楼层 来自: 中国浙江金华
是不是这样
倒角.JPG

倒角.rar

88.48 KB, 下载次数: 6

发表于 2009-9-1 14:18:28 | 显示全部楼层 来自: 中国广东惠州
有需要就上原文件吧!
3 l2 @* p& d) Y7 a* a+ Y dg3.jpg
/ O3 {* l! u: F+ ~  u  |2 t
3 `7 s3 ~1 b* }* i, U7 M' g 導角.rar (217.95 KB, 下载次数: 49)
发表于 2009-9-1 14:34:18 | 显示全部楼层 来自: 中国浙江金华
这个应该是了
倒角.JPG

倒角.rar

96.46 KB, 下载次数: 11

发表于 2009-9-1 14:50:16 | 显示全部楼层 来自: 中国贵州兴义
可是这种倒角有何用,留个尖角在那?
发表于 2009-9-2 09:51:58 | 显示全部楼层 来自: 中国北京
楼主的CAD尺寸用1000的换算单位是什么意思?读入SW都放大300多倍,是船用零件么?可楼主尺寸标注都很小啊!请教楼主是什么单位制。
/ D# S9 S/ k- [  l说个和本贴似乎有关的话题,画CAD时要把单位换算定准,否则交换信息时问题多多,这是我过去的心得。
4 G1 Z+ u4 z* A9 e; V. G, m1 W$ a以前搞个项目没注意,按一个英制模版画了几百张图,转SW费劲了,就因为SW是尺寸驱动方式。而CAD是图形驱动方式。
 楼主| 发表于 2009-9-2 10:43:09 | 显示全部楼层 来自: 中国上海
我都是用mm读入sw的。
 楼主| 发表于 2009-9-2 10:44:11 | 显示全部楼层 来自: 中国上海
谢谢各位 ,学习了
发表回复
您需要登录后才可以回帖 登录 | 注册

本版积分规则


Licensed Copyright © 2016-2020 http://www.3dportal.cn/ All Rights Reserved 京 ICP备13008828号

小黑屋|手机版|Archiver|三维网 ( 京ICP备2023026364号-1 )

快速回复 返回顶部 返回列表