QQ登录

只需一步,快速开始

登录 | 注册 | 找回密码

三维网

 找回密码
 注册

QQ登录

只需一步,快速开始

展开

通知     

全站
8天前
查看: 1373|回复: 5
收起左侧

[求助] 关于键封锁

[复制链接]
发表于 2009-8-23 16:27:06 | 显示全部楼层 |阅读模式 来自: 中国湖南湘潭

马上注册,结识高手,享用更多资源,轻松玩转三维网社区。

您需要 登录 才可以下载或查看,没有帐号?注册

x
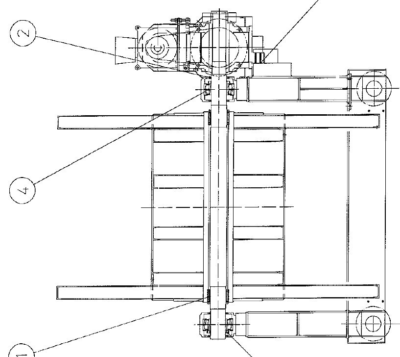
如这个图中的1 所指,请问有谁知道这个装置的具体作用和用途么
未命名.jpg
发表于 2009-8-23 22:12:12 | 显示全部楼层 来自: 中国广东珠海
看不出来,把数字标注的说明标出来。
发表于 2009-8-24 15:10:41 | 显示全部楼层 来自: 中国安徽合肥
看不清楚啊  楼主请表达清楚点啊
发表于 2009-8-24 15:20:16 | 显示全部楼层 来自: 中国福建三明
图不是很清楚,好像是卷扬机
发表于 2009-8-24 16:02:44 | 显示全部楼层 来自: 中国北京
截图有问题,看不到哪个是序号1,还是重新截图吧。
 楼主| 发表于 2009-8-24 20:51:54 | 显示全部楼层 来自: 中国湖南湘潭
电机 皮带 减速箱 工字轮 绕线装置   1所表示的叫 key lock
未命名.jpg
发表回复
您需要登录后才可以回帖 登录 | 注册

本版积分规则


Licensed Copyright © 2016-2020 http://www.3dportal.cn/ All Rights Reserved 京 ICP备13008828号

小黑屋|手机版|Archiver|三维网 ( 京ICP备2023026364号-1 )

快速回复 返回顶部 返回列表