QQ登录

只需一步,快速开始

登录 | 注册 | 找回密码

三维网

 找回密码
 注册

QQ登录

只需一步,快速开始

展开

通知     

查看: 1835|回复: 2
收起左侧

[已答复] 帮忙按照图纸设计一副面和线轮廓度检具

[复制链接]
发表于 2009-8-21 08:30:32 | 显示全部楼层 |阅读模式 来自: 中国江苏苏州

马上注册,结识高手,享用更多资源,轻松玩转三维网社区。

您需要 登录 才可以下载或查看,没有帐号?注册

x
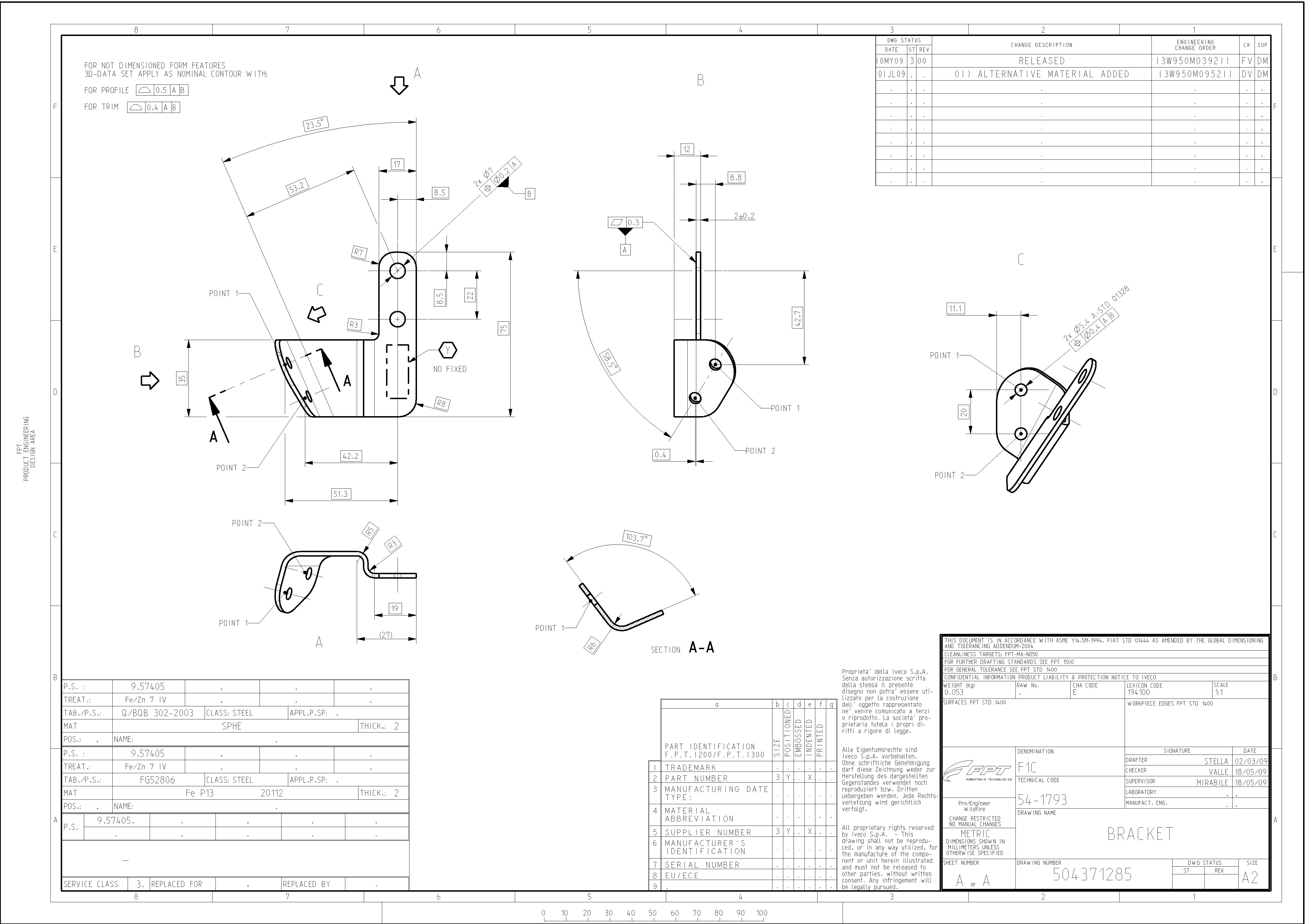
本人最近接到FIAT客户一小冲压件图纸,FIAT图纸上要求检验面和线轮廓度$ L2 e. c# |% f2 Y
由于本人知识有限,所以想请经验丰富之人帮忙设计一检具!6 ^1 z; R" r. X. e* J

9 L" P: ?% ^* z; _$ ~6 z; R在新窗口打开,放大看,很清楚的
, }- V! G4 M% U$ ~
( |4 P4 L" v, P3 P- k0 d& P[ 本帖最后由 plc 于 2009-8-21 12:55 编辑 ]
裁剪.jpg

504371285.pdf

69.71 KB, 下载次数: 9

FIAT图纸

发表于 2009-8-21 11:23:00 | 显示全部楼层 来自: 中国湖南长沙
你现在是求助,还要赚取别人的流量,真精明!
发表于 2009-8-21 19:57:01 | 显示全部楼层 来自: 中国江苏无锡
有点难度,你要先确定要检测的部分,因为按图要求所有尺寸都捡,实际没有必要,还要确定第三基准才好设计
: j8 e+ z! z  K0 U) `( ?- i  z" A根据实际使用情况确定这些
发表回复
您需要登录后才可以回帖 登录 | 注册

本版积分规则


Licensed Copyright © 2016-2020 http://www.3dportal.cn/ All Rights Reserved 京 ICP备13008828号

小黑屋|手机版|Archiver|三维网 ( 京ICP备2023026364号-1 )

快速回复 返回顶部 返回列表