QQ登录

只需一步,快速开始

登录 | 注册 | 找回密码

三维网

 找回密码
 注册

QQ登录

只需一步,快速开始

展开

通知     

全站
9天前
查看: 1329|回复: 4
收起左侧

[求助] 请教个双力线减速机的问题

[复制链接]
发表于 2009-8-12 12:05:35 | 显示全部楼层 |阅读模式 来自: 中国河南洛阳

马上注册,结识高手,享用更多资源,轻松玩转三维网社区。

您需要 登录 才可以下载或查看,没有帐号?注册

x
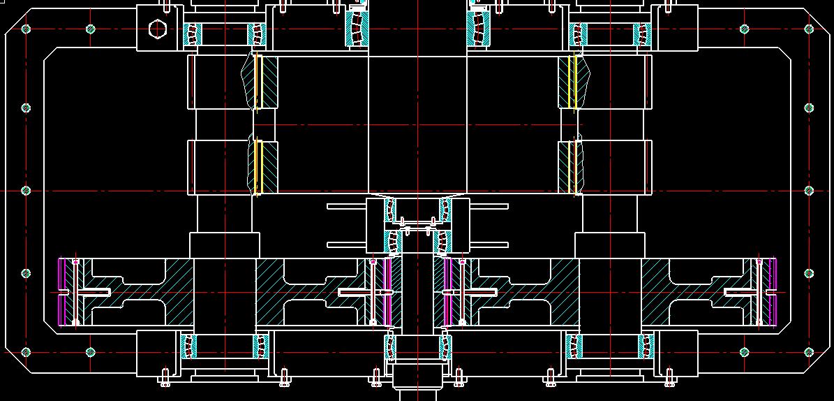
我这里有个重庆矿山机器厂的双力线减速机的简图,谁能帮我看看这个结构是怎么调整传动的,下面是我画的图
 楼主| 发表于 2009-8-12 12:11:12 | 显示全部楼层 来自: 中国河南洛阳

请教个双力线减速机的问题

这个是重庆矿山机器厂的产品,高速级的人字齿轮可以自动调整,可是我看不明白具体结构,那位高手可以指点一下
减速机.JPG
发表于 2009-8-12 14:58:53 | 显示全部楼层 来自: 中国江苏淮安
你的图看不 明白
发表于 2009-8-12 16:04:41 | 显示全部楼层 来自: 中国湖南长沙

主要就是实现了轴荷的径向平衡

实现了高速级及输出级的齿轮轴径向负荷平衡,为一个实际的二级平行轴减速器。

评分

参与人数 1三维币 +3 收起 理由
hero2006 + 3 技术讨论

查看全部评分

 楼主| 发表于 2009-8-12 17:34:03 | 显示全部楼层 来自: 中国河南洛阳

谢谢楼上指导

不过,作用我是明白了,我现在想知道他的设计原理,
# a8 Y4 q1 T- K我就是不明白,他怎么调整的,怎么安装的
发表回复
您需要登录后才可以回帖 登录 | 注册

本版积分规则


Licensed Copyright © 2016-2020 http://www.3dportal.cn/ All Rights Reserved 京 ICP备13008828号

小黑屋|手机版|Archiver|三维网 ( 京ICP备2023026364号-1 )

快速回复 返回顶部 返回列表