QQ登录

只需一步,快速开始

登录 | 注册 | 找回密码

三维网

 找回密码
 注册

QQ登录

只需一步,快速开始

展开

通知     

查看: 1848|回复: 4
收起左侧

[已解决] UG中怎样去掉文字说明

[复制链接]
发表于 2009-7-20 10:44:59 | 显示全部楼层 |阅读模式 来自: 中国广东广州

马上注册,结识高手,享用更多资源,轻松玩转三维网社区。

您需要 登录 才可以下载或查看,没有帐号?注册

x
sshot-w.png + @9 C- B7 Y% O+ l# O7 l

$ y9 ~3 T9 j- }! f/ T$ v怎样把图标下文字去掉啊各位老兄?
6 C# ]' w9 c2 H7 @7 D指点下!' l- F2 [+ Z, X: ?. M
谢谢
发表于 2009-7-20 11:00:54 | 显示全部楼层 来自: 中国上海
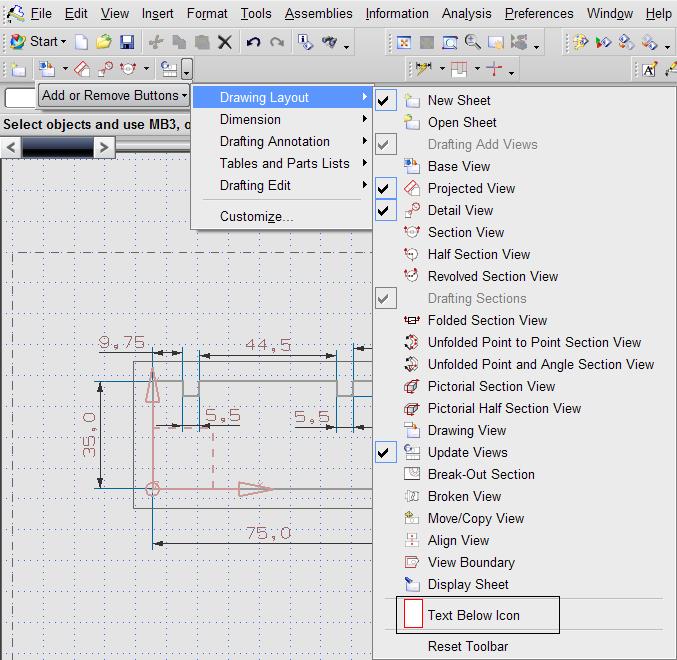
只要把text below icon 打的勾去掉就可以了。
untitled-333.JPG

评分

参与人数 1三维币 +3 收起 理由
beyond2009 + 3 应助

查看全部评分

发表于 2009-7-31 14:47:46 | 显示全部楼层 来自: 中国广东深圳
学习了 谢谢了
发表于 2009-8-22 21:59:37 | 显示全部楼层 来自: 中国浙江宁波
呵呵   受教了
发表于 2009-8-22 22:22:14 | 显示全部楼层 来自: 中国北京
俺给你来个中文画面的:只要把“文本在图标下面” 打的勾去掉就可以了。
UG中怎样去掉文字说明.jpg

评分

参与人数 1三维币 +2 收起 理由
beyond2009 + 2 应助

查看全部评分

发表回复
您需要登录后才可以回帖 登录 | 注册

本版积分规则


Licensed Copyright © 2016-2020 http://www.3dportal.cn/ All Rights Reserved 京 ICP备13008828号

小黑屋|手机版|Archiver|三维网 ( 京ICP备2023026364号-1 )

快速回复 返回顶部 返回列表