QQ登录

只需一步,快速开始

登录 | 注册 | 找回密码

三维网

 找回密码
 注册

QQ登录

只需一步,快速开始

展开

通知     

全站
10天前
查看: 1546|回复: 4
收起左侧

[求助] 谁能帮我解释一下这个模具是怎么用的?

[复制链接]
发表于 2009-7-8 11:55:17 | 显示全部楼层 |阅读模式 来自: 中国四川成都

马上注册,结识高手,享用更多资源,轻松玩转三维网社区。

您需要 登录 才可以下载或查看,没有帐号?注册

x
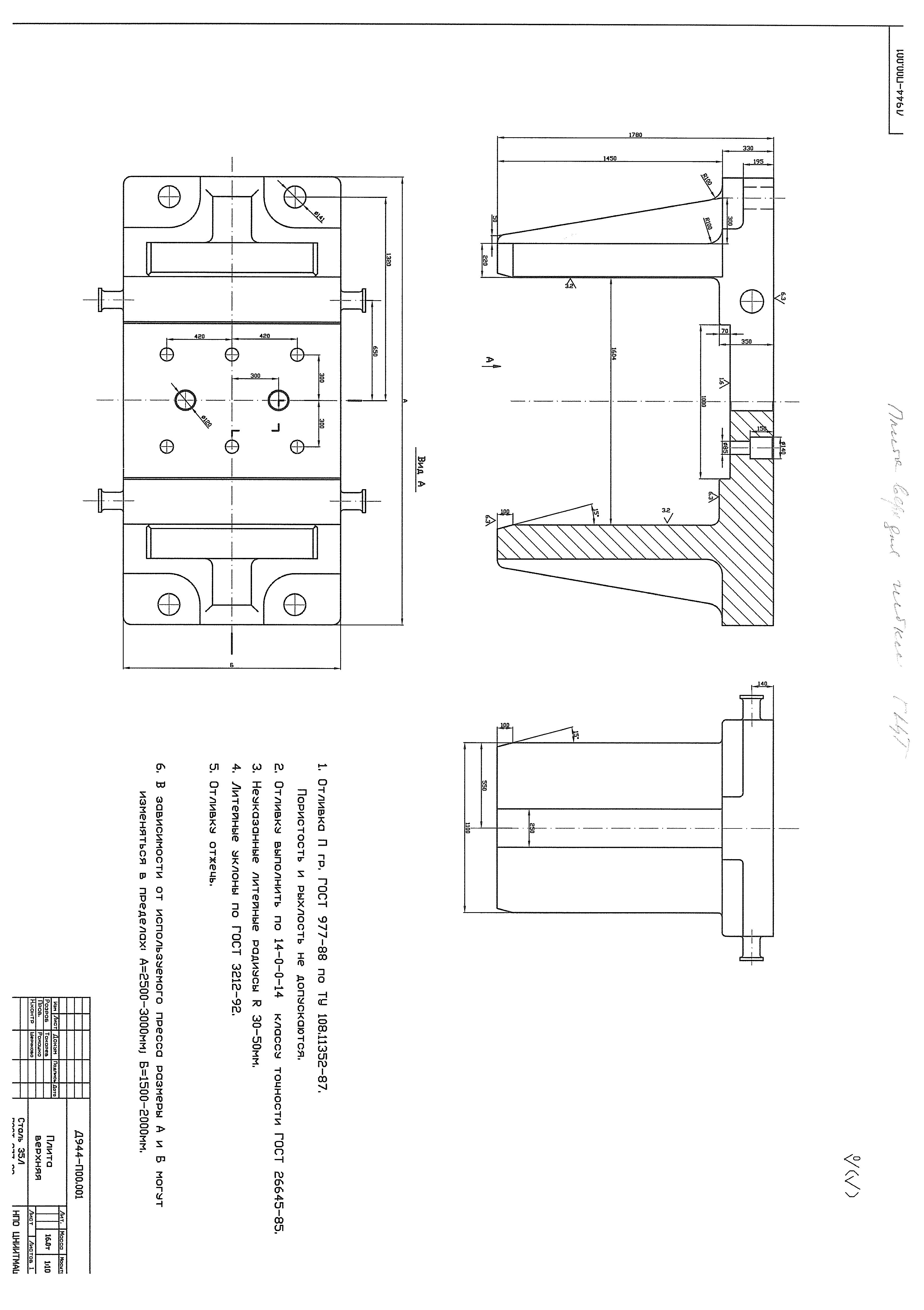
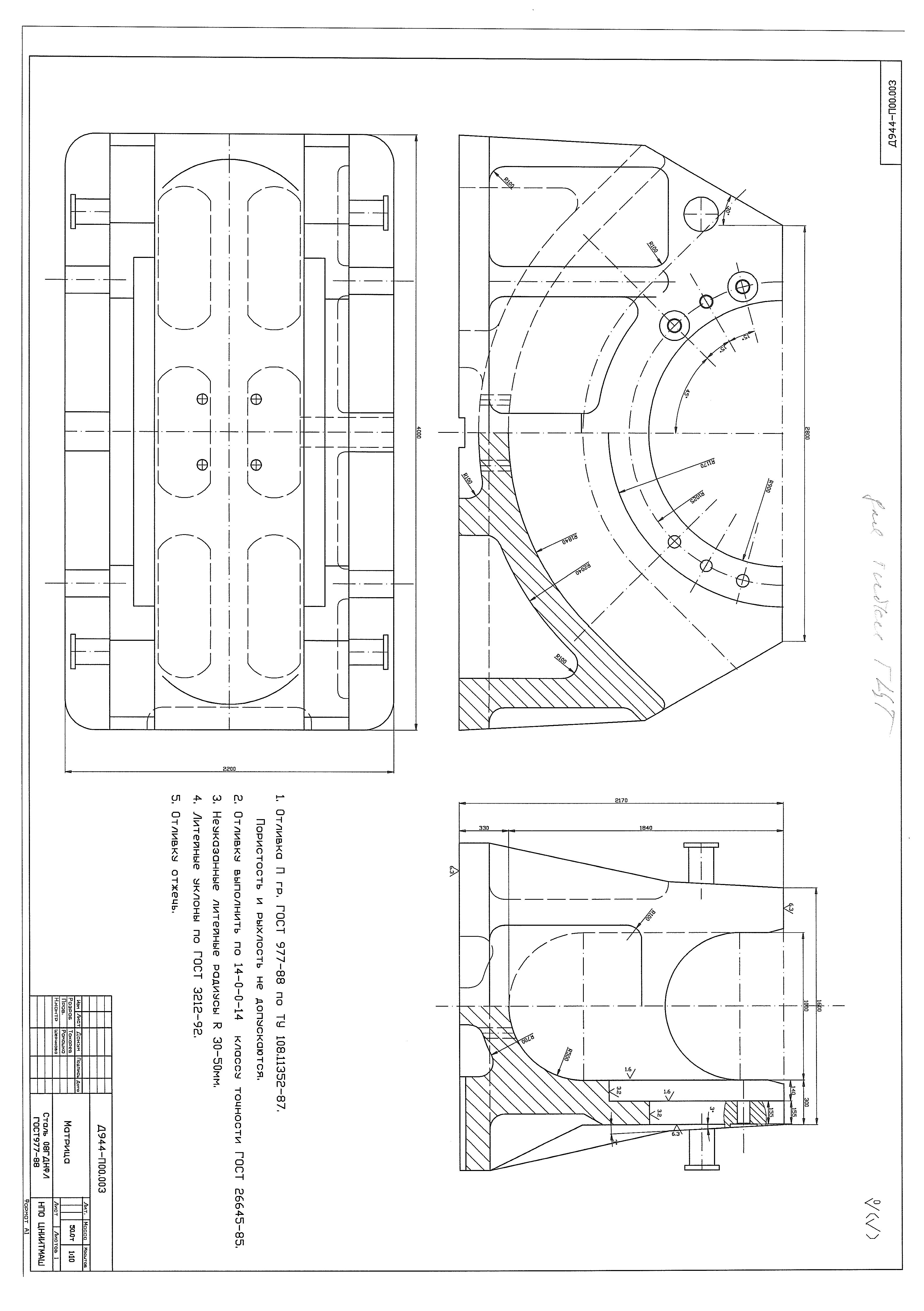
图5是弯管,) }) ?6 p3 l/ p0 A; B
其余的图纸是用来弯管模具,谁能帮我解释一下图4的模具是用来干嘛的?4 N2 h( A1 K" B0 \: K
我还没看懂。谢谢
1 ]. y% W" A! m4 Q
5 L: f+ H: Q4 U3 ^& p# i[ 本帖最后由 cqxf 于 2009-7-8 13:18 编辑 ]
1.jpg
2.jpg
3.jpg
4.jpg
5.jpg
发表于 2009-7-8 12:34:17 | 显示全部楼层 来自: 中国浙江宁波
上下导向模座。

评分

参与人数 1三维币 +3 收起 理由
阿帕奇 + 3

查看全部评分

发表于 2009-7-8 13:53:03 | 显示全部楼层 来自: 中国江苏无锡
把圆形钢管压成扁圆管用的胎具
发表于 2009-7-9 09:20:00 | 显示全部楼层 来自: 中国上海
太强悍了吧?这么大的管子弯管加工。) J, ]; X' m" B2 ~
楼主能上点设备及加工的照片吗?让大伙开开眼。8 l- l' H+ _3 C' V
能问问,这是有缝管还是无缝管?如果有缝,是直缝管还是螺旋焊缝管?用途是啥?
; b  Y1 u" h- r- x( p望解其详。
 楼主| 发表于 2009-7-10 08:50:08 | 显示全部楼层 来自: 中国四川成都
无缝管。我也没设备。
发表回复
您需要登录后才可以回帖 登录 | 注册

本版积分规则


Licensed Copyright © 2016-2020 http://www.3dportal.cn/ All Rights Reserved 京 ICP备13008828号

小黑屋|手机版|Archiver|三维网 ( 京ICP备2023026364号-1 )

快速回复 返回顶部 返回列表