QQ登录

只需一步,快速开始

登录 | 注册 | 找回密码

三维网

 找回密码
 注册

QQ登录

只需一步,快速开始

展开

通知     

查看: 1230|回复: 1
收起左侧

[已答复] 连杆运动分析

[复制链接]
发表于 2009-6-24 22:09:21 | 显示全部楼层 |阅读模式 来自: 中国浙江湖州

马上注册,结识高手,享用更多资源,轻松玩转三维网社区。

您需要 登录 才可以下载或查看,没有帐号?注册

x
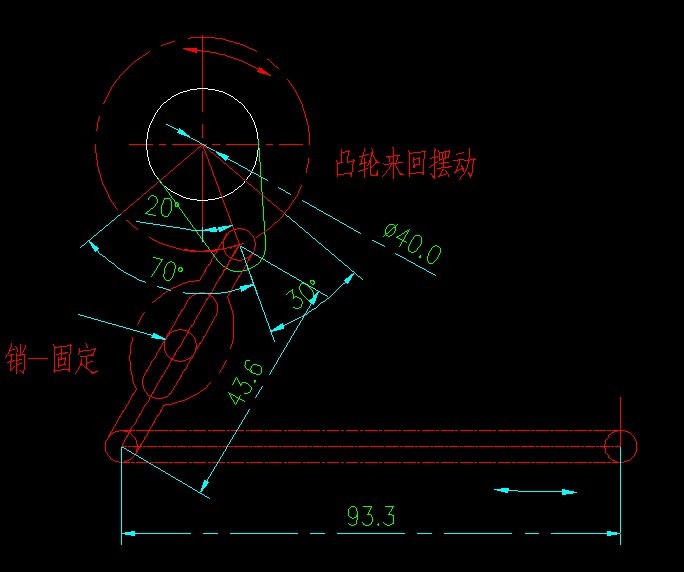
下面这个连杆运动的轨迹怎么样,怎么调整能达到行程要求,下面的连杆行程在25mm左右
2 \  Y) [: _! R4 }2 K  e6 ^+ I( Z6 A! u' N
[ 本帖最后由 南极的北极星 于 2009-6-24 22:23 编辑 ]
未命名.jpg
发表于 2009-6-25 11:26:16 | 显示全部楼层 来自: 中国广东东莞
摆动距离达到93.3就可以了。

评分

参与人数 1三维币 +4 收起 理由
userkypdy + 4 积极交流

查看全部评分

发表回复
您需要登录后才可以回帖 登录 | 注册

本版积分规则


Licensed Copyright © 2016-2020 http://www.3dportal.cn/ All Rights Reserved 京 ICP备13008828号

小黑屋|手机版|Archiver|三维网 ( 京ICP备2023026364号-1 )

快速回复 返回顶部 返回列表