QQ登录

只需一步,快速开始

登录 | 注册 | 找回密码

三维网

 找回密码
 注册

QQ登录

只需一步,快速开始

展开

通知     

查看: 2631|回复: 23
收起左侧

[已解决] 德国标注问题,为什么俩尺寸?

[复制链接]
发表于 2009-6-19 11:20:16 | 显示全部楼层 |阅读模式 来自: 中国北京

马上注册,结识高手,享用更多资源,轻松玩转三维网社区。

您需要 登录 才可以下载或查看,没有帐号?注册

x
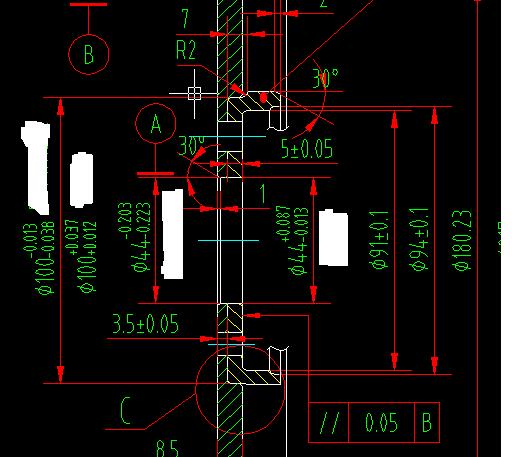
德国标注问题,为什么俩尺寸?
$ v, p; V5 g; c, p' C4 D
/ u) K0 D. J" b# C0 f如图:" a+ i; K  k- V; q$ o, x' E
是一张80年代德国图纸,现在老外拿来让加工,不明白为什么两个尺寸。多处呢!有样件,没有2次加工的痕迹。2 T4 ?- ?& R8 d+ @- R  K& |
有看过这种图纸的兄台请指教!谢谢!
8 R% T( m# T3 p; _( l  V
; ?6 M+ }4 z2 d/ D" `, X) c0 O[ 本帖最后由 白辞 于 2009-6-19 16:49 编辑 ]
截图00.png
发表于 2009-6-19 12:37:11 | 显示全部楼层 来自: 中国广东广州
毛坯尺寸和加工后的尺寸
 楼主| 发表于 2009-6-19 12:49:34 | 显示全部楼层 来自: 中国北京

回复 2# liweisky 的帖子

2楼兄台遇到过这样情况么?
发表于 2009-6-19 13:25:35 | 显示全部楼层 来自: 中国江苏常州
你的图不清楚
* M( t  g! v# R/ ]8 N可能是两个尺寸线重合的了,0.2的尺寸差别6 [# v9 C) ?5 F: ?
实际是两个圆柱面
头像被屏蔽
发表于 2009-6-19 14:31:31 | 显示全部楼层 来自: 中国辽宁营口
提示: 作者被禁止或删除 内容自动屏蔽
发表于 2009-6-19 17:22:27 | 显示全部楼层 来自: 中国陕西西安
这要看技术要求怎么说
发表于 2009-6-19 17:48:26 | 显示全部楼层 来自: 中国广东广州
原帖由 eastlakewater 于 2009-6-19 13:25 发表 http://www.3dportal.cn/discuz/images/common/back.gif
9 t! Y+ `8 H9 u( X1 m. m) I7 U你的图不清楚
1 T; m3 j( y8 ?0 Y' B9 w- g可能是两个尺寸线重合的了,0.2的尺寸差别' V8 I4 e: ~4 ^
实际是两个圆柱面
1 C) j6 z$ }& {5 D. d, x$ @

* D* I+ d  `" [. y- k
6 g2 O9 C0 ^" `) [: S6 y8 v不可能是两个尺寸线吧?没有看到其它的尺寸界线
发表于 2009-6-19 18:28:25 | 显示全部楼层 来自: 中国陕西西安
经常看德国图纸,没有发现有这样的标注方法。你可以把全部发上来大家共同看看0 y8 w& f+ B7 q. P% T
或者留意看看标题栏与技术要求,可能会有发现
发表于 2009-6-19 19:21:10 | 显示全部楼层 来自: 中国上海
图纸不清楚吧。
发表于 2009-6-19 19:23:47 | 显示全部楼层 来自: LAN
应该是国内的对称公差的标准方式。
发表于 2009-6-19 23:28:47 | 显示全部楼层 来自: 中国福建厦门
直径26.8表示这边有一个小的沉孔吧。深度从底面的那个黑色0.5表示吧,个人看法。
发表于 2009-6-20 10:06:41 | 显示全部楼层 来自: 中国上海
不是两个尺寸,是这个尺寸的最小的最大的极限值。用最大值减去最小值,就是公差值。
发表于 2009-6-20 11:13:06 | 显示全部楼层 来自: 中国浙江台州
看着好像是极限公差…………
发表于 2009-6-20 11:49:53 | 显示全部楼层 来自: 中国湖北武汉
看起来像公差啊
发表于 2009-6-20 12:00:36 | 显示全部楼层 来自: 中国上海
单看图纸的局部是不能明白什么含义的,不象是表示的公差,因为每个数字后面跟了个+0.2,倒很象是这个零件在这个尺寸上有两个规格。
发表于 2009-6-20 12:51:57 | 显示全部楼层 来自: 中国北京
表示0.1到0.2的倒角。
发表于 2009-6-20 13:35:56 | 显示全部楼层 来自: 中国浙江温州
应该是表示倒角尺寸的意思
发表于 2009-6-21 14:46:42 | 显示全部楼层 来自: 中国上海
这个要根据零件实际情况
. v' b& X2 Y. q: m% n' R8 A1.可能是零件的上下公差
  D+ q% }0 \- J$ Z  f2.外面的倒角尺寸,两个尺寸的标注线可能叠加在一起乐
发表于 2009-6-21 21:56:48 | 显示全部楼层 来自: 中国浙江宁波
德国图纸也不怎么样吗 呵呵
发表于 2009-6-22 09:04:36 | 显示全部楼层 来自: 中国浙江温州
看不清楚啊...不过如果两个标注后面还带了工差的话..就不会是极限标柱了
发表于 2009-6-22 11:25:35 | 显示全部楼层 来自: 中国重庆
应该是极限尺寸  可以换算成理论尺寸+公差的形式
; E. q+ f$ u. K
6 u5 |/ J  l$ L9 y[ 本帖最后由 parkiss 于 2009-6-22 11:27 编辑 ]
德国标注示例.JPG
123.JPG

评分

参与人数 1三维币 +3 收起 理由
zyxwq + 3 应助

查看全部评分

发表于 2009-6-22 14:29:12 | 显示全部楼层 来自: LAN
这是工件上机床加工的尺寸。 德国人一般精车零件都在数控机床上完成。不管工件以前放加工余量多少,到最后数控机床加工时只允许零件在这个范围内。具体零件的尺寸和零件精度是另有图纸要求的。
 楼主| 发表于 2009-6-22 15:01:32 | 显示全部楼层 来自: 中国北京
原帖由 jichun88 于 2009-6-22 14:29 发表 http://www.3dportal.cn/discuz/images/common/back.gif: Z  p( {% k- ]. p
这是工件上机床加工的尺寸。 德国人一般精车零件都在数控机床上完成。不管工件以前放加工余量多少,到最后数控机床加工时只允许零件在这个范围内。具体零件的尺寸和零件精度是另有图纸要求的。

2 l( f, f1 {8 X3 ~/ G; p1 t仁兄有例子么?
发表于 2009-6-22 15:06:33 | 显示全部楼层 来自: 中国上海
其实标注的是上极限和下极限尺寸。
发表回复
您需要登录后才可以回帖 登录 | 注册

本版积分规则


Licensed Copyright © 2016-2020 http://www.3dportal.cn/ All Rights Reserved 京 ICP备13008828号

小黑屋|手机版|Archiver|三维网 ( 京ICP备2023026364号-1 )

快速回复 返回顶部 返回列表