QQ登录

只需一步,快速开始

登录 | 注册 | 找回密码

三维网

 找回密码
 注册

QQ登录

只需一步,快速开始

展开

通知     

查看: 1695|回复: 5
收起左侧

[分享] CAD中级班考试题

[复制链接]
发表于 2009-6-14 12:16:59 | 显示全部楼层 |阅读模式 来自: 中国辽宁本溪

马上注册,结识高手,享用更多资源,轻松玩转三维网社区。

您需要 登录 才可以下载或查看,没有帐号?注册

x
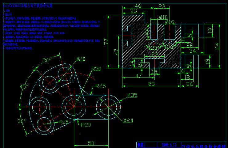
大家学习一下,看看还会做不,共四道题。
! _* W$ F) ~6 T0 I
* J2 l0 \) ^/ C3 W; S[ 本帖最后由 qiangong 于 2009-6-14 13:25 编辑 ]
CAD考试题.jpg

考题.rar

36.39 KB, 下载次数: 46

考题2.rar

52.88 KB, 下载次数: 38

评分

参与人数 1三维币 +5 收起 理由
wang2003 + 5 好资料,感谢您对论坛的支持!

查看全部评分

发表于 2009-6-15 12:33:25 | 显示全部楼层 来自: 中国广东佛山
谢谢~分享~有高级题吗?因为考高级证要画立体
发表于 2009-6-15 20:16:53 | 显示全部楼层 来自: 中国福建泉州
第一次见过这种,收下来看看.
 楼主| 发表于 2009-6-17 16:11:37 | 显示全部楼层 来自: 中国辽宁本溪

回复 2# 匝电势 的帖子

没有,等我有的之后我在发布。
发表于 2009-6-18 21:28:13 | 显示全部楼层 来自: 中国广东深圳
考题就是按照这个画个一模一样的?没有考过,还不知道呢
发表于 2009-6-19 07:07:56 | 显示全部楼层 来自: 中国山东淄博
第一次见过这种,收下来看看. ;)
发表回复
您需要登录后才可以回帖 登录 | 注册

本版积分规则


Licensed Copyright © 2016-2020 http://www.3dportal.cn/ All Rights Reserved 京 ICP备13008828号

小黑屋|手机版|Archiver|三维网 ( 京ICP备2023026364号-1 )

快速回复 返回顶部 返回列表