QQ登录

只需一步,快速开始

登录 | 注册 | 找回密码

三维网

 找回密码
 注册

QQ登录

只需一步,快速开始

展开

通知     

查看: 1667|回复: 6
收起左侧

[已答复] 帮我看看我的图蜗轮蜗杆支撑有什么好结构呀?

[复制链接]
发表于 2009-6-13 16:12:14 | 显示全部楼层 |阅读模式 来自: 中国浙江宁波

马上注册,结识高手,享用更多资源,轻松玩转三维网社区。

您需要 登录 才可以下载或查看,没有帐号?注册

x
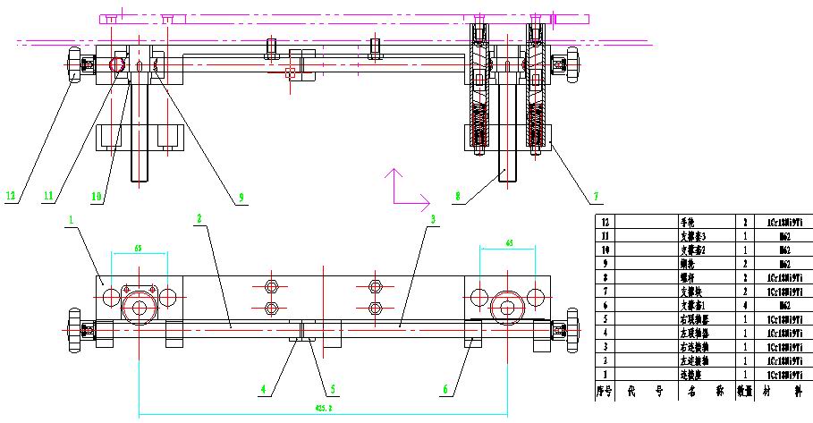
蜗轮蜗杆支撑有什么好结构呀?

00DA.rar

184.48 KB, 下载次数: 8

发表于 2009-6-14 09:51:47 | 显示全部楼层 来自: 中国山西太原
替楼主截个图,蜗轮的支撑图在已有,即支撑套2和支撑套3分别在蜗轮的上边和下边固定。图中蜗杆支承结构未画出,也未标出。不知什么结构。图表达的不清楚,画个蜗轮蜗杆的局部结构图便于给你提建议。
蜗轮支承.jpg

评分

参与人数 1三维币 +3 收起 理由
天际孤帆 + 3 感谢配合和应助。

查看全部评分

发表于 2009-8-6 08:35:27 | 显示全部楼层 来自: 中国吉林长春
你能不能说清楚、或用图表达清啊,以便大家讨论啊?
发表于 2009-8-6 08:40:11 | 显示全部楼层 来自: 中国广西桂林
蜗杆用轴承啊,涡轮、蜗杆是自锁结构,涡轮就看具体情况定了,图示不是很清楚
发表于 2009-8-6 13:03:56 | 显示全部楼层 来自: 中国北京
件9应该是蜗杆,而件8应该是蜗轮,你的名称和序号搞反了。由于你的视图不全,别人不明白,也不知道是干什么用的。好像是左右两个蜗轮分别带动蜗杆进行对中夹紧运动。件7是干什么的?, J9 t- [4 N  J# Y4 G
) Z+ h3 ^. a% K8 [! ^
[ 本帖最后由 hhq426 于 2009-8-6 13:12 编辑 ]
发表于 2009-8-6 16:16:06 | 显示全部楼层 来自: 中国北京
如果想得到别人的帮助,就需要把问题详细地描述清楚,该用文字的用文字,该用图示的用图示。否则,别人心有余而力不足。
发表于 2009-8-29 18:15:42 | 显示全部楼层 来自: 中国辽宁
可以用滚珠丝杠来代替
发表回复
您需要登录后才可以回帖 登录 | 注册

本版积分规则


Licensed Copyright © 2016-2020 http://www.3dportal.cn/ All Rights Reserved 京 ICP备13008828号

小黑屋|手机版|Archiver|三维网 ( 京ICP备2023026364号-1 )

快速回复 返回顶部 返回列表