QQ登录

只需一步,快速开始

登录 | 注册 | 找回密码

三维网

 找回密码
 注册

QQ登录

只需一步,快速开始

展开

通知     

查看: 2386|回复: 18
收起左侧

[已答复] 图纸标注

 关闭 [复制链接]
发表于 2009-6-11 09:53:38 | 显示全部楼层 |阅读模式 来自: 中国江苏苏州

马上注册,结识高手,享用更多资源,轻松玩转三维网社区。

您需要 登录 才可以下载或查看,没有帐号?注册

x
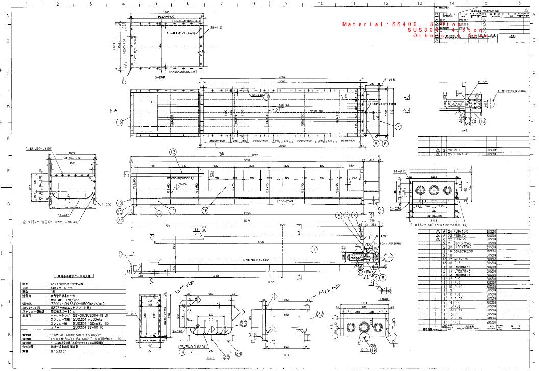
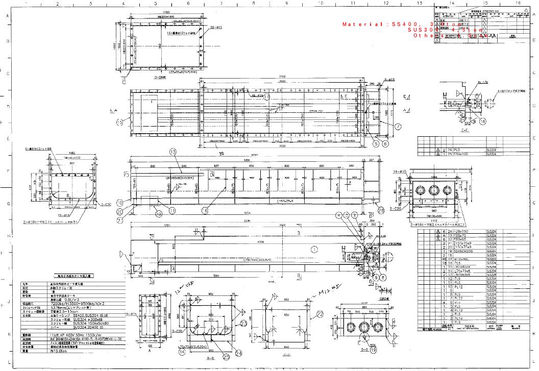
国外图纸上的标注:FB9X150是什么意思。现传上原图纸+ \* a7 @8 G( @# P, h" x) w
) l# |4 @0 V: T- i" P
[ 本帖最后由 yaochunmei 于 2009-6-11 10:22 编辑 ]
未命名.JPG
发表于 2009-6-11 10:18:27 | 显示全部楼层 来自: 中国上海
希望贴上原图纸.
 楼主| 发表于 2009-6-11 10:42:03 | 显示全部楼层 来自: 中国江苏苏州
请帮忙看看图中的一些标注代表些什么?
未命名.JPG
发表于 2009-6-11 10:50:54 | 显示全部楼层 来自: 中国河北保定
图纸我下了,可是看不清楚,找不到FB9X150在哪。
 楼主| 发表于 2009-6-11 10:54:41 | 显示全部楼层 来自: 中国江苏苏州
我这也是别人传给我的图,而且是用的PDF的格式,我没法改动
 楼主| 发表于 2009-6-11 11:02:33 | 显示全部楼层 来自: 中国江苏苏州
这是PDF格式的原图纸,帮帮忙,急用呢?

Fig18_多軸スクリューコンベヤrev1.pdf

540.98 KB, 下载次数: 10

发表于 2009-6-11 11:06:29 | 显示全部楼层 来自: 中国广东深圳

回复 1# yaochunmei 的帖子

找不到FB9X150在哪,我的流量是0,
 楼主| 发表于 2009-6-11 11:44:25 | 显示全部楼层 来自: 中国江苏苏州
第二个图里有
发表于 2009-6-11 11:54:31 | 显示全部楼层 来自: 中国江苏常州
从标题栏看是零部件的名称
8 y2 `1 G- n* k# |8 y- x从图纸看是一块板,材料是SUS304;
02.jpg

评分

参与人数 1三维币 +3 收起 理由
天际孤帆 + 3 谢谢贴图。

查看全部评分

 楼主| 发表于 2009-6-11 11:59:54 | 显示全部楼层 来自: 中国江苏苏州
材料我知道,但PL6、FB等这些表示什么呀
发表于 2009-6-11 12:03:19 | 显示全部楼层 来自: 中国上海
原帖由 yaochunmei 于 2009-6-11 11:59 发表 http://www.3dportal.cn/discuz/images/common/back.gif
9 }4 V- \7 k( q+ Z5 N  j- s材料我知道,但PL6、FB等这些表示什么呀
3 g8 y& p4 y3 k* ^% J

/ f9 h) p/ {( T; c* w
% d  k) [' [  c5 t/ v* G$ L, @4 _" a) q3 [5 o
这应该是零部件的编号,具体的编号规则和含义要问图的原作者了。

评分

参与人数 1三维币 +2 收起 理由
天际孤帆 + 2 技术讨论

查看全部评分

发表于 2009-6-29 22:41:26 | 显示全部楼层 来自: 中国上海
这应是一组零部件的编号,可能是在一图纸上有标注PL6、FB等符号,或有别的专门说明,最好是问一下。

评分

参与人数 1三维币 +2 收起 理由
天际孤帆 + 2 技术讨论

查看全部评分

发表于 2009-6-30 14:14:48 | 显示全部楼层 来自: 中国江苏无锡

FB9X150

应该是规格型号
发表于 2009-6-30 22:44:16 | 显示全部楼层 来自: 中国上海
应该是规格型号
发表于 2009-7-1 14:41:40 | 显示全部楼层 来自: 中国广东广州
从图面上看,是部品名称。但是实际上也包含有规格型号等信息,甚至有可能是材料的货号也有可能......

评分

参与人数 1三维币 +2 收起 理由
天际孤帆 + 2 技术讨论

查看全部评分

发表于 2009-7-1 16:30:55 | 显示全部楼层 来自: 中国安徽滁州
应该是日本某个材料的名称代号,具体的含义要查询给出图纸的公司在这些方面的相关文件规定或日本材料牌号方面的资料。
. h+ w! Z! x# N3 B
5 |& B- _' ~8 l* B% J" H9 g( W[ 本帖最后由 lqj65 于 2009-7-1 19:57 编辑 ]

评分

参与人数 1三维币 +3 收起 理由
userkypdy + 3 技术交流

查看全部评分

发表于 2009-7-2 16:55:16 | 显示全部楼层 来自: 中国四川成都
零件名) K+ o% H" f# c1 F
材料304
发表于 2009-7-24 16:13:46 | 显示全部楼层 来自: 中国北京
楼上说岔了,实际就是英文的缩写,我以前在日企做设计的。. W. G& U2 u# W# }1 I3 l2 U& n
PL就是PLATE的缩写,FB就是FLAT PLATE    ) c' y) }" j. b5 N$ Y( W
FB 9X150 后面的数字指这个板的长和厚,另一个宽度可自行在图上去找

评分

参与人数 1三维币 +3 收起 理由
userkypdy + 3 技术交流

查看全部评分

发表于 2009-7-24 20:39:39 | 显示全部楼层 来自: 中国浙江嘉兴
PL=plate(板的缩写)和FB意思一样,FB一般为加强版

评分

参与人数 1三维币 +3 收起 理由
userkypdy + 3 技术交流

查看全部评分

发表回复
您需要登录后才可以回帖 登录 | 注册

本版积分规则


Licensed Copyright © 2016-2020 http://www.3dportal.cn/ All Rights Reserved 京 ICP备13008828号

小黑屋|手机版|Archiver|三维网 ( 京ICP备2023026364号-1 )

快速回复 返回顶部 返回列表