QQ登录

只需一步,快速开始

登录 | 注册 | 找回密码

三维网

 找回密码
 注册

QQ登录

只需一步,快速开始

展开

通知     

查看: 1880|回复: 8
收起左侧

[已答复] 如何定位装夹

[复制链接]
发表于 2009-6-9 07:27:52 | 显示全部楼层 |阅读模式 来自: 中国广东

马上注册,结识高手,享用更多资源,轻松玩转三维网社区。

您需要 登录 才可以下载或查看,没有帐号?注册

x
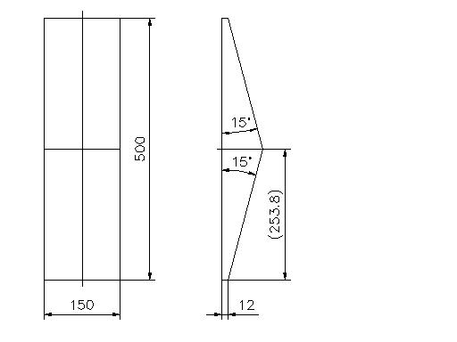
我现在设备有镗床 刨床 平面磨床
: b+ _( z8 D' _1 l- j工件所有表面全加工 表面光洁度要求0.8
! [& J  X6 D& q5 S2 c% \( w请问各位我因如何定位装夹
' p4 U8 s9 V* y  v工件具体可见 简图
未命名.JPG
发表于 2009-6-9 08:28:45 | 显示全部楼层 来自: 中国湖北十堰
利用现有设备,采用如下工艺加工,夹紧应无问题:2 L# B, Y, J% b2 B/ h3 e( v7 u
1、先刨成四方;2 T+ e, j5 r  R2 o
2、磨出五面,两锥度面不磨;
& o/ Q% [0 U  `3、粗刨两锥面;4 |5 L3 z2 _. Y! `4 f7 Z6 ~
4、精镗两锥面。
发表于 2009-6-9 13:57:51 | 显示全部楼层 来自: 中国河北廊坊
刨出7个面留磨削余量单面0.3,磨出5面,上斜面工装磨2斜面.
发表于 2009-6-9 14:07:19 | 显示全部楼层 来自: 中国广东深圳
来学习了!
发表于 2009-6-10 08:46:04 | 显示全部楼层 来自: 中国福建厦门
2楼说的有道理
发表于 2009-6-10 11:51:53 | 显示全部楼层 来自: 中国江苏常州
也不知道你的这个是什么用的& P% J6 X) E. L' l1 C9 Z0 Y( ?/ M9 b
就不能设计两个孔?
! L( g  _5 Q& i7 @  H有定位孔就好多了。
发表于 2009-6-10 12:27:33 | 显示全部楼层 来自: 中国江苏南京
没太明白什么意思
发表于 2009-6-10 12:29:24 | 显示全部楼层 来自: 中国江苏南京
请教一下二楼的兄弟,精镗2锥面怎么理解?谢谢
 楼主| 发表于 2009-6-10 18:42:43 | 显示全部楼层 来自: 中国广东
我现在实际加工是在两侧面 加了两螺纹孔  在连接辅助工艺凸台
发表回复
您需要登录后才可以回帖 登录 | 注册

本版积分规则


Licensed Copyright © 2016-2020 http://www.3dportal.cn/ All Rights Reserved 京 ICP备13008828号

小黑屋|手机版|Archiver|三维网 ( 京ICP备2023026364号-1 )

快速回复 返回顶部 返回列表