QQ登录

只需一步,快速开始

登录 | 注册 | 找回密码

三维网

 找回密码
 注册

QQ登录

只需一步,快速开始

展开

通知     

查看: 2747|回复: 12
收起左侧

[已解决] 图中的滑轮装配图对呢?

 关闭 [复制链接]
发表于 2009-5-31 21:03:45 | 显示全部楼层 |阅读模式 来自: 中国江苏无锡

马上注册,结识高手,享用更多资源,轻松玩转三维网社区。

您需要 登录 才可以下载或查看,没有帐号?注册

x
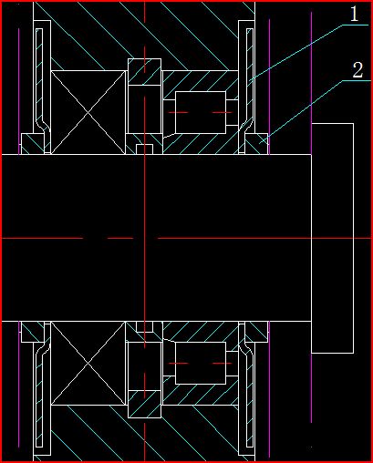
请大家帮我看看图中的滑轮装配图是否正确?另外图中标注的1,2可能是什麽零件?放在这各起什麽作用呢...谢谢
22.JPG
23.JPG
发表于 2009-5-31 23:01:45 | 显示全部楼层 来自: 中国浙江温州
好像是挡盘和垫片,防尘和限位用的吧,

评分

参与人数 1三维币 +4 收起 理由
天际孤帆 + 4 技术讨论,新会员鼓励交流。

查看全部评分

发表于 2009-5-31 23:33:30 | 显示全部楼层 来自: 中国山东潍坊
1是防尘盖    2是挡环。  防尘+对轴承的内圈进行轴向固定

评分

参与人数 1三维币 +2 收起 理由
天际孤帆 + 2 技术讨论

查看全部评分

发表于 2009-6-1 10:53:53 | 显示全部楼层 来自: 中国江苏常州
一好像是没有什么用处,直接用带防尘盖的轴承好了。& b+ L6 E0 x4 l* u: M
二有点用处的,是轴向定位的
6 m* j& V. R7 e& B这个中间的东东不知道是什么?如何装进去的,如何拆。* e8 T& e- k, O# ?) b, D
整个的设计有问题
& v" s; P, f: `7 R2 X$ w; |( ~' R所有的装配面与轴承的安装面是一个,既增加了成本,又对装配和拆卸带来隐患。公差和配合也不好取。

评分

参与人数 1三维币 +4 收起 理由
天际孤帆 + 4 技术讨论

查看全部评分

发表于 2009-6-1 11:21:28 | 显示全部楼层 来自: 中国山西太原
件1是防尘盖 ,件 2是挡圈是对的,起防尘和保护轴承作用。
2 w  j' t5 w( a6 A图中有一个问题,两轴承外圈中间,镶在滑轮孔槽中的那个挡环怎样装配,是整体的就无法装配,若是开口的,按图中比例不会镶进去那么深。

评分

参与人数 1三维币 +4 收起 理由
天际孤帆 + 4 技术讨论

查看全部评分

 楼主| 发表于 2009-6-1 21:37:05 | 显示全部楼层 来自: 中国江苏无锡
首先,很感谢大家的回复,件1可以确定下来是防尘盖,问题也就出在这里,这样能起到防尘的作用吗?对于eastlakewater说直接选用带防尘盖的轴承,请问哪些轴承是直接带防尘盖的啊?再有,对于 两轴承外圈中间,镶在滑轮孔槽中的那个我补充说明一下是涨圈,里面再套有一个间隔环
发表于 2009-6-2 14:23:02 | 显示全部楼层 来自: 中国黑龙江哈尔滨
关于防尘的效果,要看工作环境好不好
发表于 2009-6-6 22:14:02 | 显示全部楼层 来自: 中国上海
图中轴承不知选哪一类,如选圆柱滚子轴承,似乎不太合适,轴向会蹿动。如是圆锥滚子轴承,则画得不太对。1 s, ~6 W6 r5 M" e" e5 f9 V
至于自带防尘盖的轴承,有一面和两面的都有,代号后面跟-Z或-2Z,具体需查轴承手册。

评分

参与人数 1三维币 +4 收起 理由
天际孤帆 + 4 鼓励潜水高手发言。

查看全部评分

发表于 2009-6-8 10:49:51 | 显示全部楼层 来自: 中国浙江宁波
建议选用双列圆锥滚子轴承
发表于 2009-6-8 11:58:39 | 显示全部楼层 来自: 中国辽宁沈阳
两个轴承之间的东西是什么,如果是两个档环,外环是怎么装进去的,
发表于 2009-6-8 12:00:31 | 显示全部楼层 来自: 中国辽宁沈阳
1 2是怎么定位的
发表于 2009-6-8 13:44:21 | 显示全部楼层 来自: 中国广东珠海
改装配图错误。9 P" k/ d2 Y: Z) x2 @% Q
从装配图上看只对轴承内环进行了定位,轴承外环与滑轮如何定位?& h" U5 C& Y& }7 l9 L. N6 i7 D
仅靠两个轴承外环中间的垫片吗?垫片有时如何装进滑轮的?

评分

参与人数 1三维币 +2 收起 理由
天际孤帆 + 2 技术讨论

查看全部评分

发表于 2009-6-8 15:19:51 | 显示全部楼层 来自: 中国浙江台州
两轴承之间的涨圈没有什么作用,可以取消;件1防尘盖和件2挡环可以设计成一体,外径比轴承的外径小1-2mm,与轴承的配合端面加工出一个0.1的台阶,这样的结构比较简单,只是装配是比较麻烦。如果使用是转速不高且没有轴向力时可以使用的。

评分

参与人数 1三维币 +2 收起 理由
天际孤帆 + 2 技术讨论

查看全部评分

发表回复
您需要登录后才可以回帖 登录 | 注册

本版积分规则


Licensed Copyright © 2016-2020 http://www.3dportal.cn/ All Rights Reserved 京 ICP备13008828号

小黑屋|手机版|Archiver|三维网 ( 京ICP备2023026364号-1 )

快速回复 返回顶部 返回列表