QQ登录

只需一步,快速开始

登录 | 注册 | 找回密码

三维网

 找回密码
 注册

QQ登录

只需一步,快速开始

展开

通知     

查看: 2983|回复: 16
收起左侧

[已答复] 传动轴设计,请高手指正!

[复制链接]
发表于 2009-4-21 08:55:04 | 显示全部楼层 |阅读模式 来自: 中国浙江湖州

马上注册,结识高手,享用更多资源,轻松玩转三维网社区。

您需要 登录 才可以下载或查看,没有帐号?注册

x
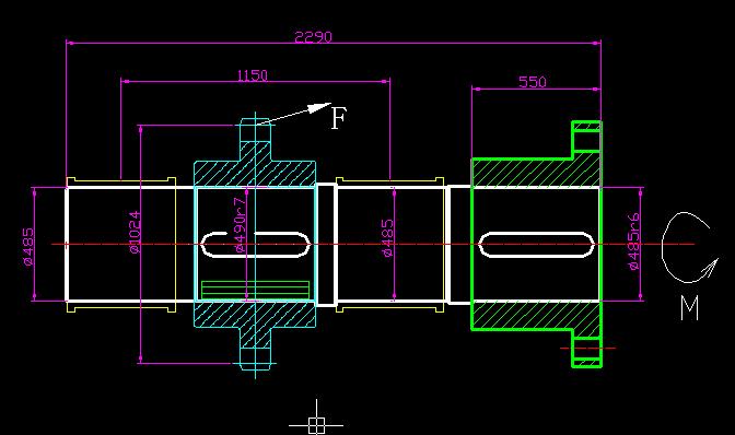
设计一传动轴,扭矩1500KN.M,小端轴径Φ485,自重3吨,支点中心距1150mm,转矩加载于两支点中心(轴径Φ490)力臂上,小端悬臂装联轴器,24小时间断性工况,抗弯扭强度和疲劳强度是否足够?4 f- y" w( I& q7 f  n# d
  请高手不吝赐教!谢谢!  h- ^! v2 }1 K; X* M8 q! q9 H3 G
5 x) F& F2 h" [* L8 k8 d
具体的图纸在3层
" n4 w' L% c: {6 y; X+ V- S, b* B' M9 I- F3 _$ S" m
[ 本帖最后由 userkypdy 于 2009-4-26 18:41 编辑 ]
发表于 2009-4-21 09:29:49 | 显示全部楼层 来自: 中国浙江台州
能否提供轴的结构及受力示意图,那样可能比较直观。
 楼主| 发表于 2009-4-21 09:51:08 | 显示全部楼层 来自: 中国浙江湖州
轴传动.jpg
0 A- {4 n8 X5 h% x9 v  l
$ w# u4 G1 L; i) k" E先谢谢赵工!具体工况为减速机传动到轴,再由链轮输出拉力作冷拔用,请见附件!材料42CrMo,调质处理
发表于 2009-4-21 10:19:48 | 显示全部楼层 来自: 中国浙江台州
抗弯强度和疲劳强度肯定足够了。建议两点:一.你选用的轴承方式,必须有较高的油压,否则容易被咬死;二.轴的材料选用的不错,可是这种材料的淬透性(油淬)是8-10mm左右,象你这么大直径的轴,不妨选用空心轴较好,轴的内部孔径取200-220mm。以上观点供参考!

评分

参与人数 1三维币 +3 收起 理由
userkypdy + 3 积极交流

查看全部评分

 楼主| 发表于 2009-4-21 10:35:31 | 显示全部楼层 来自: 中国浙江湖州
赵工,您好!轴承润滑要取强制方式,是有考虑,具体压力要多少比较合适?8 o' R- N, A! j7 X- H7 O5 w
如果取空心轴的话,从热处理角度来讲,肯定有利,但轴径是否要加大?这样从链轮来讲,强度又会减弱,这是矛盾的地方。另外,这么大的轴,调质后,[σs]和[τs]应该取多大?σs能达到600~650MPa吗?

评分

参与人数 1三维币 +3 收起 理由
userkypdy + 3 积极交流

查看全部评分

发表于 2009-4-21 11:07:30 | 显示全部楼层 来自: 中国上海
请问您设计的时候取的安全系数是多少,功率多大

评分

参与人数 1三维币 +2 收起 理由
userkypdy + 2 积极交流

查看全部评分

发表于 2009-4-21 11:16:31 | 显示全部楼层 来自: 中国浙江台州
一.我刚才查过,42CrMoA热处理后σb可达980MPa,抱歉σs未能查到。采用空心轴,这是在轴径不变的前提,否则就没有意义了。同时,这对链轮来讲没有什么影响吧;' h/ }: D8 H. R: e2 Q
二.轴承润滑必须采用油泵外供油的方式,抱歉我无法提供具体的油压参数,我只能定性分析,无法定量分析,对不起。

评分

参与人数 1三维币 +3 收起 理由
userkypdy + 3 积极交流

查看全部评分

 楼主| 发表于 2009-4-21 12:41:24 | 显示全部楼层 来自: 中国浙江湖州
1、考虑加工性,采用空心轴不是很有利,这里材料利用率确实有不足之处;
; Q) Y' A: r# F- Y4 a$ z# T2、按设计手册,Φ250~500轴径,σb在590左右,σs只有460MPa,是否有保守?  k( `  {; `: ]) ^& v
  按理论计算,σd在155MPa左右,疲劳系数<1.5,所以有点顾虑不足。
 楼主| 发表于 2009-4-21 12:44:52 | 显示全部楼层 来自: 中国浙江湖州
润滑油压力可以自己设置调节,只要保证强制润滑不断油,就不有烧瓦的危险。

评分

参与人数 1三维币 +3 收起 理由
userkypdy + 3 积极交流

查看全部评分

 楼主| 发表于 2009-4-21 12:48:55 | 显示全部楼层 来自: 中国浙江湖州
原帖由 tigerdak 于 2009-4-21 11:07 发表 http://www.3dportal.cn/discuz/images/common/back.gif
) u/ S5 ^, F. i$ J1 H# h0 t请问您设计的时候取的安全系数是多少,功率多大

' `5 ?8 ?: @, O; }% [% o回这位朋友,功率在300KW多,安全系数按上面计算所得,转数2rpm左右
头像被屏蔽
发表于 2009-4-21 15:38:51 | 显示全部楼层 来自: 中国江苏无锡
提示: 作者被禁止或删除 内容自动屏蔽
 楼主| 发表于 2009-4-21 21:37:49 | 显示全部楼层 来自: 中国浙江湖州
谢谢楼上“六脉神剑”朋友!
7 q$ o8 H1 L1 H" |* I链轮是可以放大的,但跟我现场工作速度有关联,所以也就取这么大小而没继续取大值。
; N. U6 S& u' X) ^9 P空心轴我主要考虑加工的经济性不一定合算,对安装,维修较少碰到,所以如可能请指明妙处!
发表于 2009-4-21 22:15:14 | 显示全部楼层 来自: 中国上海
42CrMo以下数据:
* E5 e  M& h/ d) j# r- [# Q) W试件尺寸 直径25mm,淬火54~60HRC,EX 213GPa, NUXY 0.286, σb 1080,σs 930 ,以上出自《机械工程师手册》( S/ Y7 ?! C/ N' p4 l& i5 v+ i
扭转疲劳极限493.1MPa, 《先进制造与自动化科学数据共享网》
1 G2 I! @1 c: V9 |; v* M按《机械设计手册》估算轴径应不小于545mm,  ; p: B( D# h5 v6 x& c  u" }
轴径490mm的话用有限元算等效应力约100MPa,未计算键槽处的应力集中,按以往计算经验键槽处的局部应力要比轴身处高许多(未对整个轴建模所以未计算键槽)6 m/ D3 \4 ]) N0 }$ m& n
建议按机械设计手册校核键槽侧面的挤压强度。4 @5 A2 s/ x9 O5 y" a3 a+ K/ {+ X
我见过的比较粗的轴(大的直径1米多),整根的是用整体锻件,也有做成空心的,是采用分段焊接的方式,焊接要求比较高。, s+ U* l( _& O( h+ q$ s, I0 c
以上信息供参考。
7 E  i1 H' B8 ]4 C# G! Z" S4 }! a, w5 ~. l
[ 本帖最后由 tigerdak 于 2009-4-21 22:16 编辑 ]

评分

参与人数 1三维币 +5 收起 理由
userkypdy + 5 积极交流

查看全部评分

 楼主| 发表于 2009-4-21 22:23:40 | 显示全部楼层 来自: 中国浙江湖州
谢谢tigerdak朋友!; G7 q# e$ Q( `9 r$ w
在这里键传递动力的作用是次要的,主要靠过盈!/ \3 h- \2 o( W- m" z9 \
应力集中很重要,必须考虑和校核。
发表于 2009-4-22 08:55:30 | 显示全部楼层 来自: 中国四川成都
大家都不考虑1米多长的空心轴如何加工是要不得的

评分

参与人数 1三维币 +2 收起 理由
userkypdy + 2 积极交流

查看全部评分

发表于 2009-6-5 15:15:31 | 显示全部楼层 来自: 中国北京
其实用不用空心轴要看具体情况,不能一概而论。
发表于 2009-6-5 15:30:08 | 显示全部楼层 来自: 中国江苏常州
联轴器485r6(+0.132-+0.172),轴承485?
. k. d' j$ W; C+ p" @, {这个好装配????????????????7 F/ ]& J$ h) p. G5 R
-------------------------0 |& s( P, n5 i, u: D+ C
选空心轴
3 Y: s" b' g" r+ l& i2 U  ~d=Φ300* O6 q% |9 I7 u7 A3 k1 J9 N9 w
D=Φ490
3 O  B3 v- b, a% i- H4 \% u8 Bα=0.6122
% A6 ?$ Q  N. U' V0 o- [W=0.0198
4 _; X+ M  Y3 s% R7 Cσ=75.5MPa4 c* x- A; p; D! L% [& U4 x7 D
如何?????????
& q& Z) d, {+ a/ |, P# Z-----------------------+ `: W% j$ \8 l& }
你的这个过盈配合准备如何装配?
# z8 {' v1 b4 x' i" J/ O. }5 L% P% y% `6 g; g
[ 本帖最后由 eastlakewater 于 2009-6-5 15:46 编辑 ]
发表回复
您需要登录后才可以回帖 登录 | 注册

本版积分规则


Licensed Copyright © 2016-2020 http://www.3dportal.cn/ All Rights Reserved 京 ICP备13008828号

小黑屋|手机版|Archiver|三维网 ( 京ICP备2023026364号-1 )

快速回复 返回顶部 返回列表