QQ登录

只需一步,快速开始

登录 | 注册 | 找回密码

三维网

 找回密码
 注册

QQ登录

只需一步,快速开始

展开

通知     

全站
7天前
查看: 3284|回复: 10
收起左侧

[求助] 模内攻牙机

[复制链接]
发表于 2009-4-10 09:29:57 | 显示全部楼层 |阅读模式 来自: 中国福建泉州

马上注册,结识高手,享用更多资源,轻松玩转三维网社区。

您需要 登录 才可以下载或查看,没有帐号?注册

x
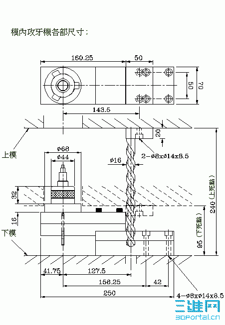
谁有“模内攻牙机”的结构图呢?最好是.dwg格式的图纸。先谢啦!
发表于 2009-4-10 16:21:52 | 显示全部楼层 来自: 中国广东深圳
模内攻牙机. H+ q# |2 c3 q" ?4 _
结构图
P5B2.gif
P5B3.gif
diagram.gif
dsnpic2.gif
gewinde-zeichnung-1.gif
gewinde-4.gif
5970103.jpg
5967308.jpg
5967228.jpg

评分

参与人数 1三维币 +3 收起 理由
虎强 + 3 积极参与

查看全部评分

 楼主| 发表于 2009-4-12 12:57:00 | 显示全部楼层 来自: 中国福建泉州

回复 2# LIAIYAO 的帖子

我真是笨,看了很久还是无法理解模内攻牙机的动作原理。
0 w# R6 P; o) O# ^" L9 w想请教2# LIAIYAO朋友,模内攻牙机装在冲压模具内是如何进行攻牙的;有没有cad图纸呢?
发表于 2009-4-12 14:35:52 | 显示全部楼层 来自: 中国广东深圳
tec1_01.jpg
6 ], }3 Q" _' h. W% X, r8 j tec1_02.jpg 5 r0 t  {% f; H& Q9 B4 Q

' ^9 G/ L7 f5 B9 g- } tapping-FLV.rar (1.1 MB, 下载次数: 43)

评分

参与人数 1三维币 +3 收起 理由
虎强 + 3 积极讨论

查看全部评分

 楼主| 发表于 2009-4-12 18:24:02 | 显示全部楼层 来自: 中国福建泉州

回复 4# LIAIYAO 的帖子

请问4# LIAIYAO:3 z4 V5 Z1 I% p  d
1.使用模内攻牙机对冲床有什么要求吗?
% j  l2 X: k$ `. i) L4 Q2.是在连续模中使用吗?! Y0 J' s; `4 q* B0 m3 Q) N3 Z
谢谢赐教。
发表于 2009-4-12 22:03:09 | 显示全部楼层 来自: 中国广东深圳
可以在连续模中使用,以冲床滑块为驱动;或以电动机为驱动。
) o  s1 }; b1 h2 t* D3 A6 Y% |也可以独立在模外,以空、油压缸或电动机为驱动。
* p- s4 z3 \7 l0 Y0 d) G1 Y
# \; b: `% b2 O3 ?+ O: b  {- C模内攻牙机对冲床有行程长度的要求。5 g- K& e( O5 y; S9 d, O0 v
攻牙机与冲床行程的关系,要求:攻牙时料条须保持水平且满足有效攻牙行程Cu恒大于或等于有效攻牙深度Du/d之对应的行程. 9 k/ }+ E- j" N4 r- n
d:表示滑块每下降1mm时,丝攻的位移量
0 s- `& S/ {+ Z* b& [; c
; g* v6 }, w9 \3 P 2009-04-12_22-00-51.gif 8 S2 M; I( \1 n# r$ h/ t" J
+ t7 ]" h5 ]$ ?, A  b$ S( f
[ 本帖最后由 LIAIYAO 于 2009-4-12 22:04 编辑 ]

评分

参与人数 1三维币 +3 收起 理由
虎强 + 3 热心助人

查看全部评分

头像被屏蔽
发表于 2009-4-20 21:48:08 | 显示全部楼层 来自: 中国广东东莞
提示: 该帖被管理员或版主屏蔽
发表于 2010-2-26 21:08:55 | 显示全部楼层 来自: 中国浙江嘉兴
谢谢了,下了。不知道有没有时间研究。
发表于 2010-11-12 13:33:23 | 显示全部楼层 来自: 中国浙江金华
可以下载吗
发表于 2010-11-12 14:58:57 | 显示全部楼层 来自: 中国河北秦皇岛
在做广告啊,你是买这个的
发表于 2011-9-15 15:51:21 | 显示全部楼层 来自: 中国广东深圳
不管是不是广告,至少让我们了解点!谢谢
发表回复
您需要登录后才可以回帖 登录 | 注册

本版积分规则


Licensed Copyright © 2016-2020 http://www.3dportal.cn/ All Rights Reserved 京 ICP备13008828号

小黑屋|手机版|Archiver|三维网 ( 京ICP备2023026364号-1 )

快速回复 返回顶部 返回列表