QQ登录

只需一步,快速开始

登录 | 注册 | 找回密码

三维网

 找回密码
 注册

QQ登录

只需一步,快速开始

展开

通知     

查看: 1478|回复: 6
收起左侧

[求助] 谁能帮忙画这一张图

[复制链接]
发表于 2009-4-7 16:31:41 | 显示全部楼层 |阅读模式 来自: 中国江苏常州

马上注册,结识高手,享用更多资源,轻松玩转三维网社区。

您需要 登录 才可以下载或查看,没有帐号?注册

x
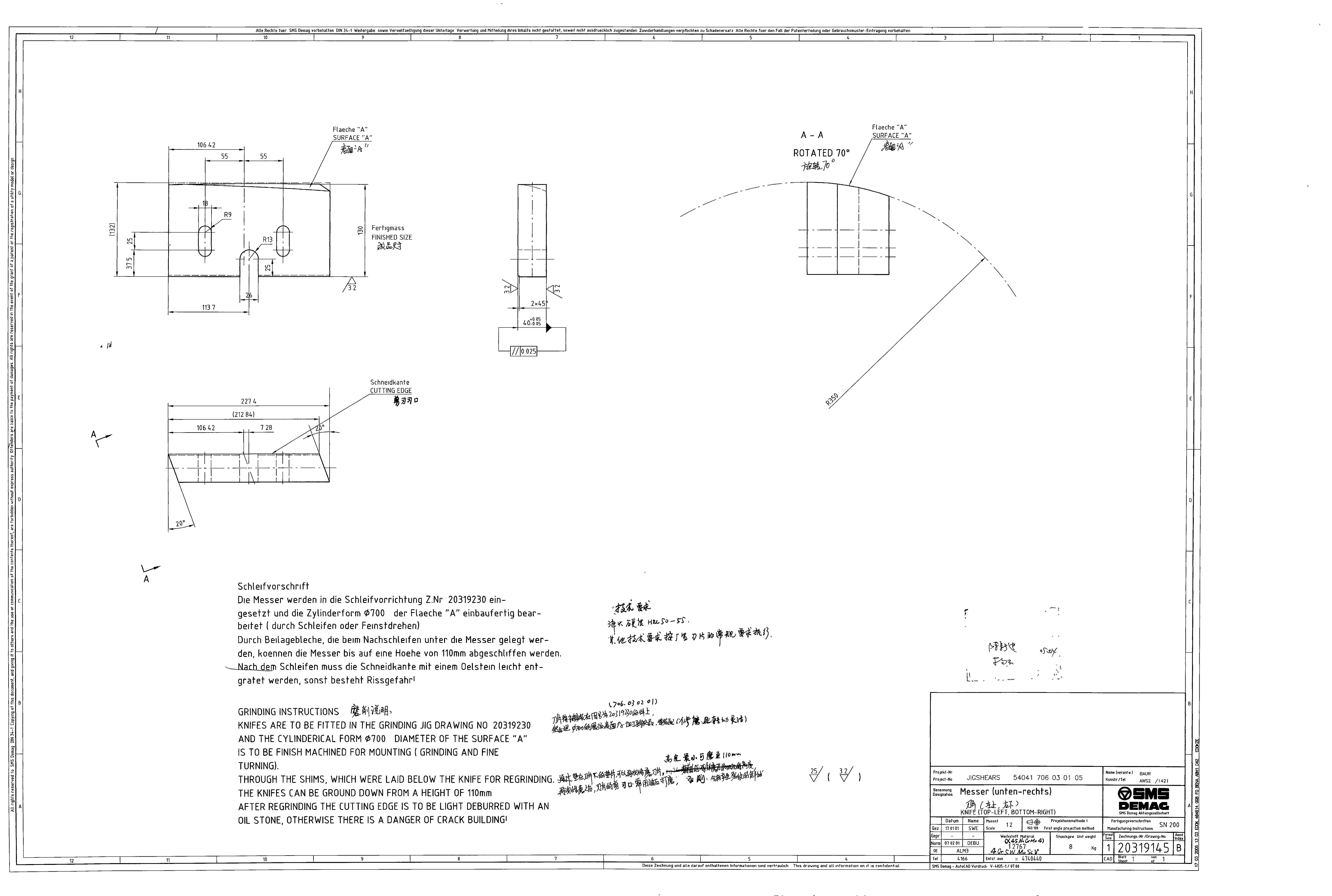
谁能帮忙画这一张图?谢谢了
54041 706 03 01 05_20319145.jpg
发表于 2009-4-7 17:50:01 | 显示全部楼层 来自: 中国湖北武汉
看都看不清楚如何帮你画呀?
发表于 2009-4-7 18:08:08 | 显示全部楼层 来自: 中国浙江宁波
这也太模糊了吧,是什么样东西都看不清楚
发表于 2009-4-7 19:32:18 | 显示全部楼层 来自: 中国云南昆明

你看这个像吗

你看这个像吗

刀片.rar

73.77 KB, 下载次数: 9

发表于 2009-4-7 19:34:35 | 显示全部楼层 来自: 中国湖南长沙
好像不是很复杂啊  但是图纸上面好像有点不对啊
发表于 2009-4-7 21:06:21 | 显示全部楼层 来自: 中国内蒙古包头
看过了,大家点击放大就可以看的很清楚
7 Q7 f& T5 {* I- M是西马克的图纸
: B& z& k# o! B. l) m' J该图中我理解的刀刃处好像是螺旋70度/ W/ N3 V6 `$ r$ w
跟楼上的感觉一样,图纸不晓得是不是存在着问题,改天我去看看实物再向大家汇报
 楼主| 发表于 2009-4-8 07:55:03 | 显示全部楼层 来自: 中国江苏常州

回复 4# 773227440 的帖子

4楼的网友谢谢你啊 不过我打不开 我的是sw2007的
发表回复
您需要登录后才可以回帖 登录 | 注册

本版积分规则


Licensed Copyright © 2016-2020 http://www.3dportal.cn/ All Rights Reserved 京 ICP备13008828号

小黑屋|手机版|Archiver|三维网 ( 京ICP备2023026364号-1 )

快速回复 返回顶部 返回列表