QQ登录

只需一步,快速开始

登录 | 注册 | 找回密码

三维网

 找回密码
 注册

QQ登录

只需一步,快速开始

展开

通知     

查看: 1341|回复: 1
收起左侧

[已答复] 弹簧选型相关问题!

[复制链接]
发表于 2009-3-24 16:46:19 | 显示全部楼层 |阅读模式 来自: 中国江苏无锡

马上注册,结识高手,享用更多资源,轻松玩转三维网社区。

您需要 登录 才可以下载或查看,没有帐号?注册

x
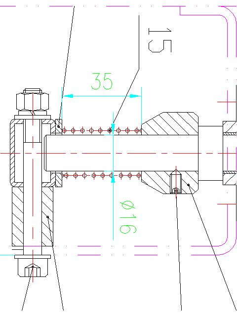
如图,弹簧15,中间导向轴径16,弹簧需承受5公斤力,图中弹簧略有压缩,还需在外力作用下压缩10mm,那么次弹簧怎么设计?
BH-JCZ-01.2-00-Model.jpg
发表于 2009-3-25 09:03:06 | 显示全部楼层 来自: 中国黑龙江佳木斯
设计时先在手册上的圆柱螺旋压缩弹簧计算表中查找类似的弹簧。估计应该是弹簧钢丝直径1.4~1.6、弹簧中经20、长度根据你的实际情况要求的圆柱螺旋压缩弹簧。选型后根据手册计算公式进行计算按要求进行调整取舍,并且绘出图纸。

评分

参与人数 1三维币 +2 收起 理由
天际孤帆 + 2 技术讨论

查看全部评分

发表回复
您需要登录后才可以回帖 登录 | 注册

本版积分规则


Licensed Copyright © 2016-2020 http://www.3dportal.cn/ All Rights Reserved 京 ICP备13008828号

小黑屋|手机版|Archiver|三维网 ( 京ICP备2023026364号-1 )

快速回复 返回顶部 返回列表