QQ登录

只需一步,快速开始

登录 | 注册 | 找回密码

三维网

 找回密码
 注册

QQ登录

只需一步,快速开始

展开

通知     

全站
9天前
查看: 1227|回复: 1
收起左侧

[讨论] 大家帮忙看看这套系统,也算是求助吧

[复制链接]
发表于 2009-3-3 16:38:43 | 显示全部楼层 |阅读模式 来自: 中国辽宁沈阳

马上注册,结识高手,享用更多资源,轻松玩转三维网社区。

您需要 登录 才可以下载或查看,没有帐号?注册

x
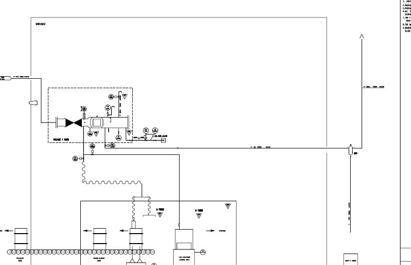
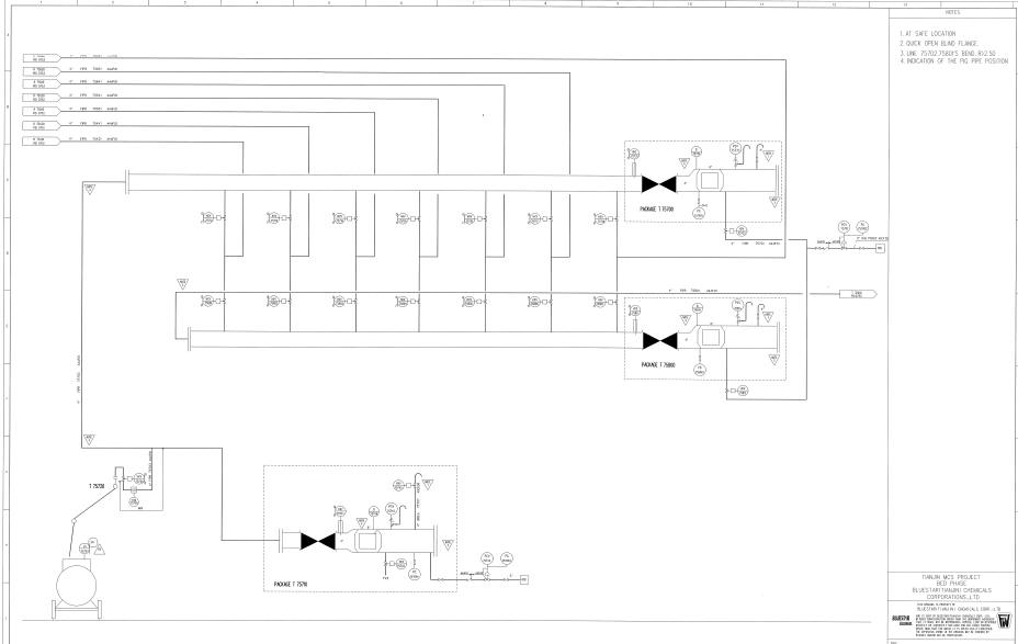
我一直认为这个是套填料系统,后来发现里面有个管道清洗用的发球筒,犹豫了!
+ h9 I) d! s6 y+ y从发球筒周边的连接设备来看3'' ,4'' 管连接到6''的筒体上像填料系统(loading system)7 p, f/ e$ n$ n% C; C
讨论加求助咯,没办法,搞不懂
Snap1.jpg
Snap2.jpg
 楼主| 发表于 2009-3-4 07:39:15 | 显示全部楼层 来自: 中国辽宁沈阳
上传我的PDF文件,供大家细看

0790-8820-750-25-0754 Rev D3.pdf

279.82 KB, 下载次数: 1

0790-8820-750-25-0755 REV D3.pdf

106.29 KB, 下载次数: 1

发表回复
您需要登录后才可以回帖 登录 | 注册

本版积分规则


Licensed Copyright © 2016-2020 http://www.3dportal.cn/ All Rights Reserved 京 ICP备13008828号

小黑屋|手机版|Archiver|三维网 ( 京ICP备2023026364号-1 )

快速回复 返回顶部 返回列表