QQ登录

只需一步,快速开始

登录 | 注册 | 找回密码

三维网

 找回密码
 注册

QQ登录

只需一步,快速开始

展开

通知     

查看: 2855|回复: 24
收起左侧

[已解决] 这个零件的加工

[复制链接]
发表于 2009-3-3 12:43:37 | 显示全部楼层 |阅读模式 来自: 中国河南焦作

马上注册,结识高手,享用更多资源,轻松玩转三维网社区。

您需要 登录 才可以下载或查看,没有帐号?注册

x
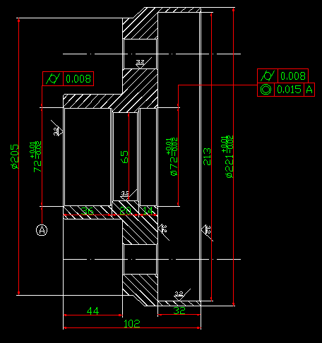
TU1.GIF TU.GIF
: F- c' h) ?: m+ S3 M6 Y) b6 s# N
我们确定的我加工工艺是  先车端面  然后用心轴定位在镗床上镗内孔 (外圆我觉得按图纸的要求没必要加工) ,在镗床上这样的内孔可不可以镗  是不是还需要夹具
  K( o& k0 e4 d- }5 i+ x- ~不知道这样定和不合理   再有就是车端面和镗内孔的余量我不知道是怎么确定的  请各位高手给予指导
6 C( u$ V  ]1 _2 C* u- N/ i: ]) J+ o. j5 A+ K4 ~% s
楼下的给的建议都很好   十楼的显然是工艺纯熟     我是初入工艺这一块  很多东西都不知道该怎么做    哪位能不能说一下这个加工余量是怎么定的  还有车床的转速是怎么确定的
4 |2 T# V. E7 D' I* V3 F( J2 T" ~0 K0 U
[ 本帖最后由 xl.zhuo 于 2009-3-7 14:13 编辑 ]
发表于 2009-3-3 12:56:52 | 显示全部楼层 来自: 中国安徽合肥
工艺过程可以是这样的,先粗车毛坯,然后在数控车上夹大端外圆,成形小端外圆、端面和各级内孔,注意所有的内孔一次成形,便于保证两轴承孔的同轴度。然后夹小端外圆,精车大端外圆和φ213内孔及端面,最后钻分度圆上各孔。

评分

参与人数 1三维币 +2 收起 理由
xl.zhuo + 2 应助

查看全部评分

发表于 2009-3-3 12:59:11 | 显示全部楼层 来自: 中国浙江温州
为什么是在镗床加工而不是在车床加工?
发表于 2009-3-3 13:01:56 | 显示全部楼层 来自: 中国湖北武汉
没必要用镗床,在车床上加工即可,精加工最好用好点的床子,量大能上数控车就更好了。
发表于 2009-3-3 16:30:44 | 显示全部楼层 来自: 中国江苏无锡
就形状来讲,车床没有问题,就是两个72的圆要圆柱度8微米,但没有给粗糙度,估计要0.8吧,车床难了点
发表于 2009-3-3 18:30:49 | 显示全部楼层 来自: 中国山东烟台
这个工件不太好加工,主要解决变形问题,在机床上测量72的孔
头像被屏蔽
发表于 2009-3-3 18:56:41 | 显示全部楼层 来自: 中国辽宁丹东
提示: 作者被禁止或删除 内容自动屏蔽
发表于 2009-3-3 21:00:59 | 显示全部楼层 来自: 中国浙江台州
工艺过程可以是这样的:
1 Y; l6 {- b3 _* ]. U5 F1.粗车毛坯(Φ223XΦ212),9 a4 b4 ^8 W& D2 h' i0 y# I2 i
2.去应力退火
6 A) k, @' t5 Q  a; a3.夹大端外圆,成形小端外圆、端面和各级内孔,注意所有的内孔一次成形,便于保证两轴承孔的同轴度。1 N' L8 H# q% u2 W+ k! P& C; H
4.穿螺纹芯棒精车大端外圆和φ213内孔及端面,
4 m" ~" R7 Q2 O5.钻孔。1 S! @3 F9 C2 c; J6 H+ ?. a
借用了2楼的东西
发表于 2009-3-3 22:00:06 | 显示全部楼层 来自: 中国山西长治
上车床吧,镗床效率太低了,至于装夹镗车和车床都有一点难度
发表于 2009-3-3 22:10:24 | 显示全部楼层 来自: 中国湖北十堰
不知你对车床及镗床的加工精度是否很了解,就楼主的零件而言,用镗加工不经济,加工成本高,且形位公差满足不了图纸要求。; @& S& m: z* Z! c
编制的工艺流程:
; R) l7 C6 e) z( C1 |$ Y1 N) K1、C:粗车外园、内孔及端面,留IIC车量,单边1mm;3 G/ C9 G& V/ [+ H) g2 ^8 j( K
2、IIC:有精度要求的内孔及外园留单边0.3mm磨量;- Z3 c# q" _- h, F: k
3、Q划:划圆周3等分孔线;
1 e6 G  i' Y/ o& W  w4 _# Y3 ~4、Z3:圆周3等分孔成;
$ V1 \0 ^2 i4 B9 e- Y5、M2:磨左端∮72内孔,靠内端面及∮221/213端面,∮65内孔按自定公差磨出;! w1 c/ ?4 `) @1 M! B
6、M:穿台阶心轴,磨∮221外园到尺寸,右端台阶外园见光;. n, H2 X, i" b1 X% R, f; s8 \
7、IIM2:上吸盘吸住∮221/213端面,找正已见光的台阶外园,磨内孔至尺寸。
9 e" z: }7 }  g% A1 E- }0 ~9 T- B这样,零件的精度及形位公差全能保证。

评分

参与人数 1三维币 +5 收起 理由
xl.zhuo + 5 应助

查看全部评分

头像被屏蔽
发表于 2009-3-4 09:12:28 | 显示全部楼层 来自: 中国山东青岛
提示: 作者被禁止或删除 内容自动屏蔽
 楼主| 发表于 2009-3-4 10:37:49 | 显示全部楼层 来自: 中国河南焦作
谢谢各位的精彩意见
发表于 2009-3-4 11:41:24 | 显示全部楼层 来自: 中国江苏常州
我也感觉上车床加工更合适.用楼上的工艺加工没问题,要比镗床跟合适哟!
发表于 2009-3-6 13:30:55 | 显示全部楼层 来自: 中国北京
现在为了提高生产效率,在设备精度允许的情况下。我们一般以车代磨,有同轴度要求的在一次装夹中车成。
发表于 2009-3-6 15:12:54 | 显示全部楼层 来自: 中国江苏苏州

回复 1# hubo141421 的帖子

找本零件加工的书看看,都有实例的。我大学的教科书上倒也有。
发表于 2009-3-6 22:32:37 | 显示全部楼层 来自: 中国浙江嘉兴
这个用车床就可以了,
发表于 2009-3-7 17:04:28 | 显示全部楼层 来自: 中国四川成都
这样的零件,关键是两个72孔的加工,由于同轴度要求很高,必须一次加工。任何找正的方法都是不可行的。一是很难保证,二是加工效率极低。由于可以分析出了,这两个孔就是一对轴承孔,应当不会有很高的粗糙度要求。所以不必上磨床加工。
6 q- K) O5 w$ I( V& w    就是在镗床上加工就行,一次穿杆,分别装刀,两个方向进给,分别把两个72孔加工出来。也可以用浮动镗刀块,保证孔径。! C: W% L  O1 Z7 E) W& X
    当然如果只作一件,也可用找正的方式。
发表于 2009-3-7 18:30:04 | 显示全部楼层 来自: 中国湖南株洲
我们的数控车完全可以的
发表于 2009-3-7 21:53:36 | 显示全部楼层 来自: 中国广东广州
先堂孔  保证在车床装夹的同轴度
发表于 2009-3-8 17:25:15 | 显示全部楼层 来自: 中国广东广州

回复 19# 314212186 的帖子

镗成本太高且效率太低!要是我做会采用数控车代替镗床。
发表于 2009-3-9 13:13:27 | 显示全部楼层 来自: 中国北京
用数控立车一次解决,先外圆再内空,现在我们厂主要是以车代磨,用数控没有问题!
发表于 2009-3-9 18:45:26 | 显示全部楼层 来自: 中国辽宁大连
初学者,向各位学习学习,受益匪浅呀
发表于 2009-3-10 19:12:22 | 显示全部楼层 来自: 中国江苏无锡
非常想知道如何一次加工出两孔,数控车床不知能否达到圆度0.008,内孔磨削能否保证同轴度0.15
发表于 2009-3-10 22:44:53 | 显示全部楼层 来自: 中国江苏泰州
原帖由 xy6658990 于 2009-3-10 19:12 发表 http://www.3dportal.cn/discuz/images/common/back.gif
0 \5 E: Y% {% O+ p非常想知道如何一次加工出两孔,数控车床不知能否达到圆度0.008,内孔磨削能否保证同轴度0.15

/ q$ Q% y/ D3 }( f5 o$ \( y& S# |/ G! G+ a  Q. S. S
我也有这个疑问,这两个形位公差怎么能保证呢?
6 E' n. r( K+ M; H' b. k, G( _5 F
7 u# f! i& h! l另外,镗与车到底有多大的区别呢?应该怎么选择?一般是能镗的也能车、能车的也能镗,所以有这个疑问,请大拿指点。
发表于 2009-3-11 04:27:06 | 显示全部楼层 来自: 中国广东江门
初学者  看到各位师傅的建议很受用  多谢!了
发表回复
您需要登录后才可以回帖 登录 | 注册

本版积分规则


Licensed Copyright © 2016-2020 http://www.3dportal.cn/ All Rights Reserved 京 ICP备13008828号

小黑屋|手机版|Archiver|三维网 ( 京ICP备2023026364号-1 )

快速回复 返回顶部 返回列表