QQ登录

只需一步,快速开始

登录 | 注册 | 找回密码

三维网

 找回密码
 注册

QQ登录

只需一步,快速开始

展开

通知     

查看: 1639|回复: 2
收起左侧

[求助] 活塞式蓄能器组充气

[复制链接]
发表于 2009-2-26 17:22:34 | 显示全部楼层 |阅读模式 来自: 中国北京

马上注册,结识高手,享用更多资源,轻松玩转三维网社区。

您需要 登录 才可以下载或查看,没有帐号?注册

x
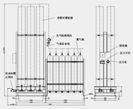
对如下图这种活塞式蓄能器组采取何种充气方式,才能将活塞式蓄能器中的空气排出?
  g& _0 u  {' w, u) P2 k7 n
+ M5 N; M5 Z/ a" H# t" p[ 本帖最后由 keawen 于 2009-2-26 17:24 编辑 ]
蓄能器组.JPG
 楼主| 发表于 2009-2-26 17:25:21 | 显示全部楼层 来自: 中国北京
氮气瓶的空气比较好处理,蓄能器中的如何处理?
发表于 2010-2-23 21:19:46 | 显示全部楼层 来自: 中国江苏常州
一般是充气前,活塞在蓄能器的气腔端,充气的时候,缓慢的,使蓄能器慢慢下降
发表回复
您需要登录后才可以回帖 登录 | 注册

本版积分规则


Licensed Copyright © 2016-2020 http://www.3dportal.cn/ All Rights Reserved 京 ICP备13008828号

小黑屋|手机版|Archiver|三维网 ( 京ICP备2023026364号-1 )

快速回复 返回顶部 返回列表