QQ登录

只需一步,快速开始

登录 | 注册 | 找回密码

三维网

 找回密码
 注册

QQ登录

只需一步,快速开始

展开

通知     

查看: 1231|回复: 5
收起左侧

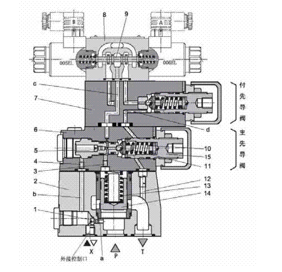
[求助] 求力士乐的溢流阀DB3U.30.E2.2X

[复制链接]
发表于 2009-1-9 05:57:58 | 显示全部楼层 |阅读模式 来自: 中国广东深圳

马上注册,结识高手,享用更多资源,轻松玩转三维网社区。

您需要 登录 才可以下载或查看,没有帐号?注册

x
求力士乐的溢流阀DB3U.30.E2.2X,样本或结构图都可以4 B- K  K" x$ T
( E. }7 w6 C" w
[ 本帖最后由 anjin1982 于 2009-1-12 16:56 编辑 ]
图样1.GIF
发表于 2009-1-9 15:06:07 | 显示全部楼层 来自: 中国天津
爱莫能助啊!接触这么多年的力士乐了,没有见过这个型号。建议,楼主确认型号。最好能贴张照片出来。
 楼主| 发表于 2009-1-12 14:45:07 | 显示全部楼层 来自: 中国广东深圳

回复 1# anjin1982 的帖子

自己顶一下,希望有人能帮忙
发表于 2009-1-12 17:16:18 | 显示全部楼层 来自: 中国北京
DB3U的阀华德和REXROTH都有,我的结构图很不清楚;
" Y3 c! B6 J9 O" c9 t+ z! L5 ?( X请向厂家索取! t! p4 {1 \0 n- x' c% W& P
 楼主| 发表于 2009-1-12 19:19:02 | 显示全部楼层 来自: 中国广东深圳

回复 4# gxp1014 的帖子

模糊也可以,能否给我一些力士乐的DB3U.30.E2.2X
0 k# A+ h. V) s" K: {& P6 U( R1 q, s资料
 楼主| 发表于 2009-1-16 11:01:27 | 显示全部楼层 来自: 中国广东深圳

回复 1# anjin1982 的帖子

自己顶一下
发表回复
您需要登录后才可以回帖 登录 | 注册

本版积分规则


Licensed Copyright © 2016-2020 http://www.3dportal.cn/ All Rights Reserved 京 ICP备13008828号

小黑屋|手机版|Archiver|三维网 ( 京ICP备2023026364号-1 )

快速回复 返回顶部 返回列表