QQ登录

只需一步,快速开始

登录 | 注册 | 找回密码

三维网

 找回密码
 注册

QQ登录

只需一步,快速开始

展开

通知     

查看: 2270|回复: 17
收起左侧

[已答复] 急急,快解决

[复制链接]
发表于 2009-1-8 14:07:08 | 显示全部楼层 |阅读模式 来自: 中国陕西西安

马上注册,结识高手,享用更多资源,轻松玩转三维网社区。

您需要 登录 才可以下载或查看,没有帐号?注册

x
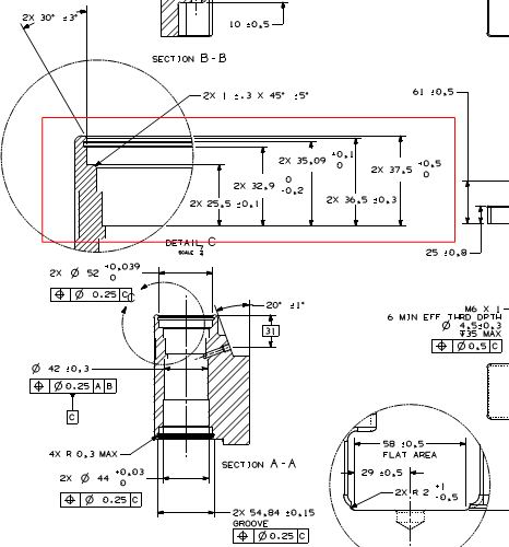
请高手帮我看看看看附件画红方框的标注和公差给的合理不合理?谢谢各位了

6066260_1_23_C_C.pdf

246.43 KB, 下载次数: 7

发表于 2009-1-8 15:02:06 | 显示全部楼层 来自: 中国安徽合肥
你附个图出来啊 别浪费别人的流量啊
发表于 2009-1-8 15:07:25 | 显示全部楼层 来自: 中国山西太原
红线方框内上端是三个台阶孔,在最上面的孔中加工一个挡圈槽,共有6个端面,以最小孔的上端面为基准,分别标出与其余5个端面的距离,分别标注公差,这样的标注是可以的,好处是没有积累误差,分别要求,达到即可。尺寸中标注的: 2×?表示下端还有与此相同的孔的端面距离。形位公差标注的也是对的,以φ42孔轴线为基准,要求两组(每组两个相同的孔)孔的位置度公差都是
标注.jpg

评分

参与人数 1三维币 +3 收起 理由
fwg4002 + 3 应助

查看全部评分

发表于 2009-1-8 20:46:24 | 显示全部楼层 来自: 中国上海
你没有附出图来,就楼上附的不完全图来看 这种标注方法叫基线标注(另一种方法叫连续标注),强调的是始终如一的依赖关系(连续标注强调的是相互的依赖关系),公差根据设计者的要求加工也是没有任何问题的(限制了最大最小尺寸而已,2X?就是楼上说的在同一个视图上有2个这样的尺寸。所以你问的这些标注毫无疑问是合理的,老外就爱这样标。其他的没看全图不好下结论

评分

参与人数 1三维币 +3 收起 理由
userkypdy + 3 积极交流

查看全部评分

发表于 2009-1-8 23:26:27 | 显示全部楼层 来自: 中国江西九江
从三楼所截图来看,图纸的尺寸标注很正常,没有那个标准规定标注的公称尺寸一定是整数的。

评分

参与人数 1三维币 +2 收起 理由
userkypdy + 2 积极交流

查看全部评分

发表于 2009-1-9 00:10:38 | 显示全部楼层 来自: 中国吉林长春
除了挡圈槽都同意,但是35.09的尺寸不方便加工,是否应该改为标槽宽% r! Q" ]* v" o" [
, O/ {8 b9 z5 G/ R$ y! J
仔细看发现槽宽的公差按照原始尺寸的公差来算好像没法标,这里边应该有毛病
/ E: _! g# u: o# H- ]4 y
7 y( f3 o5 L" {/ S; s' a: }& O. }' W- @
  Y9 j  @. x5 r# w1 e# i: Y+ u! @
明白了!! 32.9的公差0.2大于35.09的公差0.1,所以如果标槽宽的话只能先标35.09,然后往下标槽宽2.19(-0.1 -0.2)。
, u+ _% }$ v  A  I' r4 o* ^) B" T2 L8 w4 u: @! D

8 E; j0 J  z8 g9 F6 B6 @( U5 S总之这个图纸挺坏的3 |6 M8 ]2 r7 U! g/ A5 v. f# W
- O! D$ z0 V" l6 y  s0 N2 i! A/ x
[ 本帖最后由 unimont 于 2009-1-9 00:21 编辑 ]

评分

参与人数 1三维币 +2 收起 理由
userkypdy + 2 积极交流

查看全部评分

 楼主| 发表于 2009-1-9 10:11:19 | 显示全部楼层 来自: 中国陕西西安
是的这样标注是没有错,当加工起来就麻烦了,后面的检验就更麻烦了?大家帮我出出主意,看怎么检测了?
 楼主| 发表于 2009-1-9 11:04:37 | 显示全部楼层 来自: 中国陕西西安

急急!请大家帮忙讨论一下,这些尺寸怎么检验

大家看看这张图纸,画红框的部位,深度尺寸该怎么检验?我觉得设计基准和检验基准不重合,是不是涉及到尺寸链计算呀?请大家讨论一下帮我出出注意

6066260_1_23_C_C.pdf

249.29 KB, 下载次数: 4

发表于 2009-1-9 12:36:34 | 显示全部楼层 来自: 中国天津
你把图的部分附上,不然我们还有花钱下载,当然没有人回答你的问题

评分

参与人数 1三维币 +2 收起 理由
userkypdy + 2 积极交流

查看全部评分

发表于 2009-1-9 13:05:55 | 显示全部楼层 来自: 中国山东潍坊

不明白

当加工起来就麻烦了,后面的检验就更麻烦了
 楼主| 发表于 2009-1-9 13:33:30 | 显示全部楼层 来自: 中国陕西西安
[free][/free]

6066260_1_23_C_C.pdf

249.29 KB, 下载次数: 5

免费下载

发表于 2009-1-9 14:21:02 | 显示全部楼层 来自: 中国重庆
设计基准是在零件图上所采用的基准。它是标注设计尺寸的起点。$ @0 r0 k# Z4 I# P3 Q( N% x
工艺基准是在工艺过程中所使用的基准。工艺过程是一个复杂的过程,按用途不同工艺基准又可分为定位基准、工序基准、测量基准和装配基准。
6 E( X9 |( V4 {这些基准往往很多都不一致。生产的时候一般用生产图,检验是根据图纸制定检验规范再检。反正我们公司是这样做的。

评分

参与人数 1三维币 +3 收起 理由
userkypdy + 3 积极交流

查看全部评分

发表于 2009-1-9 23:37:53 | 显示全部楼层 来自: 中国上海
除了挡圈槽,其余没意见
发表于 2009-1-10 10:46:31 | 显示全部楼层 来自: 中国浙江温州
这种标法完全合理,找准一个测量基点
发表于 2009-1-10 14:05:35 | 显示全部楼层 来自: 中国上海

执行功能设计,才能确保设计基准、测量基准与装配基准统一

1. 从图片提供的信息来看,这种标注方法是不对的,不符合标准的规定。因为我们现在都用独立原则,所以图纸上红框里的尺寸都不是局部尺寸(Local dimension),所以不能检测。即测量结果不明确。这里需要将这几个尺寸都改为位置度才能进行测量并得到准确的值
1 c+ m4 ^) J) [, v6 s/ J: z3 W5 o
$ v1 t4 N! s' t4 U+ U2. 从单个零件图,我们不能判断尺寸是否多余或者应不应该标,我们只能发现标准错误。只有在零件的使用环境下我们才能找到功能尺寸。注意,同样形状的零件在不同的使用环境中执行不同的功能,那么其技术图纸也是不一样的。
" w$ ]" b% Y6 @1 F, T
2 J3 f2 C, B, X) ^! s3. 就名义值和公差带而言,一定是在满足功能的前提下设计出来的,在此我们不能判断是否合理。

评分

参与人数 1三维币 +4 收起 理由
userkypdy + 4 积极交流

查看全部评分

发表于 2009-1-10 14:50:16 | 显示全部楼层 来自: 中国陕西西安
怎末换要流量啊!
发表于 2009-1-11 20:35:42 | 显示全部楼层 来自: 中国广东江门
请你附上图,我的没流量啊
 楼主| 发表于 2009-1-12 10:16:56 | 显示全部楼层 来自: 中国河北张家口

谢谢大家

谢谢各位了,不过我的问题还没有解决呀
发表回复
您需要登录后才可以回帖 登录 | 注册

本版积分规则


Licensed Copyright © 2016-2020 http://www.3dportal.cn/ All Rights Reserved 京 ICP备13008828号

小黑屋|手机版|Archiver|三维网 ( 京ICP备2023026364号-1 )

快速回复 返回顶部 返回列表