QQ登录

只需一步,快速开始

登录 | 注册 | 找回密码

三维网

 找回密码
 注册

QQ登录

只需一步,快速开始

展开

通知     

全站
10天前
查看: 2119|回复: 7
收起左侧

[已答复] 该电机可承受多大的力?

[复制链接]
发表于 2009-1-6 14:58:45 | 显示全部楼层 |阅读模式 来自: 中国浙江温州

马上注册,结识高手,享用更多资源,轻松玩转三维网社区。

您需要 登录 才可以下载或查看,没有帐号?注册

x
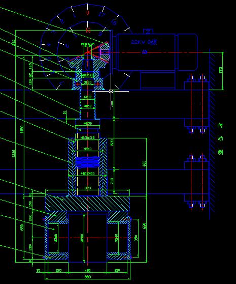
该电机可承受多大的力?
0 Z$ h; z' h8 d2 b如图,不是很清晰8 J  F8 _1 A! ^6 v; k& n
1.jpg 8 D9 @, @2 ^1 S% S7 D% K. T
电机-锥齿轮-压下螺杆-铜螺母
- J( ^! @3 V6 p* A* |, V9 ~螺杆重量不算,电机空载带重为4吨不到(辊子+轴承+铜螺母与外的滑套)2 Z* L2 Z) ^. }; |; C: {
电机:22KW    8级(704r/min) 交流电机
. X4 b2 y: ]& `锥齿轮:8 Z+ H2 o, w1 S# v1 ^4 j
电机侧 9齿   轴恻18齿---------速比=2  j: b+ N. Y4 Z2 p! J( J, v" j8 a
螺距=20$ `: O0 A) ~$ Y4 d7 g5 C
线速度=117.33mm/s=0.18M/S
) o# F4 a4 z( Y) G# }) WF=22X1000/0.18=1.23KN
# O( i8 c. _; `0 q) o4 q" U! Z1.23/9.8=12.55T  M% p7 `! `2 F$ P: ]. \/ R
我计算电机可承受12.55吨力# [9 n- k" Q8 [6 ~/ s% V* N* C
而实际自重才4吨,我们实际空试,电机转很吃力 有时候也带不动,机械方面没有卡死,我们试了下,应该为 电机吃不消/ Q6 `7 \2 D, |* H8 F, T
不知道我上面的计算是否对,,也许是 垂直传动,力比较大,不是这样计算,那应该如何计算,如何选电机,, k9 G, J5 x2 }$ i* V+ V' T$ V
麻烦大家了,急,在线等,感谢
发表于 2009-1-6 16:28:05 | 显示全部楼层 来自: 中国山西太原
“线速度=117.33mm/s=0.18M/S”应该是V=0.12m/s,$ O% M" Z9 E8 S& q% e" S
“F=22X1000/0.18=1.23KN          1.23/9.8=12.55T”    计算错误。
" t* i/ w- \. l" L" f6 `$ U  ?# g/ w9 E这里的力F不能直接用P=FV,F=P/ V直接算出,首先需用多大功率不知道,用多大的驱动力F也不知道。正确的计算步骤应为:) f: l) W- N# M  J0 G0 b0 b
1  根据支承处受的正压力N,查出摩擦因数,算出总摩擦力:F=f N
+ \0 i  l" C  ]4 s+ L2  求出摩擦力作用半径R,求出摩擦力矩T: T=FR! s! G+ V" E, l1 ^+ o' T
3  求主轴转速 n ,根据 T=9550P/ n ,求轴功率P=n /9550.。再引入总效率 η求出所需电机功率。

评分

参与人数 1三维币 +5 收起 理由
虎强 + 5 应助

查看全部评分

 楼主| 发表于 2009-1-7 13:01:41 | 显示全部楼层 来自: 中国浙江温州
原帖由 gaoyns 于 2009-1-6 16:28 发表 http://www.3dportal.cn/discuz/images/common/back.gif
! z. `% N3 t) f% H, _3 I6 X“线速度=117.33mm/s=0.18M/S”应该是V=0.12m/s,
, j. C1 J/ ^+ a“F=22X1000/0.18=1.23KN          1.23/9.8=12.55T”    计算错误。. F: U2 v" I/ N3 N7 I5 v6 W% W
这里的力F不能直接用P=FV,F=P/ V直接算出,首先需用多大功率不知道,用多大的驱动力F也不知道 ...
5 H8 U- x$ I1 _1 l

3 @% L* V- {- `. a* u, b$ s) \+ g" C( r
首先感谢gaoyns朋友
8 {2 [: q! `/ T( o# ~我还有个不清楚,摩擦因数如何查呢  是指那处的摩擦力呢
* U6 G6 L) ?2 k( b. r9 N因为我对计算一点也不了解$ \9 o# g0 K( G' ?
' t' g9 \2 w! `9 P/ Q/ c
还有你说的摩擦半径 是指那里,在我这图) ^6 R. \! p: p  `1 N9 Z
电机出力T总=T电(9550X22/704)Xi(2)X圆锥齿轮副效率(0.95)X轴滚动承效率(0.98)x铜螺母与外的滑套的滑动摩擦系数(0.2)=约111NM。" R% P" q5 Q% v

( d1 f1 V6 J/ t: _/ y3 n2 L6 w; l6 d) R8 n
F=fXN=摩擦因素X正压力(可否考虑为4吨重量)
2 K% w) t9 T; Y* h  I9 k' L4 y1 I4 h/ A9 D6 E5 o- B
T=FXR 摩擦力作用半径
3 M* f8 l1 b& z/ h7 _再求P=nXT/9550 X各大失效效率
2 N8 ^8 z- q; m2 W
) p/ P! ?. B3 q: D! C- m  Y! C* [可是我的水平有限,因为平时都是靠经验,所以我都不会计算
0 ^1 E) T" r. a3 `* V2 h. `# V( x1 j/ [) S) A  n
请高手帮忙算下8 p9 U  y4 y. W  x
现在我摩擦半径R求不出来
% x3 W& g- @& q8 I: r
+ g# e. y* Z5 I/ F, j" Z[ 本帖最后由 凉商魄 于 2009-1-7 13:42 编辑 ]
 楼主| 发表于 2009-1-7 13:48:02 | 显示全部楼层 来自: 中国浙江温州
各大圆锥齿轮副效率(0.95)X轴滚动 ... 不应该为乘  应该为除,个人理解是这样,
8 o3 n; W9 I) w; K$ x. p: w
- V! C5 n3 e3 S8 p因为这样计算,扭矩大,,因为是失效,不知道是否是为除呢
# ?/ J9 @0 \3 e$ w: ^' c& i  ?/ K) Y+ a! d+ H
& j8 \  Y' ^* I1 L6 H& S
3 J! O7 t3 k. W) M& j, J
请大家说下 麻烦了
 楼主| 发表于 2009-1-7 16:10:18 | 显示全部楼层 来自: 中国浙江温州
一般机械传动效率问题
3 m5 Z. L: R$ S$ e比如我有个传动:锥齿轮副=0.95  轴承=0.98    滑块=0.2
6 I3 S4 `* {9 m; K; K! W1 Y+ P假设:算T           22KW电机   704r/min      锥齿轮比=1:2    电机齿9    轴上18. U+ j: u* y( D* h- D
那是不是这样算啊
1 i. h4 U, C. y% ?" R  t' G1、电机出力T总=T电(9550X22/704)X速比2X圆锥齿轮副效率(0.95)X轴滚动承效率(0.98)x铜螺母与外的滑套的滑动摩擦系数(0.2)=约111NM。  ! D: z- {+ j2 W" c& G
这个为乘,,速比也是乘
7 Q0 j$ T$ ~, E) [) Y1 O还是0 C4 B# C; E+ m1 x2 m  T
2、电机出力T总=T电(9550X22/704)X(速比1/2) / 《圆锥齿轮副效率(0.95)X轴滚动承效率(0.98)x铜螺母与外的滑套的滑动摩擦系数(0.2)》=801NM。
" q. n/ \5 |* S" ?8 g这个为除,因为效率和摩擦系数都为阻力,也就是说失效,只有除才可以说是受力,计算可选大的扭矩T  再选大的功率
! j' a3 E. T; ]8 t: W% J  {不知道上都是错还是对,7 U: f& E. G$ \! q* Y
请各位老师帮忙下!~~~~~~
发表于 2009-1-7 17:24:59 | 显示全部楼层 来自: 中国山西太原

回复 3# 凉商魄 的帖子

这需了解这个机构的支承情况,例如是不是轴承支承,若是就查出轴承的滚动摩擦系数,据正压力算出摩擦力,正压力就是自重加上锥齿轮传动向下的轴向力。根据轴承结构算出摩擦半径,就可求出摩擦力矩。

评分

参与人数 1三维币 +3 收起 理由
虎强 + 3 应助

查看全部评分

发表于 2009-1-7 17:31:41 | 显示全部楼层 来自: 中国河北石家庄
你必须清楚输出端:压下螺杆要求承受的力和速度.根据这个求电机功率.
/ r! `0 Q$ M$ q: Q. @然后根据螺距和直径推出:输出端的转速。才能定电机的转速。
7 R6 ^+ a0 T' @& b$ d你好象思路不太清晰。

评分

参与人数 1三维币 +3 收起 理由
虎强 + 3 技术讨论

查看全部评分

 楼主| 发表于 2009-4-9 16:27:19 | 显示全部楼层 来自: 中国浙江温州
gan感谢大家
发表回复
您需要登录后才可以回帖 登录 | 注册

本版积分规则


Licensed Copyright © 2016-2020 http://www.3dportal.cn/ All Rights Reserved 京 ICP备13008828号

小黑屋|手机版|Archiver|三维网 ( 京ICP备2023026364号-1 )

快速回复 返回顶部 返回列表