QQ登录

只需一步,快速开始

登录 | 注册 | 找回密码

三维网

 找回密码
 注册

QQ登录

只需一步,快速开始

展开

通知     

查看: 1827|回复: 8
收起左侧

[讨论] 油缸的同步问题!!

[复制链接]
发表于 2008-12-28 12:57:23 | 显示全部楼层 |阅读模式 来自: 中国江苏南通

马上注册,结识高手,享用更多资源,轻松玩转三维网社区。

您需要 登录 才可以下载或查看,没有帐号?注册

x
各位大虾,我这边需要一个系统实现三个油缸的同步运动。请问是直接用一个换向阀加一个液压锁来控制一个油缸,还是三个油缸同时被一个换向阀与液压锁控制???
; @# t% ^( x' M" I3 \5 m如果用后者,会不会出现油缸动作滞后的问题???/
发表于 2008-12-28 13:15:24 | 显示全部楼层 来自: 中国安徽
看你这样讲的话,最简单的是直接用一只活塞缸和两只柱塞缸

评分

参与人数 1三维币 +1 收起 理由
自流井 + 1 为什么呢?

查看全部评分

 楼主| 发表于 2008-12-28 13:27:19 | 显示全部楼层 来自: 中国江苏南通
为什么????
发表于 2008-12-28 13:28:09 | 显示全部楼层 来自: 中国陕西西安
原帖由 cxl_0312 于 2008-12-28 12:57 发表 http://www.3dportal.cn/discuz/images/common/back.gif
& f: L% @! E& j% n各位大虾,我这边需要一个系统实现三个油缸的同步运动。请问是直接用一个换向阀加一个液压锁来控制一个油缸,还是三个油缸同时被一个换向阀与液压锁控制???  R# x% x3 o- P7 D; {) k
如果用后者,会不会出现油缸动作滞后的问题???/

7 r3 A9 i( ]4 T3 `" t就你的提问而言,假如系统元件可以满足的话,我认为首选是后者。先把系统中换向和支撑不同步消除了,其他问题再说。
 楼主| 发表于 2008-12-28 13:55:28 | 显示全部楼层 来自: 中国江苏南通

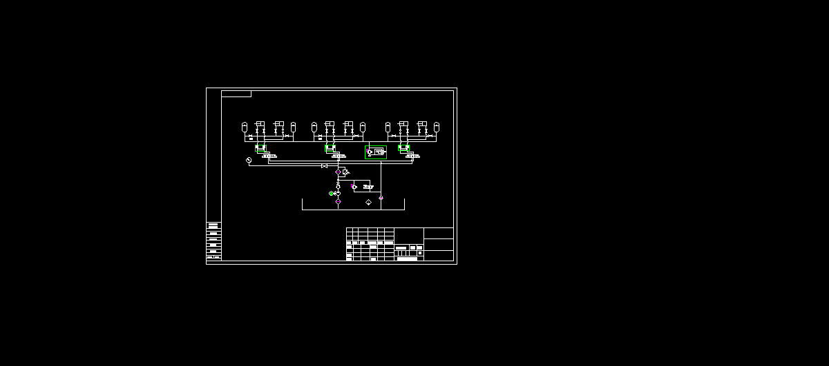
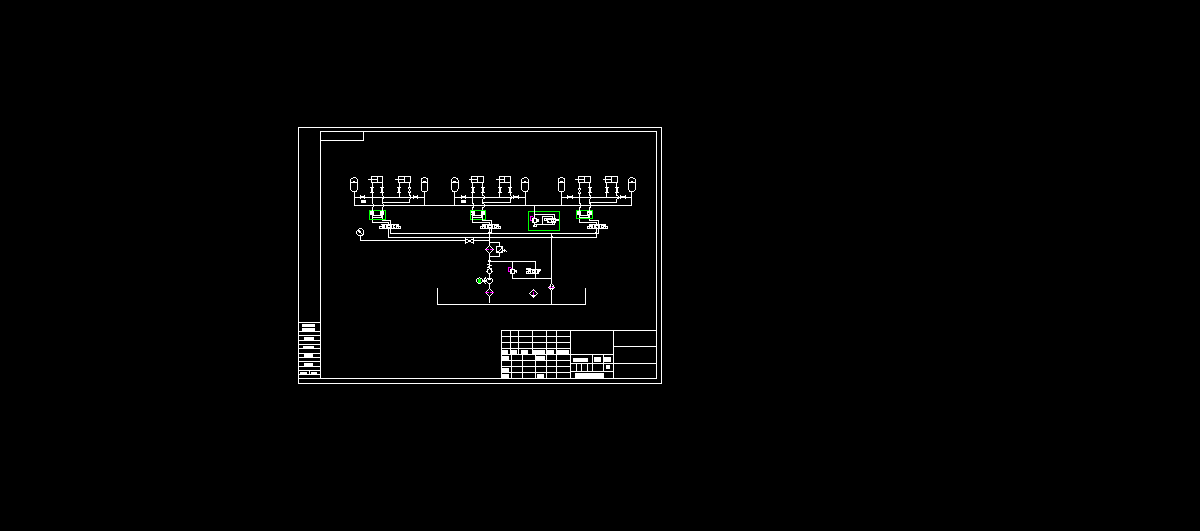
我把附件传上来

我把附件传上来,请大家帮忙看看用哪种好??是否需要修改???
3 N2 X7 `3 E; Z* B是用在立式磨机中的。
1.GIF
2.GIF
发表于 2008-12-28 14:28:48 | 显示全部楼层 来自: 中国辽宁鞍山
你传的图都是三个电磁阀的图呀,用不上三个阀呀,.
 楼主| 发表于 2008-12-28 15:08:11 | 显示全部楼层 来自: 中国江苏南通
原帖由 liuxdliuxd 于 2008-12-28 14:28 发表 http://www.3dportal.cn/discuz/images/common/back.gif- ?0 E) _$ r" v) k1 g1 _4 [
你传的图都是三个电磁阀的图呀,用不上三个阀呀,.
$ }' D6 a/ B4 P5 B' A9 p3 ^
) ~( y  o, k. m! F4 \$ _" ]
哎呀,一时粗心,给弄错了。第二个图与第一个图的区别就是一个换向阀还是三个换向阀分别控制油缸的问题。
4 ]& x+ A8 T. j0 ?  U5 ~, m8 o! G5 T3 Y  E* m/ R
依您所说是不是一个阀就可以了,而不需要用三个阀来分别控制??
3.GIF
发表于 2008-12-28 18:32:34 | 显示全部楼层 来自: 中国辽宁鞍山
液压同步是控制流量加两个同步分流积流阀有板有0.5-3的误差,用调速阀有点繁琐,都可以用看你要求多高拉,你用三个换向阀啥用也没有.另用三个换向阀得用比力换向阀用数控造价太高油缸要有数显等划不来.) G6 d- X# _4 ~) i7 N

; y# |* Z0 T8 j8 X( g[ 本帖最后由 liuxdliuxd 于 2008-12-28 18:38 编辑 ]
 楼主| 发表于 2008-12-29 09:42:20 | 显示全部楼层 来自: 中国江苏南通

回复 8# liuxdliuxd 的帖子

谢谢了,我用在水泥磨上的!!也不是多精密的东西。
发表回复
您需要登录后才可以回帖 登录 | 注册

本版积分规则


Licensed Copyright © 2016-2020 http://www.3dportal.cn/ All Rights Reserved 京 ICP备13008828号

小黑屋|手机版|Archiver|三维网 ( 京ICP备2023026364号-1 )

快速回复 返回顶部 返回列表