QQ登录

只需一步,快速开始

登录 | 注册 | 找回密码

三维网

 找回密码
 注册

QQ登录

只需一步,快速开始

展开

通知     

全站
11天前
查看: 1505|回复: 9
收起左侧

[已答复] 钻孔请教

[复制链接]
发表于 2008-12-1 21:21:05 | 显示全部楼层 |阅读模式 来自: 中国浙江温州

马上注册,结识高手,享用更多资源,轻松玩转三维网社区。

您需要 登录 才可以下载或查看,没有帐号?注册

x

* y- {: D- O# N+ W  l  i
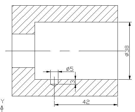
请教有心人:这个孔怎么钻(不要考虑它的设计问题,只讨论加工)
1.JPG
发表于 2008-12-1 21:37:15 | 显示全部楼层 来自: 中国江苏常州
先钻通,再用闷头堵起来。
发表于 2008-12-1 21:38:11 | 显示全部楼层 来自: 中国江苏苏州
你们的设计工程师太厉害了。。。设计成这样的孔,有什么作用呢? 用来装什么?怎么装?? 我做了那么多年设计,从来没遇到这样的/。。。% B/ r! C* o2 q8 |( K8 H' u

  O+ B& a: C1 |/ j; H4 ?% V1 o' o2 X% l0 [% w% d6 t
你这着的是来寻求帮助的还是来找乐的?9 Z8 O6 W; I% b" _5 _1 d
7 u) _1 |$ e/ t. O8 @( @
然后你真想知道答案  我也可以回答你,买个转接头(加工中心上用的) 就是L:型的(伞齿传动)。
% p5 |4 a9 Y8 m& F1 C0 N5 r! n. S6 r
0 a& y7 s+ H1 J' F7 E; K! }" V2 g不过还是建议改设计,这样的设计 太垃圾。。。不考虑加工工艺可行性!
发表于 2008-12-1 21:55:07 | 显示全部楼层 来自: 中国天津
先钻通,D5用电加工出来
发表于 2008-12-1 21:56:00 | 显示全部楼层 来自: 中国山东青岛
在它的对面先做一个大的工艺孔,然后再钻5个的孔。
发表于 2008-12-1 22:15:54 | 显示全部楼层 来自: 中国安徽六安
内孔粗加工到直径36.然后在直径5孔的上方,直接打一个孔下来.钻到深度达4,. G. S/ G% h5 ~$ M
然后在直径5的孔上方,通孔用直径5负一点的轴堵起来,轴二边倒大角,这样利于焊接.然后叫焊工上下二边对焊好,9 @5 P3 Q( u2 D" ]4 Q( G# Y; Q
然后镗到直径38.  [/ r& t3 S$ `
这样就加工完毕. ggggg.JPG % S7 y- n6 M. @; P3 M+ G
* T3 ^2 l. A+ J2 E# |
这是我的想法,不对之处,请大家讨论...9 r, {4 H  @# e, S5 h8 R
' b% q3 k7 D$ ^. u
[ 本帖最后由 xtgo123 于 2008-12-1 22:34 编辑 ]
发表于 2008-12-2 14:18:06 | 显示全部楼层 来自: 中国北京
这个零件加工工艺性不好,不过可以用电火花加工设备,做专用电极来加工。
发表于 2008-12-2 20:27:58 | 显示全部楼层 来自: 中国安徽合肥
这个零件从孔的形状上来看,应该是用钻头加工的,但没有工艺孔钻头加工需要特殊的设备,不知该孔的作用是什么,如果在孔的同侧钻通后再堵加工是否更方便.
发表于 2008-12-2 21:04:07 | 显示全部楼层 来自: 中国上海
装个角度头应该可以,将L型角度头装在卧式加工中心活镗床上,有可能可以干,38的空也太小了点。7 ^, H" Y. P+ m6 L( k" S( E* G- ]

% ^/ f0 u- y$ A$ t* V8 Y( X# s这个设计真的不怎么样!
发表于 2008-12-2 22:18:47 | 显示全部楼层 来自: 中国广东惠州
不可思议,有这样的孔,还钻?/ h0 M) s9 w3 q1 G8 Q
应该有工艺孔才可以啊
发表回复
您需要登录后才可以回帖 登录 | 注册

本版积分规则


Licensed Copyright © 2016-2020 http://www.3dportal.cn/ All Rights Reserved 京 ICP备13008828号

小黑屋|手机版|Archiver|三维网 ( 京ICP备2023026364号-1 )

快速回复 返回顶部 返回列表