QQ登录

只需一步,快速开始

登录 | 注册 | 找回密码

三维网

 找回密码
 注册

QQ登录

只需一步,快速开始

展开

通知     

查看: 1407|回复: 4
收起左侧

[分享] 液压站布置图

[复制链接]
发表于 2008-11-28 12:05:57 | 显示全部楼层 |阅读模式 来自: 中国江苏无锡

马上注册,结识高手,享用更多资源,轻松玩转三维网社区。

您需要 登录 才可以下载或查看,没有帐号?注册

x
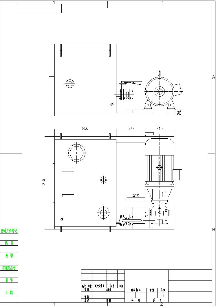
液压站布置图
发表于 2008-11-28 12:14:16 | 显示全部楼层 来自: 中国江苏无锡

液压站布置

v液压站布置
电机座-Model.jpg
发表于 2008-11-28 12:55:04 | 显示全部楼层 来自: 中国湖南长沙
好象在哪里见过
发表于 2008-12-3 01:35:40 | 显示全部楼层 来自: 中国内蒙古包头
绘制的图纸粗、细实线,都让人分不清楚啊
发表于 2008-12-3 06:39:57 | 显示全部楼层 来自: 中国辽宁鞍山
图纸不是很全阀的图怎么没有哪。
发表回复
您需要登录后才可以回帖 登录 | 注册

本版积分规则


Licensed Copyright © 2016-2020 http://www.3dportal.cn/ All Rights Reserved 京 ICP备13008828号

小黑屋|手机版|Archiver|三维网 ( 京ICP备2023026364号-1 )

快速回复 返回顶部 返回列表