QQ登录

只需一步,快速开始

登录 | 注册 | 找回密码

三维网

 找回密码
 注册

QQ登录

只需一步,快速开始

展开

通知     

全站
10天前
查看: 2484|回复: 17
收起左侧

[已解决] 请大家出出主意,这样椭圆截面的工装要怎么做?

[复制链接]
发表于 2008-11-4 09:35:50 | 显示全部楼层 |阅读模式 来自: 中国江苏无锡

马上注册,结识高手,享用更多资源,轻松玩转三维网社区。

您需要 登录 才可以下载或查看,没有帐号?注册

x
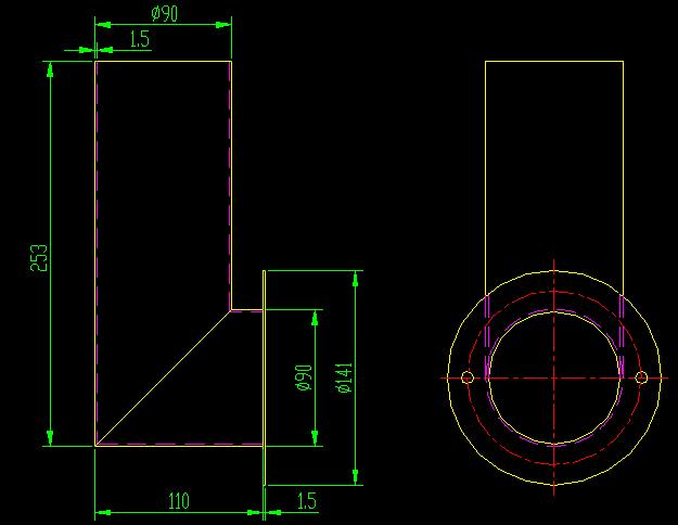
yancong.JPG : ?' Q2 I: d8 C% L" Q& I

7 _& c6 }% y2 P+ X零件如上图,是两个外径90,壁厚1.5的冷板圆筒焊接,现在想要做个自动焊接的工装来取代人工焊接,右边的那个法兰好解决的,主要问题就是45度角的截面,怎样才能使焊枪走出一个椭圆呢?还要保证结合面结合好,焊接时变形小, Y- y  j- h/ u8 b- e0 ?! Z
请大家帮忙出出主意!谢谢~~~
 楼主| 发表于 2008-11-4 15:26:01 | 显示全部楼层 来自: 中国江苏无锡
up起来~~; z! u# {" g8 a
哪位朋友有好的主意帮帮忙啊~~
发表于 2008-11-5 09:48:34 | 显示全部楼层 来自: LAN
改用90度弯头呢,焊接要求就简单了;DN80管外径在88.9MM左右,可以考虑一下。- L9 T9 \$ z, m3 O
新圖片.jpg
 楼主| 发表于 2008-11-5 10:06:10 | 显示全部楼层 来自: 中国江苏无锡
这个产品是老美的,我们无权更改他们的设计啊~~~
5 H# F  |, w) a* O& K想了几天了,还没想到什么简便能实现的方法~
发表于 2008-11-5 10:30:14 | 显示全部楼层 来自: 中国山东青岛
请问楼主:现在用什么方法焊接?电弧焊、二氧焊、氩弧焊?
发表于 2008-11-5 10:54:08 | 显示全部楼层 来自: 中国浙江宁波
二轴控制系统加步进电机滚珠丝杠,或靠模。
 楼主| 发表于 2008-11-5 13:42:20 | 显示全部楼层 来自: 中国江苏无锡

回复 5# wxzc 的帖子

用的是氩弧焊
 楼主| 发表于 2008-11-5 13:43:22 | 显示全部楼层 来自: 中国江苏无锡

回复 6# cxghzjj 的帖子

多谢!~% N+ [/ x4 V+ @& K6 i( J* L
能说得再详细点么?
发表于 2008-11-5 17:58:43 | 显示全部楼层 来自: 中国山东青岛
批量不是太大,半自动还是比较简单。点固后用机械带动使焊缝在垂直面缓慢转动,人工焊接。
 楼主| 发表于 2008-11-6 08:47:25 | 显示全部楼层 来自: 中国江苏无锡
现在就是点固后人工焊接的
# X$ ~2 g$ P/ b8 T要把它改为自动焊接" \2 ^$ N5 d. I
靠模的话大家有没有个简单的示意图给我指点下呢!
8 O+ M0 {: t; Y# {9 H* B谢谢~~~~~
发表于 2008-11-6 11:28:46 | 显示全部楼层 来自: 中国山东青岛
可以作一个和焊缝椭圆同样的凸轮来带动焊枪作上下运动。
发表于 2008-11-6 11:51:56 | 显示全部楼层 来自: 中国北京
能不能做一个跟斜面圆互补的凸轮然后让工件转起来,焊枪不动0 U3 t3 h* W7 f6 B' T
能实现吗?没有细想,楼主可以细想想
 楼主| 发表于 2008-11-6 14:46:40 | 显示全部楼层 来自: 中国江苏无锡
原帖由 wxzc 于 2008-11-6 11:28 发表 http://www.3dportal.cn/discuz/images/common/back.gif
( T/ v- `8 q; n4 \6 R$ C可以作一个和焊缝椭圆同样的凸轮来带动焊枪作上下运动。
: k' n5 T, j0 L5 p" D1 Z
谢谢~~~
" p8 B+ R3 W, M0 L. Z! O- \是个方法
2 ~9 `, O7 I3 v0 f7 C2 u椭圆的凸轮好做么?
 楼主| 发表于 2008-11-6 14:49:14 | 显示全部楼层 来自: 中国江苏无锡
原帖由 tangyasong 于 2008-11-6 11:51 发表 http://www.3dportal.cn/discuz/images/common/back.gif9 l5 X' g; f) h. s- |( g* B
能不能做一个跟斜面圆互补的凸轮然后让工件转起来,焊枪不动
! m& O" y% x: {! B; H# v能实现吗?没有细想,楼主可以细想想
  i$ ~5 _6 H- b- ?" [
谢谢~~~~3 Q/ w! m, V: U1 x2 C- P
这样工件的夹装固定也不好做的,也想过这个方法: `  r" G% k9 T8 K1 V4 t% c( j
要是夹装固定好做的话这样应该是最简单的了
发表于 2008-11-6 15:08:40 | 显示全部楼层 来自: 中国山东青岛
看你的批量是否需要作自动焊接,凸轮没什么不好作的。
, r. v7 w3 ~+ P/ i我的看法,量不是很大的话。完全可以手工焊接。只要焊缝能旋转起来,手法熟练的焊工,可以焊出很漂亮的焊缝。
 楼主| 发表于 2008-11-6 16:20:26 | 显示全部楼层 来自: 中国江苏无锡
公司现在在搞自动化,能不用人的尽量不用~
) G# `1 x% V& {" W5 y  D$ u公司的焊工人员流动又大,改成自动的会不受人员变动的影响
6 d' |  d. e+ Q+ t0 O批量么,目前看来还是不小的
发表于 2008-11-6 19:20:01 | 显示全部楼层 来自: 中国山东青岛
在工件上的法兰和传动轴的法兰之间用一个过渡件连接,使传动轴和焊缝椭圆旋转同心。传动轴上装凸轮盘,凸轮盘和焊缝椭圆相同。凸轮盘上带动一个一端是滚子的推杆。推杆上装焊枪上下运动。
4 y* `: b: ?, ?不一定成,供参考。还有引弧,熄弧等问题没考虑。
发表于 2008-11-7 10:32:14 | 显示全部楼层 来自: 中国湖北武汉
各位朋友请教
发表回复
您需要登录后才可以回帖 登录 | 注册

本版积分规则


Licensed Copyright © 2016-2020 http://www.3dportal.cn/ All Rights Reserved 京 ICP备13008828号

小黑屋|手机版|Archiver|三维网 ( 京ICP备2023026364号-1 )

快速回复 返回顶部 返回列表