QQ登录

只需一步,快速开始

登录 | 注册 | 找回密码

三维网

 找回密码
 注册

QQ登录

只需一步,快速开始

展开

通知     

全站
6天前
查看: 5543|回复: 18
收起左侧

[已解决] 建模及装配中看剖视图

[复制链接]
发表于 2008-11-3 14:10:45 | 显示全部楼层 |阅读模式 来自: 中国上海

马上注册,结识高手,享用更多资源,轻松玩转三维网社区。

您需要 登录 才可以下载或查看,没有帐号?注册

x
我用的是UG5.0的版本,我想在建模及装配的时候想看一下实体的剖面图,可就是不知道怎么操作。
8 e, t+ q9 `: q请高手帮忙解决一下。
发表于 2008-11-21 11:09:25 | 显示全部楼层 来自: 中国江苏苏州
我也想知道,以前都是做一个面切开.不知道有什么好的方法啊.
发表于 2008-11-21 13:09:05 | 显示全部楼层 来自: 中国四川成都
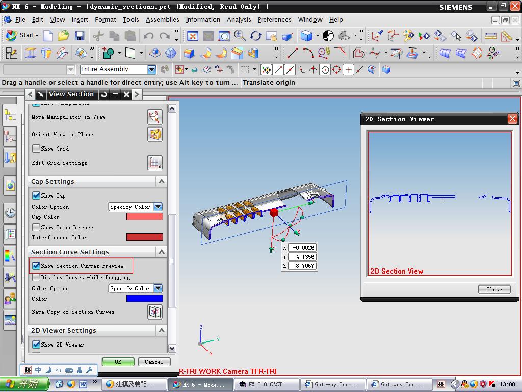
我没用过5.0,但是6.0中有这种功能,它还可以在2D中看截面形状呢
1.jpg
2.jpg
发表于 2008-11-21 13:31:47 | 显示全部楼层 来自: 中国广东深圳
就按楼上那样做就ok了
 楼主| 发表于 2008-11-21 20:38:36 | 显示全部楼层 来自: 中国上海
看来UG6.0的要比5.0的强这么多,但是UG6.0的安装后,使用建模是没什么问题,但是装配的时候总是内存错误。
发表于 2008-11-21 20:54:24 | 显示全部楼层 来自: 中国重庆
回楼上,NX所有版本都有VIEW SECTION的功能。
发表于 2008-11-22 12:20:17 | 显示全部楼层 来自: 中国江苏无锡
很好的方法,学一招.
 楼主| 发表于 2008-11-22 19:06:11 | 显示全部楼层 来自: 中国上海
那5.0的版怎么有这个功能呢?我试了一下楼上的方法,可是打不开这个呀。
 楼主| 发表于 2008-11-30 19:48:42 | 显示全部楼层 来自: 中国上海
好了解决了,是要先建基准面,再进行剖视图。
' f5 |+ V, b/ u( g: O1 K$ e非常感谢,楼上的帮助。
发表于 2009-2-3 21:12:37 | 显示全部楼层 来自: 中国陕西咸阳
三楼的方法怎么实现剖一部分实体,其他的实体不剖。比如轴之类的
发表于 2009-2-6 23:06:32 | 显示全部楼层 来自: 中国广东佛山
好东西又学一招,哈俣顶顶
发表于 2009-4-21 13:02:44 | 显示全部楼层 来自: 中国山东烟台
以上方法挺好的!!!
发表于 2009-10-13 10:47:17 | 显示全部楼层 来自: 中国广东佛山
:good 学无止境~呵呵
发表于 2010-9-17 09:38:42 | 显示全部楼层 来自: 中国北京
UG6 里CTRL+H就可以看了!
发表于 2010-9-17 12:28:44 | 显示全部楼层 来自: 中国山东滨州
我是来做任务的
发表于 2010-9-18 08:30:48 | 显示全部楼层 来自: 中国江苏常州
麻烦楼主做个教程上来,大家也学习学习。
发表于 2012-9-3 20:26:32 | 显示全部楼层 来自: 中国上海
学到新知识了。
发表于 2013-10-26 18:33:11 | 显示全部楼层 来自: 中国江苏南京
这个功能UG一直有
发表于 2014-3-7 13:15:31 | 显示全部楼层 来自: 中国广东深圳
这个功能UG一直有
发表回复
您需要登录后才可以回帖 登录 | 注册

本版积分规则


Licensed Copyright © 2016-2020 http://www.3dportal.cn/ All Rights Reserved 京 ICP备13008828号

小黑屋|手机版|Archiver|三维网 ( 京ICP备2023026364号-1 )

快速回复 返回顶部 返回列表