QQ登录

只需一步,快速开始

登录 | 注册 | 找回密码

三维网

 找回密码
 注册

QQ登录

只需一步,快速开始

展开

通知     

查看: 2137|回复: 6
收起左侧

[已答复] 电磁离合器主轴驱动和轴做成什么样的结构?

[复制链接]
发表于 2008-10-28 19:03:02 | 显示全部楼层 |阅读模式 来自: 中国辽宁沈阳

马上注册,结识高手,享用更多资源,轻松玩转三维网社区。

您需要 登录 才可以下载或查看,没有帐号?注册

x
电磁离合器主轴驱动和轴做成什么样的结构才能使离合器主驱动部分能在轴上滑动一小段距离,以便调整主、从离合器之间的距离
发表于 2009-1-10 14:55:21 | 显示全部楼层 来自: 中国四川成都
加径向位移补偿的联轴器,或做成花键轴,用花键套联轴器可实现相对滑动

评分

参与人数 1三维币 +3 收起 理由
华氏911 + 3 技术讨论

查看全部评分

发表于 2009-1-10 16:01:45 | 显示全部楼层 来自: 中国山东淄博
分多种,记得斗提和堆取料机的就不是同一种形式。最简单的就是辅驱和主驱动 之间啮合的地方采用类似十指相扣形式,中间距离可以任意调节

评分

参与人数 1三维币 +3 收起 理由
华氏911 + 3 技术讨论

查看全部评分

发表于 2009-1-20 09:14:26 | 显示全部楼层 来自: 中国四川成都
可以采用平键或花键联接,最好还要加锁紧装置,便于调整好以后,位置能固定,在工作时不发生位移。

评分

参与人数 1三维币 +3 收起 理由
华氏911 + 3 技术讨论

查看全部评分

发表于 2009-1-20 10:00:23 | 显示全部楼层 来自: 中国山西太原
电磁离合器主动轴,一般通过V带、联轴器或齿轮与电机、减速机或另一齿轮连接。离合器接合与分离靠电磁吸力和复位弹簧的弹力。离合器动盘在主轴上滑动由花键或滑键定位。

评分

参与人数 1三维币 +3 收起 理由
userkypdy + 3 积极交流

查看全部评分

发表于 2009-4-27 11:40:48 | 显示全部楼层 来自: 中国上海
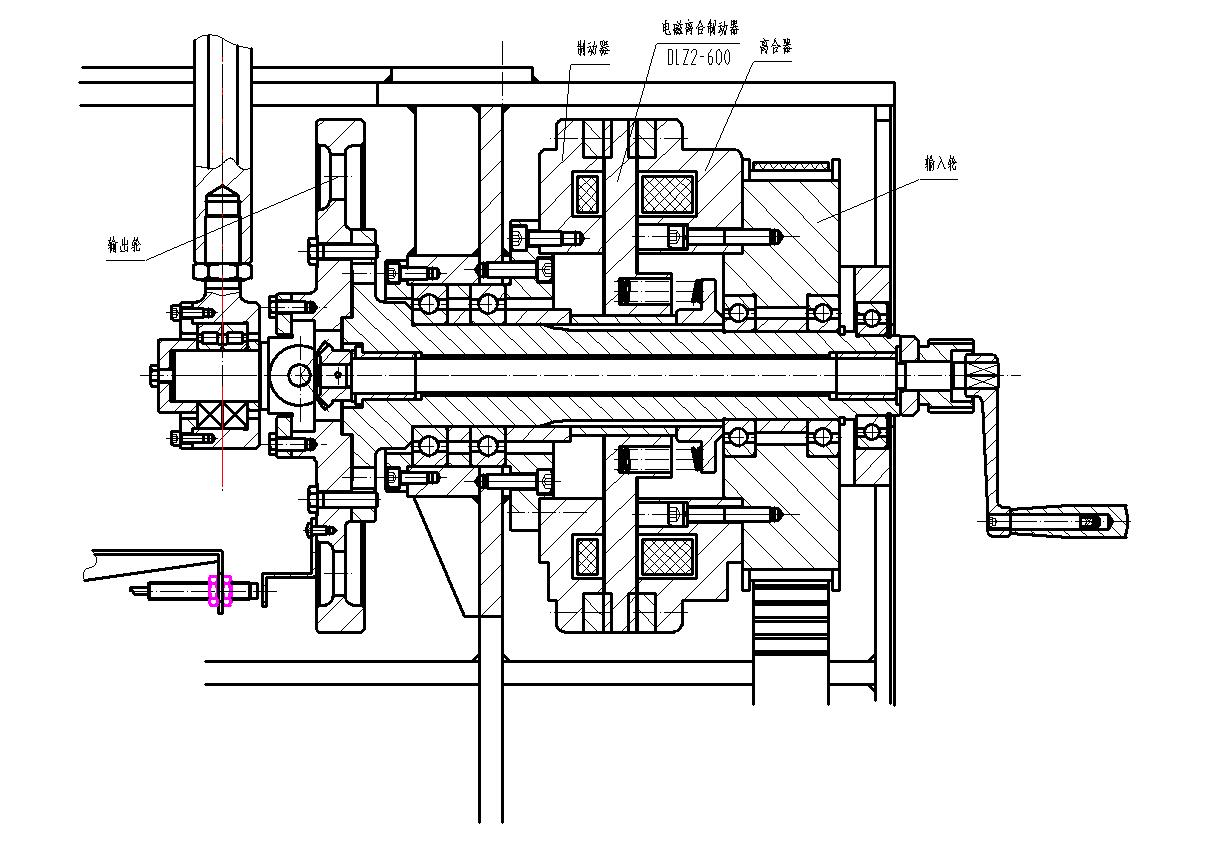
电磁离合器主轴驱动和轴做成这样的结构
3.JPG
发表于 2010-6-2 14:27:51 | 显示全部楼层 来自: 中国山东泰安
平键可以用对键
发表回复
您需要登录后才可以回帖 登录 | 注册

本版积分规则


Licensed Copyright © 2016-2020 http://www.3dportal.cn/ All Rights Reserved 京 ICP备13008828号

小黑屋|手机版|Archiver|三维网 ( 京ICP备2023026364号-1 )

快速回复 返回顶部 返回列表