QQ登录

只需一步,快速开始

登录 | 注册 | 找回密码

三维网

 找回密码
 注册

QQ登录

只需一步,快速开始

展开

通知     

查看: 2607|回复: 15
收起左侧

[求助] 用o型圈密封时,要注意那些事项?要考虑到什么因素?

[复制链接]
发表于 2008-10-27 15:39:11 | 显示全部楼层 |阅读模式 来自: 中国北京

马上注册,结识高手,享用更多资源,轻松玩转三维网社区。

您需要 登录 才可以下载或查看,没有帐号?注册

x
用o型圈密封时,要注意那些事项?要考虑到什么因素?来选用什么直径的o型圈,比如要端面密封时,选用一个还是两个,取决于那些因素?有这方面资料吗?谢谢
发表于 2008-10-27 16:05:47 | 显示全部楼层 来自: 中国山东济南
端面密封的话,首先考虑是正压还是负压$ k3 \0 D& L9 X9 O( V: h
然后选择合适的沟槽尺寸$ v) X6 L! v! B2 h8 P, |% V. j$ b
注意光洁度8 d1 q) z5 L" @# x& X: i2 u* D
一般一个就够了,具体的资料最好找一个样品参考一下比较方便
发表于 2008-10-27 16:20:48 | 显示全部楼层 来自: 中国重庆
还要考虑使用环境,选择不同的材料。如是否需耐油、耐高温、或其它耐腐蚀的物质等。
发表于 2008-10-27 17:34:44 | 显示全部楼层 来自: 中国四川成都
端面密封的话注意密封圈的容积率够大
 楼主| 发表于 2008-10-27 17:51:25 | 显示全部楼层 来自: 中国北京
谢谢各位
+ k' c) O$ L$ w% M% r比如带有轴承的轮毂,端盖密封
 楼主| 发表于 2008-10-27 18:05:36 | 显示全部楼层 来自: 中国北京
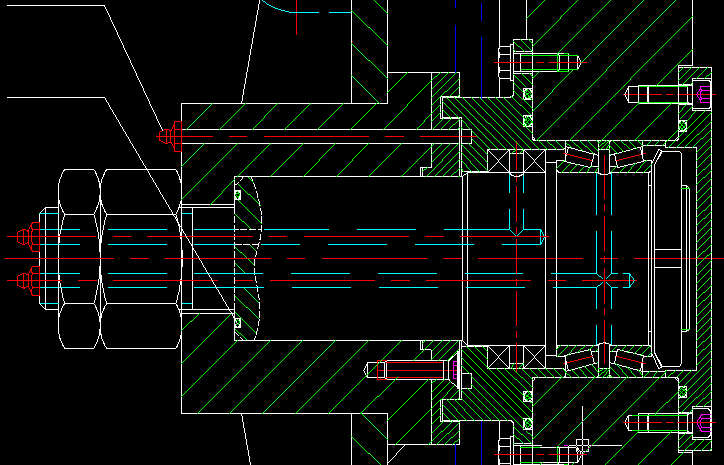
就是这种轮子,我选的不知何时否,最右边选的140*5.3的,中间的两个是145*5.3和175*5.3的,最左边是65*3.55的,沟槽尺寸是按手册对应画的,主要工作在水域里,正负压我还真不知道,不过如图所示,轴有加油孔,接有加油器,并且有内接水路,应该是内部压力大
未命名.bmp
发表于 2008-10-27 19:03:47 | 显示全部楼层 来自: 中国
按照手册基本就差不多了,注意垂直度,同轴度等等,还有倒圆角。在同样的规格前提下,尽量选择截面积大一点的。
发表于 2008-10-27 19:15:42 | 显示全部楼层 来自: 中国河南南阳

回复

O型圈密封注意:
! @2 T  m- n6 f  H, w: R; Y7 n* f1.沟槽基本尺寸
- I* W. k; s! p9 |; H/ ?2.密封面粗糙度;
7 d/ k* `4 Y0 W3.断面密封内外压之别) n! s  f" Z$ p( e6 m& N! X  X
4.密封圈硬度% U: F. c) V9 {/ p, ^+ r
5.密封圈材质
发表于 2008-10-27 21:55:43 | 显示全部楼层 来自: 中国北京
安装前看好密封圈上有没有砂眼,最好在阳光下好好摸摸看看
: J# y+ j  B. D) j( j至于公差尺寸工况啥的按照手册来基本没有什么问题的; R& B: j1 u' w3 l
4 y$ S' ~1 L2 q2 B0 Z9 C% P$ {8 U
[ 本帖最后由 wspeaker 于 2008-10-27 21:56 编辑 ]
发表于 2008-10-27 22:11:49 | 显示全部楼层 来自: 中国河北石家庄
请从本网站以下链接页下载 机械设计手册(新编软件版2008)和补丁文件" s1 e7 A( P+ Z! U. o
http://www.3dportal.cn/discuz/re ... 88281&goto=lastpost
5 n' }2 C! ?  F1 ]4 s" W! uhttp://www.3dportal.cn/discuz/viewthread.php?tid=570431&extra=&page=1
4 ~+ P$ G- a+ `& v1 V6 A/ Y8 I, q这些问题都可以自己解决了。5 b- Q, \  B$ c4 o3 J4 l) ^
! ?+ A% V/ D) `, k. X8 |# ]
[ 本帖最后由 wakang 于 2008-10-27 22:13 编辑 ]
发表于 2008-10-28 08:16:45 | 显示全部楼层 来自: 中国辽宁大连
有条件的话最好还是用进口的O型圈。就是国产的也要买大厂家的。
 楼主| 发表于 2008-10-29 16:06:14 | 显示全部楼层 来自: 中国北京
谢谢,很生动实用
发表于 2008-10-29 19:49:02 | 显示全部楼层 来自: 中国安徽合肥
如果是端面密封,最好用组合密封垫.国产的都很过关.价格也公道.
发表于 2008-10-31 19:35:13 | 显示全部楼层 来自: 中国广东广州
主要注意是不是要耐油或者是耐高温。。
发表于 2008-11-1 10:34:02 | 显示全部楼层 来自: 中国河北唐山
建议楼主设计加注黄油时的放气孔,使内部的空气及旧油能够自由流出以降低内部的压力。
 楼主| 发表于 2008-11-4 17:01:45 | 显示全部楼层 来自: 中国北京
谢谢,这个轴是固定不动的,从图中可以看出轮和左边的端盖有大约0.5mm的缝隙,此轮主要在渣水中工作,我设计了个注水孔(在左侧),可以通过不断的注水,使轮的内部保持正压,以免渣水进入内部,主要怕渣粒破坏
发表回复
您需要登录后才可以回帖 登录 | 注册

本版积分规则


Licensed Copyright © 2016-2020 http://www.3dportal.cn/ All Rights Reserved 京 ICP备13008828号

小黑屋|手机版|Archiver|三维网 ( 京ICP备2023026364号-1 )

快速回复 返回顶部 返回列表