QQ登录

只需一步,快速开始

登录 | 注册 | 找回密码

三维网

 找回密码
 注册

QQ登录

只需一步,快速开始

展开

通知     

查看: 1623|回复: 9
收起左侧

[已解决] 给图补充技术条件

 关闭 [复制链接]
发表于 2008-10-24 14:19:18 | 显示全部楼层 |阅读模式 来自: 中国江苏常州

马上注册,结识高手,享用更多资源,轻松玩转三维网社区。

您需要 登录 才可以下载或查看,没有帐号?注册

x
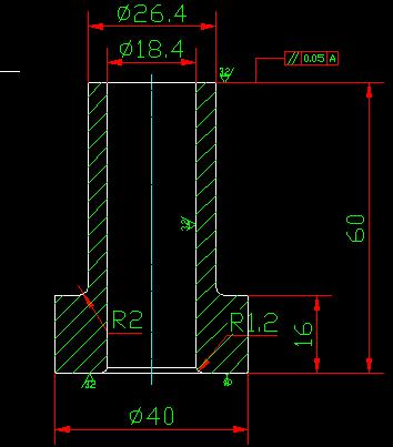
用途:用于压头,受力60KN,材料:45钢,请详细点,能想到的,必要的,不必要的都可以写/ W* [8 Q2 G8 _1 r2 B
0 s# N& G# p' i4 s' d5 x
[ 本帖最后由 asdolmlm 于 2008-11-23 17:10 编辑 ]
TT截图未命名11.jpg
发表于 2008-10-24 18:43:20 | 显示全部楼层 来自: 中国江苏苏州
材料 热处理条件
% J4 Q8 s3 L9 \8 U7 }其他未标的表面粗糙度 倒角等等

评分

参与人数 1三维币 +3 收起 理由
userkypdy + 3 积极交流

查看全部评分

发表于 2008-10-24 19:50:07 | 显示全部楼层 来自: 中国
没看明白,什么是压头?60kN压铆了吧!壁厚4mm承载不了多大的力。
发表于 2008-10-24 20:43:25 | 显示全部楼层 来自: 中国辽宁沈阳
用途没有太看明白。0 N/ J7 Z; y: D# T  Z! v6 g, @3 t+ }
不过技术要求应该有热处理要求;
3 m* }' Q0 {4 Q3 ^: c. T表面处理要求;
) g6 m3 X5 b. ~/ b5 j2 X- e未注公差要求。

评分

参与人数 1三维币 +3 收起 理由
userkypdy + 3 积极交流

查看全部评分

发表于 2008-10-24 21:55:23 | 显示全部楼层 来自: 中国江西南昌
1. 热处理要求。
( G% Z- C2 J  @  C8 [" c6 [2. 未注倒角的尺寸要求。
/ b* g* j. S5 |5 X. W0 @3. 对裂纹及内伤的要求。
6 u2 |. L0 I) D9 H; ?& M; y1 L" ^4. 未注表面粗糙度要求。+ b: x, W* [* d' z+ ~! E
5. 压头处的硬度要求。

评分

参与人数 1三维币 +3 收起 理由
sxw68 + 3 积极交流

查看全部评分

发表于 2008-10-24 22:05:13 | 显示全部楼层 来自: 中国江西九江
1.零件去除氧化皮。 6 u- j  A: f& Y
2.零件加工表面上,不应有划痕、擦伤等损伤零件表面的缺陷。
+ B" b+ O6 a! x5 j3.去除毛刺飞边。
& L# |  t+ Q# |1 T1 c4.热处理方式及硬度值。 + g6 j& b: `. g% [! G1 f* H) @
7.进行高温时效处理。 : i  W' Q- W; A! M
8.未注形状公差应符合GB1184-80的要求。 ' _; d. V  m! v& d2 J+ y* o* u
9.未注长度尺寸允许偏差要求
( A) x6 I* `  q10.未注圆角要求 % ]$ p+ S! T- U# A* n, y
11.未注倒角要求。
0 h2 ]6 t9 C. F; }12.锐角倒钝。

评分

参与人数 1三维币 +3 收起 理由
sxw68 + 3 积极交流

查看全部评分

发表于 2008-10-29 10:30:10 | 显示全部楼层 来自: 中国江苏南京
6t压力,壁厚4mm是不是薄了点

评分

参与人数 1三维币 +3 收起 理由
userkypdy + 3 积极交流

查看全部评分

发表于 2008-10-30 08:17:10 | 显示全部楼层 来自: 中国辽宁沈阳
同意7楼的意见,这个管的强度能承受了6T的重量?
发表于 2008-10-30 16:54:11 | 显示全部楼层 来自: LAN
45#調質 硬度 38
( N/ w5 o3 b4 Z( r9 D+ M& `! X% u3 |鍍鉻(防鏽)

评分

参与人数 1三维币 +3 收起 理由
userkypdy + 3 积极交流

查看全部评分

发表于 2008-10-30 23:06:11 | 显示全部楼层 来自: 中国浙江嘉兴
材质,硬度说明,加工精度等
发表回复
您需要登录后才可以回帖 登录 | 注册

本版积分规则


Licensed Copyright © 2016-2020 http://www.3dportal.cn/ All Rights Reserved 京 ICP备13008828号

小黑屋|手机版|Archiver|三维网 ( 京ICP备2023026364号-1 )

快速回复 返回顶部 返回列表