QQ登录

只需一步,快速开始

登录 | 注册 | 找回密码

三维网

 找回密码
 注册

QQ登录

只需一步,快速开始

展开

通知     

全站
7天前
查看: 4033|回复: 19
收起左侧

[讨论] 带轮的固定方式

[复制链接]
发表于 2008-9-17 15:51:29 | 显示全部楼层 |阅读模式 来自: LAN

马上注册,结识高手,享用更多资源,轻松玩转三维网社区。

您需要 登录 才可以下载或查看,没有帐号?注册

x
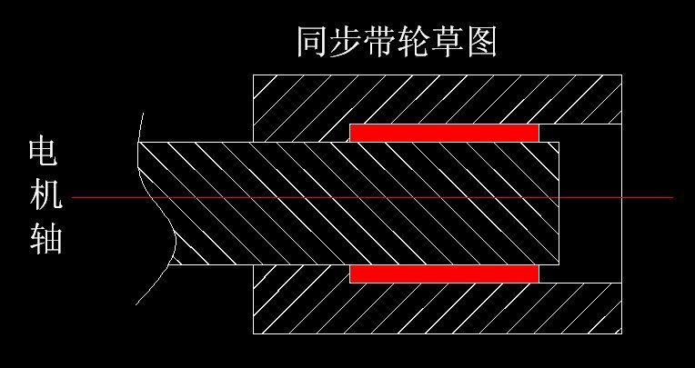
前几天,讨论过带轮的固定问题;http://www.3dportal.cn/discuz/viewthread.php?tid=567647&page=1#pid2701797$ J( R7 E( B9 z/ I& _! u6 H) [4 }
2 E/ t, e& d. [2 h+ W
今天在安装一个日本伺服马达时,发现其涨套固定带轮的结构非常巧妙,可能大家也接触过!链帖中坛友“千军一将”就有提及。
1 N) W) a5 c3 D8 Z2 r% t' L  A涨套通过四个螺丝同时收缩内孔并撑大外圆,从而固定住带轮,而且不用加工销键。
; ]7 q/ U. i/ w, ]- C
9 {$ l3 f0 N3 l6 D/ ]' R( _1 N" n# ^如图:( q/ L- e2 H/ t3 M0 f

涨套

涨套
4 `& ]3 D9 n% v- I& x4 _

红色部份为涨套

红色部份为涨套
7 z; y" c# n9 V# F. q( J9 b3 S5 |

' b4 _) g/ G3 u9 e[ 本帖最后由 虎强 于 2008-9-17 16:03 编辑 ]

评分

参与人数 1三维币 +5 收起 理由
hero2006 + 5 好议题

查看全部评分

发表于 2008-9-17 16:53:33 | 显示全部楼层 来自: 中国重庆
我认为采用涨套固定带轮有利有弊,有利方面是安装方便、能在轴向有一定量调整量,有弊方面是过载能力差,所以只能用在柔性传动中如皮带传动,而且只能应用于小功率设施

评分

参与人数 1三维币 +2 收起 理由
hero2006 + 2 技术讨论

查看全部评分

发表于 2008-9-17 18:24:58 | 显示全部楼层 来自: 中国北京
这个确实很巧妙,而且我以前设计的一个设备,用这个结构固定的4个带轮,可以推动皮带上200Kg中的物体(平动)!这是工业化的产品,我用的是石家庄链轮总厂的,质量还不错。楼主如有需要可以从那里购买。
& D% r% _1 A2 p7 t  Y# a: E8 k
& q+ M  F7 `" F4 n7 O, e[ 本帖最后由 网络菜鸟 于 2008-9-17 18:26 编辑 ]

评分

参与人数 1三维币 +2 收起 理由
hero2006 + 2 技术讨论

查看全部评分

发表于 2008-9-17 19:38:54 | 显示全部楼层 来自: 中国河北廊坊
那张工程图是什么意思
 楼主| 发表于 2008-9-17 19:43:47 | 显示全部楼层 来自: 中国广东东莞
原帖由 天津娃 于 2008-9-17 19:38 发表 http://www.3dportal.cn/discuz/images/common/back.gif
7 Y1 h% j! \2 P7 a那张工程图是什么意思
( G, h* t1 E# S: o; P0 @1 S

- B3 t! b1 V' R" {4 k呵呵,随便画的一张图。红色部份代表涨套,整张图就是表达带轮装配结构
发表于 2008-9-18 11:40:53 | 显示全部楼层 来自: LAN
这个也算是常见的结构了,优点就是便于调整和装配,缺点是制造成本高,这个东西的材料可是有讲究的,而且拆卸其实也不是很容易,涨紧套常常松不开。。。。
& \7 ^% c9 c7 E; f$ u; ~至于负载能力,的确没有键联接来的可靠,这也是常用于各种带轮的原因,但是能够对过载起到保护作用不也很好吗。

评分

参与人数 1三维币 +3 收起 理由
hero2006 + 3 技术讨论

查看全部评分

 楼主| 发表于 2008-9-18 12:41:15 | 显示全部楼层 来自: LAN
原帖由 xminsaga 于 2008-9-18 11:40 发表 http://www.3dportal.cn/discuz/images/common/back.gif
3 Z6 Y, T6 e5 I0 R' u( ^这个也算是常见的结构了,优点就是便于调整和装配,缺点是制造成本高,这个东西的材料可是有讲究的,而且拆卸其实也不是很容易,涨紧套常常松不开。。。。2 p3 v  E) @, c0 [7 T+ H' p
至于负载能力,的确没有键联接来的可靠,这也是常用于各种 ...

. o7 s9 h/ P  |' g- k2 j+ e5 }# p0 o* w+ d; g' |( }
拆卸也蛮好啊,左面图上就有螺丝顶卸的痕迹,外套上两个螺丝孔加螺丝顶住内套而分离。
发表于 2008-9-18 16:19:22 | 显示全部楼层 来自: 中国北京
原帖由 虎强 于 2008-9-18 12:41 发表 http://www.3dportal.cn/discuz/images/common/back.gif
2 U# l& y0 y6 K% `- T0 O
' ^- ^/ ]2 T/ d# v1 q" n6 Q2 o
' d" j' h+ L) C, ^( K拆卸也蛮好啊,左面图上就有螺丝顶卸的痕迹,外套上两个螺丝孔加螺丝顶住内套而分离。
% ]1 Y! b' _' `0 s
7 `2 e- W, b6 R- _8 h6 Y% a+ z% E
对!这个结构最大好处就是拆卸方便。这一点在实际工作中是非常重要的。而且类似结构还有可以装键的结构!套的厚度增加就是了。石家庄链轮总厂也有。如果在北京,直接到大的五金市场可以买到现货。
发表于 2008-9-18 21:01:37 | 显示全部楼层 来自: 中国四川成都
这种结构在数控设备上经常可以看到,只能承受不大的载荷。而且接触面的加工精度要求很高。
' }0 [1 X. w: u2 I
4 e& V% h! N5 K; M[ 本帖最后由 dahaizai 于 2008-9-18 21:11 编辑 ]
发表于 2008-9-27 11:12:10 | 显示全部楼层 来自: 中国江苏徐州
现在市场上比较流行的好像还是 锥套皮带轮* ^; P, n+ q! D/ U8 M2 D, ^
价格精度不是太高6 E) g$ }* a2 G; T/ o$ C5 n6 X
拆卸也方便
发表于 2010-11-22 11:12:34 | 显示全部楼层 来自: 中国湖北武汉
能不能具体分析一下?
发表于 2010-11-22 15:17:15 | 显示全部楼层 来自: 中国山东济南
第一次见这个东西,设计很奇妙,好!
发表于 2010-11-22 18:04:37 | 显示全部楼层 来自: 中国上海
涨套的选用可根据负载的大小再决定,可以带蛮大的负载的。 2# wsg168888
发表于 2010-11-24 12:10:56 | 显示全部楼层 来自: 中国江苏常州
可以说拆卸比较方便,价格也不高!
发表于 2010-11-25 08:07:03 | 显示全部楼层 来自: 中国山东青岛
这种涨套现在规格品种很多,都已形成系列了,大小功率都有
发表于 2011-2-18 22:31:49 | 显示全部楼层 来自: 中国广东东莞
这种涨套现在规格品种很多,都已形成系列了,大小功率都有+ ]5 `+ Q! z( Y- I1 Y+ \
汉缆股份 发表于 2010-11-25 08:07 http://www.3dportal.cn/discuz/images/common/back.gif

+ d! ]' z# A  q  a. p& b同意,现在传递大转矩的,也有很多使用涨紧套的呀!
发表于 2011-2-24 12:21:22 | 显示全部楼层 来自: 中国上海
可以说拆卸比较方便,价格也不高!
发表于 2011-2-24 17:04:54 | 显示全部楼层 来自: 中国山东青岛
路过学习学习
发表于 2011-3-3 21:54:55 | 显示全部楼层 来自: 中国广东东莞
这个确实很巧妙,设计设备
发表于 2011-3-4 14:56:28 | 显示全部楼层 来自: 中国四川南充
这玩意不错,经常用,能承受的力矩甚至比键都要好,但是占的空间要大点,由于空间的关系,有时候不好固定螺丝。
发表回复
您需要登录后才可以回帖 登录 | 注册

本版积分规则


Licensed Copyright © 2016-2020 http://www.3dportal.cn/ All Rights Reserved 京 ICP备13008828号

小黑屋|手机版|Archiver|三维网 ( 京ICP备2023026364号-1 )

快速回复 返回顶部 返回列表