QQ登录

只需一步,快速开始

登录 | 注册 | 找回密码

三维网

 找回密码
 注册

QQ登录

只需一步,快速开始

展开

通知     

查看: 1700|回复: 5
收起左侧

[讨论] 螺纹收尾角的表达

[复制链接]
发表于 2008-9-12 08:07:56 | 显示全部楼层 |阅读模式 来自: 中国浙江台州

马上注册,结识高手,享用更多资源,轻松玩转三维网社区。

您需要 登录 才可以下载或查看,没有帐号?注册

x
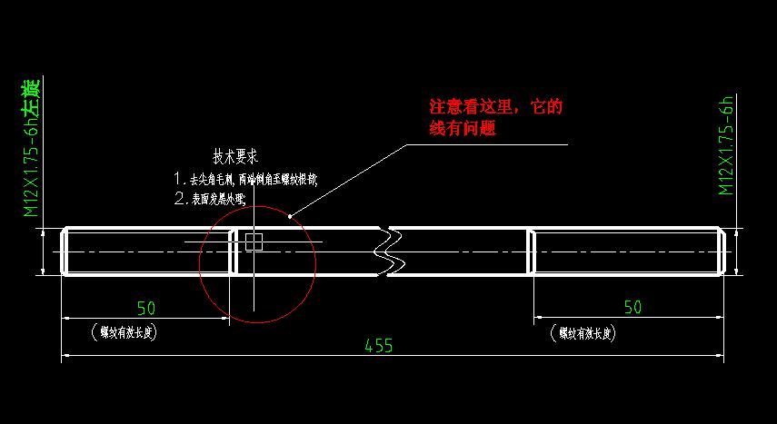
螺纹收尾角用与螺纹轴线成30°的细实线绘制,看这张图,画红圈的地方,他应该是要表达螺纹收尾倒角,他的表达似乎不妥,螺纹的收尾线应该是细线,螺纹的终止线应该是粗实线而且应该要延伸到螺纹牙顶,在螺纹收尾处,他画了两条线,第二条线表达个什么意思,没有弄明白.请各位帮忙看一下,他这张图怎样理解,怎样去读
22.JPG
发表于 2008-9-12 08:35:15 | 显示全部楼层 来自: 中国山西太原
螺纹收尾或者说开始退刀处的那条竖线是粗实线。螺纹收尾是沿螺旋线退刀,而不是像螺纹端部的倒角能切出锥面母线,因此螺纹小径的退出线应当是细实线,不应是粗实线。M12×1.75是普通粗牙螺纹,螺距1.75按规定不用标出。3 G% i8 D/ h3 t* _0 C" Q+ [) {
螺纹收尾的表示法在机械制图标准中没有螺纹终止线(上图)。而在机械设计手册中有螺纹终止线(下图)。见下二图,我想应以制图标准为准。( ~) `* j+ L. l! g) I7 F) z
3 m) h6 a! g+ G& p4 e2 w" W6 X! G( i
[ 本帖最后由 gaoyns 于 2008-9-12 09:13 编辑 ]
螺纹收尾表示法.jpg
螺纹终止线的表示法.jpg

评分

参与人数 1三维币 +5 收起 理由
华氏911 + 5 技术讨论

查看全部评分

发表于 2008-9-12 08:46:23 | 显示全部楼层 来自: 中国广东深圳
原帖由 yuanxiang 于 2008-9-12 08:07 发表 http://www.3dportal.cn/discuz/images/common/back.gif) k# `+ K3 n9 e1 h0 I4 ]- ]
螺纹收尾角用与螺纹轴线成30°的细实线绘制,看这张图,画红圈的地方,他应该是要表达螺纹收尾倒角,他的表达似乎不妥,螺纹的收尾线应该是细线,螺纹的终止线应该是粗实线而且应该要延伸到螺纹牙顶,在螺纹收尾处,他画了两 ...

! |/ i9 ?4 F1 f* R
4 o" G1 ]1 ^0 G3 q* Q% a从图上看,制图者似乎要表示螺纹的有效长度L1=30mm、L2=50mm,但这种画法欠妥,一般情况下只要用粗直线画出螺纹终止线即可,如对螺纹有效长度有要求,用标注长度公差的方法解决。

评分

参与人数 1三维币 +5 收起 理由
华氏911 + 5 技术讨论

查看全部评分

发表于 2008-9-12 22:29:01 | 显示全部楼层 来自: 中国江苏连云港
还是看看标准吧,一看就是新手画的。
发表于 2008-9-12 22:55:46 | 显示全部楼层 来自: 中国重庆
考虑钢板有导向部分用细实线表示
发表于 2008-9-13 12:27:11 | 显示全部楼层 来自: 中国江苏苏州
慢慢来的挖....................
发表回复
您需要登录后才可以回帖 登录 | 注册

本版积分规则


Licensed Copyright © 2016-2020 http://www.3dportal.cn/ All Rights Reserved 京 ICP备13008828号

小黑屋|手机版|Archiver|三维网 ( 京ICP备2023026364号-1 )

快速回复 返回顶部 返回列表