QQ登录

只需一步,快速开始

登录 | 注册 | 找回密码

三维网

 找回密码
 注册

QQ登录

只需一步,快速开始

展开

通知     

查看: 5000|回复: 33
收起左侧

[已答复] 图纸这样标注是否错误?

[复制链接]
发表于 2008-9-5 19:51:57 | 显示全部楼层 |阅读模式 来自: 韩国

马上注册,结识高手,享用更多资源,轻松玩转三维网社区。

您需要 登录 才可以下载或查看,没有帐号?注册

x
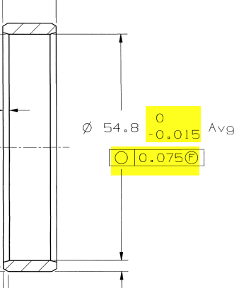
如下图:. q; c  X: o, W6 V
# ^5 p& K3 T4 b, p/ v
内径的公差要求比圆度要求要高。
image001.png
发表于 2008-9-5 20:45:35 | 显示全部楼层 来自: 中国浙江嘉兴
并不矛盾啊,公关与圆度哪个大,哪个小,并没有直接关系,就算控制了直径公差在0-0.015之间,圆度也有可能超过0.075.

评分

参与人数 1三维币 +5 收起 理由
plc + 5 应助

查看全部评分

 楼主| 发表于 2008-9-6 11:49:46 | 显示全部楼层 来自: 韩国
可是我们国外的供应商现在质疑这个设计
发表于 2008-9-6 13:50:12 | 显示全部楼层 来自: 中国北京
图纸没错,国外的供应商看来是个外行!

评分

参与人数 1三维币 +5 收起 理由
plc + 5 应助

查看全部评分

发表于 2008-9-6 14:01:25 | 显示全部楼层 来自: 中国广东珠海
尺寸与形状是两个独立的指标,从标注上没有错。

评分

参与人数 1三维币 +5 收起 理由
plc + 5 应助

查看全部评分

发表于 2008-9-6 14:55:22 | 显示全部楼层 来自: 中国山西太原
这样标注是遵循形位公差中的独立原则:图样中的每一个尺寸和形状、位置要求均是独立的,应分别满足要求。
# o- H7 j) u- ?1 J实际上只要尺寸公差合格了,圆度公差就不会超差。% \3 C( E8 }5 e9 x1 e
不过,图中的圈F我国形位公差标准中没有这种标法,我国有圈E,是包容原则,就不允许形状公差超出尺寸公差所形成的最大实体边界。

评分

参与人数 1三维币 +5 收起 理由
zyxwq + 5 应助

查看全部评分

 楼主| 发表于 2008-9-6 15:53:39 | 显示全部楼层 来自: 韩国
原帖由 gaoyns 于 2008-9-6 14:55 发表 http://www.3dportal.cn/discuz/images/common/back.gif- G) A& \  ^( u' _9 e
这样标注是遵循形位公差中的独立原则:图样中的每一个尺寸和形状、位置要求均是独立的,应分别满足要求。
+ w& Z6 e" O. ^实际上只要尺寸公差合格了,圆度公差就不会超差。$ [& T' E. c/ O5 \
不过,图中的圈F我国形位公差标准中没有这种标法,我国有 ...

. x5 C5 {1 ?- L  o& ~3 a5 h. V3 M2 t
我查了一下国内的标准,也有圈F这样的标法,是在自由状态条件下的非刚性零件的标注要求,这里是易变形的薄壁件,所以就用了圈F;8 h$ C6 I& B. Z7 r  y
这个图纸是GM北美的图纸,我只是不是太理解。
, A6 B' t# Z# W; q) w2 T# m  F: a% j' p
图纸上的Avg. 是一个什么概念?平均值?
2 j; R0 V+ S: ~% ?" P" K, i' j! Q& G; \. q% r% D
[ 本帖最后由 skyspirit 于 2008-9-6 16:38 编辑 ]

评分

参与人数 1三维币 +5 收起 理由
zyxwq + 5 积极讨论

查看全部评分

发表于 2008-9-6 16:51:44 | 显示全部楼层 来自: 中国四川德阳
明显是错误的,一般来说,尺寸公差比形状公差大,是形状公差的2-3倍.否则加工产品达不到要求

评分

参与人数 1三维币 +5 收起 理由
plc + 5 应助

查看全部评分

发表于 2008-9-6 17:16:10 | 显示全部楼层 来自: 中国上海
在ASME Y14.5M-1994(R2004) 《尺寸与公差》带圈的F也是自由状态符号。6 T, h7 E2 ~$ I# d) t
我也想Avg是平均的意思,薄壁零件测量几个方向的尺寸,其平均值作为测量尺寸。
" M: `( M3 R% f; I特殊情况下,尺寸公差和形状公差“脱离”正常的对应关系,完全是可能的。

评分

参与人数 1三维币 +5 收起 理由
plc + 5 应助

查看全部评分

发表于 2008-9-6 18:40:27 | 显示全部楼层 来自: 中国福建泉州
原帖由 skyspirit 于 2008-9-5 19:51 发表 http://www.3dportal.cn/discuz/images/common/back.gif7 f1 u: c$ v5 m* z+ F1 u, p, \
如下图:5 B9 _" F' a. q% m

( p* r3 ]; p5 |内径的公差要求比圆度要求要高。
+ h- m  n( a& Q: R! T
还真没见过这样的标注方法。
4 ^* b1 ?6 H# f5 u/ y按我的理解这样的标注是不正确的。试问:假设有一点的圆周直径测量刚好为54.80mm,如果加工时圆度误差值为最大0.075mm时,且假设为+/-0.0375mm,则说明有的圆周直径范围为54.7625~54.8375mm,很明显这个范围已超过直径公差54.785~54.80mm。不知我这样的理解是否正确?!

评分

参与人数 1三维币 +5 收起 理由
plc + 5 应助

查看全部评分

发表于 2008-9-6 19:59:42 | 显示全部楼层 来自: 中国云南昆明
标注方法没有错!加工的时候同时满足圆度和尺寸的时候有矛盾!会出来好几个结果! 我认为图纸上的标注如果让看图纸的人看出来好多个结果!最少有两个结果有矛盾的时候标注肯定有问题了!圆度和公差的范围最好在同一个范围中!同意楼上的看法!同一个东西上的尺寸有必然的联系(尽管可以各标各的,想想都想得通): W* b" N8 K3 m( |: _# I% b
楼主标法的缺点就是:可能老外以圆度为基准来加工的时候,无法满足尺寸公差要求,如果以公差为基准来搞圆度的时候心理又没有谱!5 ~# r2 N7 u  L) F9 u& g, B  G
个人认为:形状和尺寸如果同在一个物体上作为约束条件那必然有联系,不能各干各的(你的各干各的,而且数值不在一个级别,搞加工的人肯定骂,因为你让他们不知如何是好).我们的教科书绝对说错了!还有一个典型的例子:我们的机械设计教我们凸轮设计的时候是教位置关系来设计.可国外是用受力关系来设计凸轮的.尽管都搞出了,但是我们的用几天就坏了!
- Q2 c! t+ P  V0 f呼吁:请搞设计的同志们帮搞加工的同志想想他们的难处!因为大家的目的都是拿出好产品,而不是简单的交差!尽信书等于无书,说形状公差和尺寸公差没有联系的人就是尽信书之人!试想一个苹果,如果形状公差要求他是扁苹果,而尺寸公差要求他是圆苹果!它到底要做圆苹果还是扁苹果!楼主的问题和这个有点雷同!我们国家的加工企业习惯性的以尺寸公差搞好了,你标了形状公差几乎没人管这个!因为上边的人都说了原因了,而现在遇见了老牛筋的老外,人家既然你标了我就要去搞一下,结果问题出来了!两个东西有矛盾,无法同时满足要求!从这个意义上来说,图纸绝对有问题!# c3 v) L! `' I1 [& o7 p) n
/ K. M* ?. Y5 l0 y( G1 z! k
[ 本帖最后由 914438418 于 2008-9-6 20:56 编辑 ]

评分

参与人数 1三维币 +5 收起 理由
plc + 5 应助

查看全部评分

 楼主| 发表于 2008-9-6 22:22:23 | 显示全部楼层 来自: 韩国
谢谢楼上的解答。; f, l4 R. o1 X' ]4 ?; P
& |* [: r3 D7 s- q
我们供应商现在也是只能以尺寸公差为基准来加工这个零件,并且在加工图纸上提高了圆度的要求。
发表于 2008-9-7 00:00:37 | 显示全部楼层 来自: 中国重庆
从标注形式上看没有错!不过具体内容就不恰当了!
发表于 2008-9-7 08:13:43 | 显示全部楼层 来自: 中国江苏常州
这个标注从理论上来讲是没有问题的啊
' y" C: ^% a! E+ J! \9 d* L( J2 }遵守独立原则# W+ K1 J- G1 F* Q! G
但是从实际的加工和测量来讲是不现实的9 f+ X2 R  y( v3 j4 m- e2 g. M# o6 _
控制了尺寸公差: l4 J2 f0 k3 E4 V; K* X1 K; b2 ~
但是不控制形状公差
7 \& P( ~0 z) {8 j- k  j: S对装配也没有实际意义。
发表于 2008-9-7 22:47:13 | 显示全部楼层 来自: 中国广东深圳
这样给是没问题的。这个产品加工完成后会有些变形,但使用的环境可以受力变回标准形状,象有些轴承.* X( V4 j3 }( @" h; v7 x1 v+ G
但我有些不懂AVG是什么意思,有没有高手出来解释下,该怎么测量?
发表于 2008-9-8 00:46:31 | 显示全部楼层 来自: 中国浙江杭州
我认为标注没有错,只是圆度没起什么作用
发表于 2008-9-8 08:29:22 | 显示全部楼层 来自: 中国广东深圳
很想知道确切结果。从个人理解,形状公差比位置公差更容易保证,而形状公差应与尺寸公差相关联,也就是说形状公差可以靠尺寸公差保证,应适合包容原则。
发表于 2008-9-8 08:53:52 | 显示全部楼层 来自: 中国湖北武汉
没有错的,但是生产还是依据形状公差吧?
发表于 2008-9-8 09:15:27 | 显示全部楼层 来自: 中国北京
标法没错,但内容有问题( O6 F$ i5 f. q; [
圆度比尺寸公差还松那你还标他做什么???标了又有什么用) ?+ I2 Q- F/ l
不明白!!!!要吗去掉那个形状公差,在不就提高圆度的公差
3 m6 u0 {4 c( B这么标看图是没问题但加工的时候就有问题了.1 r8 Y- @/ X3 y& S1 x0 x
还有一种可能,是不是应该是圆柱度???那就可以理解了8 P0 h7 T; q' |( B5 Q" t. ?- @. |/ V
8 y8 p" U: E, j: E7 i' D
[ 本帖最后由 a114977445 于 2008-9-8 09:19 编辑 ]
发表于 2008-9-8 09:25:37 | 显示全部楼层 来自: 中国广东深圳
标法没错,但标注的内容有问题,一般来说,尺寸公差和形状公差最好在同一个精度范围,或者是尺寸公差比形状公差稍大些,这样能保证零件的加工精度,否则加工产品达不到要求。
发表于 2008-9-8 09:45:08 | 显示全部楼层 来自: 中国浙江温州
Avg是英文“Average”的缩写,就是“平均值”的意思。我觉得基本公差与圆度值选取不合理,极限公差-0.015,而圆度偏差值为:0.075(且是自由状态,非刚性零件),0.075=5X0.015(5倍),有点矛盾吧?, g4 T7 C  l5 q+ U2 Z
  Z' ~4 `6 i: ~
[ 本帖最后由 CHNLOONG 于 2008-9-8 10:01 编辑 ]
发表于 2008-9-8 13:25:12 | 显示全部楼层 来自: 中国广东惠州
用CMM测量:使用R-θ检测此零件在自由状态下测9个点,(假若测得的数据在上限有5个点,在下限有2个点,其余2点在中值)平均值为中值,圆度能保证吗?- c  q5 l1 [' K0 e0 p
    我个人认为只需去掉avg(平均值),要求在∮54.8+0.00/-0.015公差内,且在自由状态下检测圆度在0.075内。- p! ]# C4 {$ p1 x

* X$ q, i+ Q% {. }$ W) [[ 本帖最后由 MMWJ 于 2008-9-8 13:26 编辑 ]
发表于 2008-9-8 13:57:35 | 显示全部楼层 来自: 中国广东深圳
楼主,你所说的那个"国外"的客户是哪里的?国外的标准不一定和我们的一致的....
发表于 2008-9-8 18:21:39 | 显示全部楼层 来自: 中国山西太原
直径54.8,圆度0.075小于12级了,标注没有意义了。
发表于 2008-9-8 18:59:20 | 显示全部楼层 来自: 中国江苏南京
尺寸标注肯定没有错,圆度标注不可能实现
发表回复
您需要登录后才可以回帖 登录 | 注册

本版积分规则


Licensed Copyright © 2016-2020 http://www.3dportal.cn/ All Rights Reserved 京 ICP备13008828号

小黑屋|手机版|Archiver|三维网 ( 京ICP备2023026364号-1 )

快速回复 返回顶部 返回列表