QQ登录

只需一步,快速开始

登录 | 注册 | 找回密码

三维网

 找回密码
 注册

QQ登录

只需一步,快速开始

展开

通知     

查看: 10598|回复: 8
收起左侧

[已解决] 咨询下大家在标注垫圈及弹垫圈的表示方法

 关闭 [复制链接]
发表于 2008-9-4 16:38:41 | 显示全部楼层 |阅读模式 来自: 中国广东广州

马上注册,结识高手,享用更多资源,轻松玩转三维网社区。

您需要 登录 才可以下载或查看,没有帐号?注册

x
不知道大家在CAD制图里标注垫圈及弹垫圈的时候  都是什么具体标注方法呢?6 C9 l* r! o; S! Z3 Y  f8 f/ b
以前自己随便标注的  也没仔细研究过这个   所以想问下做图的兄弟们都是怎么标注的( D$ I3 l# C# t5 o+ Z$ [/ Y  L

7 V6 a9 K4 ]( ?% e以前混山寨混习惯了  也该转正行了啊& b5 b' f( e  q" ^& e
7 a& L, q: e+ v5 l& K! a
发表于 2008-9-4 19:01:27 | 显示全部楼层 来自: 中国云南昆明
就是按照机械制图来画啊,要么是个圆圈,要么是个框框,看你是哪个视图了!最主要的是你标注的时候引线引出来后注明GBXXX,别的就好表达了(标准件就不用搞零件图了,所以你的东西肯定是在装配图上标的,明细表里边统计好你的标准件的数量\什么标准,连一二三四都不用)0 X, d6 {) i- F* c3 M

- s) W+ g1 {# A- ?3 }# l' X% E[ 本帖最后由 914438418 于 2008-9-4 19:04 编辑 ]

评分

参与人数 1三维币 +5 收起 理由
wsj249201 + 5 应助

查看全部评分

 楼主| 发表于 2008-9-4 23:21:05 | 显示全部楼层 来自: 中国广东广州
具体点 就是如果是配C级 六角螺栓M10的平垫圈和弹垫圈  应该怎么表示呢?
发表于 2008-9-5 09:55:34 | 显示全部楼层 来自: 中国湖北宜昌
平垫圈φ10(GB/T95-1985),弹簧垫圈φ10(GB/T93-1987)
 楼主| 发表于 2008-9-5 09:56:54 | 显示全部楼层 来自: 中国广东广州
我现在也是这样标的  但是有别的同事说垫圈类的不需要加φ符号  所以才来问下是怎么回事
发表于 2008-9-5 14:16:20 | 显示全部楼层 来自: 中国云南昆明
不用直径符合,你同事说对了!制图标准里边有规定的!(个人看法:不用直径符号的原因是:你有标准了,C级也定了,一个垫圈如果不加标准表达的话用厚度、内径、外径就能完全表达,现在有了标准!只要内径和外径里边规定了一个肯定就确定下来了,而内径能很好的表达他和螺钉之间的关系吧,所以制作标准的人就选择了内径,既然大家都知道是内径,那就没有必要加个符合,因为图纸越简洁而且能表达特性就越好!所以就有了这个规定!所以大家都按照这样来,所以大家一看都知道!
" \/ ]+ e. v" _图纸上你加个符号那肯定是不标准的(因为制定标准的人认为看图纸的人都是专业人士:lol: ),但是采购清单上可以加!因为买卖标准件的人未必是专业人士未必就知道,为了方便他们的工作少出错!  l; w  E, S; o! ]; j5 `3 i2 S
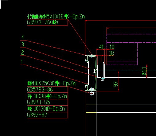
不知道我的回答你是否满意!(机械制图是没有商量的余地,我们爷爷的爷爷们订下的规矩,大家都习惯了,不符合规矩就看为错!想当理解你的苦恼)平垫圈φ10(GB/T95-1985),弹簧垫圈φ10(GB/T93-1987)应该分别表示为:平垫圈 GB/T95-1985-10-性能等级-C。(也可以把10提在最前加个小括号)为了看图方便,可以用我下图的方法,那样看起来整洁了许多:lol: )) b, H& q( }: s* ]
' ^4 N7 s6 d6 b) K; u( A
[ 本帖最后由 914438418 于 2008-9-5 14:59 编辑 ]
001.jpg
333.jpg

评分

参与人数 1三维币 +5 收起 理由
2005llnn + 5 应助

查看全部评分

发表于 2008-9-5 19:22:18 | 显示全部楼层 来自: 中国福建泉州
6楼正确,看看是这样表示
1.jpg
2.jpg
发表于 2008-9-5 22:40:32 | 显示全部楼层 来自: 中国上海
  学习了好多,标准件一定要清楚啊
发表于 2010-4-24 09:32:37 | 显示全部楼层 来自: 中国重庆
6楼讲得很详细!!!谢谢
发表回复
您需要登录后才可以回帖 登录 | 注册

本版积分规则


Licensed Copyright © 2016-2020 http://www.3dportal.cn/ All Rights Reserved 京 ICP备13008828号

小黑屋|手机版|Archiver|三维网 ( 京ICP备2023026364号-1 )

快速回复 返回顶部 返回列表