QQ登录

只需一步,快速开始

登录 | 注册 | 找回密码

三维网

 找回密码
 注册

QQ登录

只需一步,快速开始

展开

通知     

查看: 6066|回复: 34
收起左侧

[求助] 液压图看不懂!!!

[复制链接]
发表于 2008-9-3 09:23:02 | 显示全部楼层 |阅读模式 来自: 中国江苏无锡

马上注册,结识高手,享用更多资源,轻松玩转三维网社区。

您需要 登录 才可以下载或查看,没有帐号?注册

x
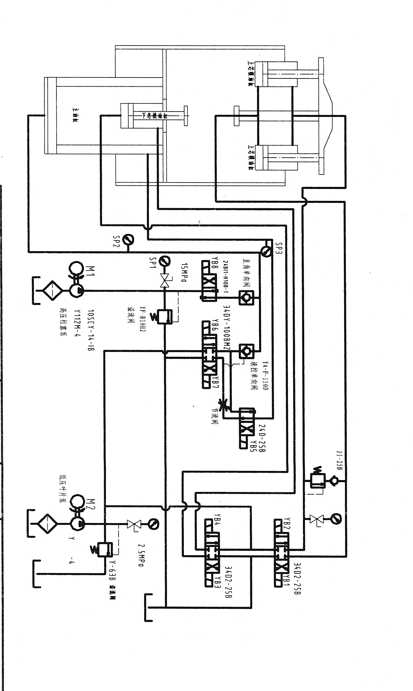
朋友提供的液压原理图,看不懂,可否请各位高手指点说明下.不胜感激!!!' l1 L& R  f  U' A# F
按油路图试车,合模时油缸盖顶了,还有一个上面二个油缸没有同步器和节流阀如何在此基础上实现同步?此设备是我厂购买的二手设备,只了解在此前工作良好!!!,拆回后只提供了以上原理图.4 s# J3 e# U4 v. g0 V4 Y0 U
' p; Q+ J5 A' Q  S3 o% A
[ 本帖最后由 hdw181 于 2008-9-3 11:12 编辑 ]
液压原理图.jpg
发表于 2008-9-3 09:46:51 | 显示全部楼层 来自: 中国北京
什么地方不懂,说说大家讨论。
 楼主| 发表于 2008-9-3 09:57:16 | 显示全部楼层 来自: 中国江苏无锡

回复 2# 的帖子

因为我对液压不太懂,所以请讲解下各个阀的动作过程!!!!0 @3 E1 O4 O5 M6 ?5 [0 E, d1 T

" q) v+ @( \. F) N* J, P  谢谢!!!
发表于 2008-9-3 10:03:09 | 显示全部楼层 来自: 中国北京
把阀放大贴上,这样看不清楚。你先看懂的,不懂得提出来。
 楼主| 发表于 2008-9-3 10:21:50 | 显示全部楼层 来自: 中国江苏无锡
阀放大后图
液压原理图1.jpg
发表于 2008-9-3 10:27:42 | 显示全部楼层 来自: 中国浙江温州
不就是几个换向阀,截止阀,单向阀嘛。先学习液压阀的原理图吧!
发表于 2008-9-3 10:40:35 | 显示全部楼层 来自: 中国广东中山
信号动作图上的YV就是原理图中的YB等...
发表于 2008-9-3 10:49:21 | 显示全部楼层 来自: 中国北京
两个泵应该是低压管流量,高压管压力。5个滑阀从左至右是1、两位四通主油缸补高压。2、三位四通主油缸快速补低压。3、主油缸低压快速调速。4、上芯模低压。5、下芯模低压。三个溢流阀限定最高压力、两个单向阀防止主油缸高/低压回流,五个压力表对各点测量压力。看来芯模油缸不用高压啊!看的仓促,大概知道这么点吧。
 楼主| 发表于 2008-9-3 11:13:44 | 显示全部楼层 来自: 中国江苏无锡

回复 8# 的帖子

在低压油进时,如何回油?
发表于 2008-9-3 11:33:53 | 显示全部楼层 来自: 中国山东泰安
下芯模油缸无杆腔进油时,有杆腔回油通过两个34D2-25B阀流到上芯模油缸的有杆腔或无杆腔;
% u% A+ O4 x$ J( h9 Y# v; R反之,下芯模油缸有杆腔进油时,无杆腔回油通过两个34D2-25B阀流到上芯模油缸的无杆腔或有杆腔。9 J8 g- m5 x' l/ t: J. K
看动作需要。
发表于 2008-9-3 11:57:27 | 显示全部楼层 来自: 中国北京

回复 9# 的帖子

主油缸么?从节流阀回翱瞻
发表于 2008-9-3 20:39:48 | 显示全部楼层 来自: 中国江苏苏州
YV5怎么一直不带电?
发表于 2008-9-4 09:19:37 | 显示全部楼层 来自: 中国北京
YB5吧?低压时常态,与YB6反动作,主油缸回程泄荷。
发表于 2008-9-4 22:47:15 | 显示全部楼层 来自: 中国云南玉溪
思路:1、先看有几个油缸,有什么动作;% M% Z3 ^8 M3 U  \! j% U
2、其次看控制每个油缸的换向阀9 Z; u4 F5 t5 K3 g9 U
3、然后看换向阀油路上的压力,流量控制阀;* `2 {/ `" z2 ~
4、最后看动力---泵了,当然要看看辅助件比如压力表等!
发表于 2008-9-5 09:04:59 | 显示全部楼层 来自: 中国江苏苏州
把液压图左上角的电磁铁动作表一步一步看懂就可以了,YB就是电磁铁
发表于 2008-9-5 11:18:41 | 显示全部楼层 来自: 中国福建厦门
好东西 学习了  谢谢
发表于 2008-9-5 12:11:44 | 显示全部楼层 来自: 中国
上面两个缸是不是硬性连接的?; j/ Y+ b) l# D% _" R1 T4 X2 e& i
要是的话就不需要同步阀了.
发表于 2008-9-5 13:07:22 | 显示全部楼层 来自: 中国山东烟台
先学习液压阀的原理图
发表于 2008-9-5 20:45:52 | 显示全部楼层 来自: 中国河北唐山
两个油缸杆为刚性连接,可以保持同步。
发表于 2008-12-12 13:38:44 | 显示全部楼层 来自: 中国重庆
学习了,谢谢
发表于 2008-12-12 15:27:58 | 显示全部楼层 来自: 中国北京
学习中,好东西
发表于 2008-12-12 19:30:17 | 显示全部楼层 来自: 中国广东佛山
大致看了一下,液压系统采两泵供油,各工作主要靠大泵供油提高速度,小泵在主油缸加压时供油,提供高压油
发表于 2008-12-12 20:27:46 | 显示全部楼层 来自: 中国河北沧州
sdfgvdbvgsdvsdvxcvrsd
发表于 2008-12-12 20:30:19 | 显示全部楼层 来自: 中国
把几个控制阀搞清楚就可以了
发表于 2008-12-12 21:53:09 | 显示全部楼层 来自: 中国浙江宁波
专研中,学习中,感谢
发表回复
您需要登录后才可以回帖 登录 | 注册

本版积分规则


Licensed Copyright © 2016-2020 http://www.3dportal.cn/ All Rights Reserved 京 ICP备13008828号

小黑屋|手机版|Archiver|三维网 ( 京ICP备2023026364号-1 )

快速回复 返回顶部 返回列表