QQ登录

只需一步,快速开始

登录 | 注册 | 找回密码

三维网

 找回密码
 注册

QQ登录

只需一步,快速开始

展开

通知     

查看: 5424|回复: 35
收起左侧

[讨论] 此工件怎么加工为最好??

[复制链接]
发表于 2008-8-23 11:28:44 | 显示全部楼层 |阅读模式 来自: 中国重庆

马上注册,结识高手,享用更多资源,轻松玩转三维网社区。

您需要 登录 才可以下载或查看,没有帐号?注册

x
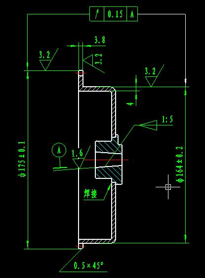
如图:此工件是由2零件焊接而成,需要车加工2外圆,1端面和锥孔  试过工艺1:先夹外圆车锥孔,再以锥孔为基准车外圆\端面.结论:失败  在车加工外圆和端面时 发震 外圆及端面粗糙度不合格.   方案2:先以内孔为基准(涨紧)车加工外圆\端面,再以车加工好的外圆为基准加工锥孔   失败:在夹外圆车锥孔后发现外圆失圆严重在0.6左右  6 {$ {4 i+ z8 i

: g" V7 w1 ]: J* P3 t
% w' f3 \) k* L' q不知道有什么更好的方法!! 大家讨论!!!' D- K* S1 f3 t6 A. e- O

( l* }' v, L3 B% F2 v2 z1 E[ 本帖最后由 asdolmlm 于 2008-9-29 16:57 编辑 ]
12.jpg
发表于 2008-8-23 11:45:39 | 显示全部楼层 来自: 中国江苏常州
你的这个问题是几个方面% `9 n) w2 c9 q6 b5 B
第一是夹具的问题
' q# d" O/ `" K8 Y- m你的第二方案是好的,但是必须做一个软爪,车好同心度后使用
# I0 {7 F4 H! o& D' p; |第二是你的内孔是没有加工要求的
5 r) a+ I+ h- z" j但是要加软爪,就必须加工,以加工后的内孔为基准来加工外圆和断面等,
. Y5 g' }+ R$ H7 Z3 Q# H第三是外圆和断面以及锥度的内孔必须同时加工出来。1 D. D7 s7 \" a6 D. C
第四是4MM的拉深件有内应力,你最好做个热处理来减轻这个的影响,否则加工后内应力释放,加剧变形。

评分

参与人数 1三维币 +3 收起 理由
zyxwq + 3 积极讨论

查看全部评分

 楼主| 发表于 2008-8-23 11:52:40 | 显示全部楼层 来自: 中国重庆
是用的软爪  也是镗同心后再夹的外圆,但是夹紧力大了就变型了(4mm的是20#钢冷拉的 应力不考虑)
发表于 2008-8-23 12:00:05 | 显示全部楼层 来自: 中国山东青岛
需要做专用卡具,卡1撑2。
发表于 2008-8-23 14:28:54 | 显示全部楼层 来自: 中国安徽合肥
建议采用方案2:先以内孔为基准(涨紧)车加工外圆\端面后,用硬木车一外径为156与件2内孔紧配的环形辅助支撑,再以车加工好的外圆为基准加工锥孔。为便于环形辅助支撑的装卸,可将其外圆锯成六边形。
发表于 2008-8-23 14:39:12 | 显示全部楼层 来自: 中国山东烟台
先车内锥孔,以锥度芯轴定位并夹紧,再在加以辅助支撑

评分

参与人数 1三维币 +2 收起 理由
zyxwq + 2 积极讨论

查看全部评分

发表于 2008-8-23 14:47:57 | 显示全部楼层 来自: 中国山东烟台
我觉得不能撑里孔,毕竟里孔不加工,如果撑里孔很有可能造成不同心。还是第一套可行,毕竟抓的地方都是需要加工的。可以保证其同心。至于发震,肯定是因为定位过短造成的,LZ修改下爪子,加长定位应该可以解决

评分

参与人数 1三维币 +2 收起 理由
zyxwq + 2 积极讨论

查看全部评分

发表于 2008-8-23 16:05:32 | 显示全部楼层 来自: 中国广东深圳
楼主,建议用164做装夹基准,把外圆和孔一次定位加工出来。。。。

评分

参与人数 1三维币 +2 收起 理由
zyxwq + 2 积极讨论

查看全部评分

 楼主| 发表于 2008-8-23 20:14:27 | 显示全部楼层 来自: 中国重庆
我想了个新方案  就是不知道效果怎么样    ,,,出来了在说```````
发表于 2008-8-23 23:16:03 | 显示全部楼层 来自: 中国广东珠海
从图上看175与164不是同心圆???
发表于 2008-8-24 17:23:21 | 显示全部楼层 来自: 中国江苏扬州
原帖由 mixin 于 2008-8-23 23:16 发表 http://www.3dportal.cn/discuz/images/common/back.gif
4 h& @/ r. J+ |  n从图上看175与164不是同心圆???

- Q9 S0 J; z2 I) X是的啊。
0 X& e2 ^- x8 s' I9 P: c外圆加工好后,内锥留余量,上钻床,找正,定心三爪夹外圆,铰锥孔。这样容易保证

评分

参与人数 1三维币 +2 收起 理由
zyxwq + 2 积极讨论

查看全部评分

发表于 2008-8-24 18:51:37 | 显示全部楼层 来自: 中国广东东莞
原帖由 mixin 于 2008-8-23 23:16 发表 http://www.3dportal.cn/discuz/images/common/back.gif
% x6 D( h0 \$ s5 y/ ]从图上看175与164不是同心圆???
8 V: N" F$ g1 c! J
* h9 Z0 U6 ~, A0 L8 o1 u( C
3 ]2 N9 J, W  f

+ Q+ u# {, ], W% L  p9 W
0 x* P+ [, G( j小弟对工艺不是很了解,但是我第一眼就看到那两个圆是不同心的,那样的话怎么车呢!想不明白,) ]+ {- |: ?  a+ u- b8 r
) t3 ?3 D) W2 @: ]9 T2 z" a
还望不要笑话我,我没有什么实践经验,所以对工艺不怎么了解,也想借楼主机会学习学习,: y6 i) k5 }4 O* y6 r" Q( g
2 c) n. L! H% ?2 y5 E
那个锥孔是怎么加工呢!用镗的吗??车外圆的时候,那个避厚4MM的地方不会被夹变形吗?
% T1 Q2 d+ s. D  r9 m" r# {
2 [( ]/ }. U) g0 B) K+ k7 A9 Y: \还望指教,我就是想不明白那两个圆就不同心,他怎么车呢!
发表于 2008-8-25 13:34:36 | 显示全部楼层 来自: 中国北京
原帖由 执着火狐狸 于 2008-8-23 14:47 发表 http://www.3dportal.cn/discuz/images/common/back.gif
) I& U# p6 s3 U+ V8 x! T& r$ Y我觉得不能撑里孔,毕竟里孔不加工,如果撑里孔很有可能造成不同心。还是第一套可行,毕竟抓的地方都是需要加工的。可以保证其同心。至于发震,肯定是因为定位过短造成的,LZ修改下爪子,加长定位应该可以解决

* G1 R) s+ H. m5 J0 P
4 A0 C, z. M0 Z3 m5 o" ~) u支撑又不是定位,为何不可行,定位依然是外圆怎么会不同心,同意先外圆后锥孔

评分

参与人数 1三维币 +1 收起 理由
zyxwq + 1 积极讨论

查看全部评分

发表于 2008-8-25 14:42:56 | 显示全部楼层 来自: 中国江苏常州
你的这个东东和某种电机壳体的是一样的
! u7 ~) p3 K9 Z: w7 k/ a! O7 `+ O----------------) G2 a  u3 q. V
夹是有讲究的' t5 Z- l6 E% w" j1 w5 \) N
不能太紧,不能太松
6 k! T7 a" Z& d" ^不过0.16可能还是有点高
头像被屏蔽
发表于 2008-8-25 15:09:02 | 显示全部楼层 来自: 中国江苏镇江
提示: 作者被禁止或删除 内容自动屏蔽
发表于 2008-8-25 15:22:19 | 显示全部楼层 来自: 中国河南新乡

壁厚不足!

壁厚不足!: Z# R6 v0 y( I- ]$ ]. |+ j
主要问题我觉得是壁厚不足,导至加工时变形,当然了铸造后的变形和加工时的变形也存在。2 b" V2 Z6 ?5 G; |7 o/ E2 \
下次再设计时,可考虑加厚壁厚。
$ `5 b; v- D$ y, C+ [4 W+ B2 Y要不寿命也成问题。
发表于 2008-8-25 17:13:36 | 显示全部楼层 来自: 中国广东深圳
原帖由 wangweimile 于 2008-8-23 11:28 发表 http://www.3dportal.cn/discuz/images/common/back.gif  t/ w2 [0 Y3 _1 N' `
如图:此工件是由2零件焊接而成,需要车加工2外圆,1端面和锥孔  试过工艺1:先夹外圆车锥孔,再以锥孔为基准车外圆\端面.结论:失败  在车加工外圆和端面时 发震 外圆及端面粗糙度不合格.   方案2:先以内孔为基准(涨紧)车 ...
% O" |- i0 b* x
% _/ w  [; X& C) R: c" t
楼主,
  ]3 F2 i+ G! I$ D& m从提供的图形看,可以采用紧配后加多点碰焊的方式,所以后道加工采用方案2还是可行的,不过在加工锥孔时需增加一个弹性夹紧套(材质优于原用材料)。
发表于 2008-8-25 23:46:06 | 显示全部楼层 来自: 中国四川成都
加工外圆明显要变形的撒,恐怕要做工装来防止变形哦
发表于 2008-8-26 00:45:24 | 显示全部楼层 来自: 中国四川宜宾
兄弟,我想的话,的东东应该要做一个夹具的吧
发表于 2008-8-26 08:59:26 | 显示全部楼层 来自: 中国江苏无锡
你需要加工的那个工件怎么尺寸不全,我觉得你的方案都不错 就是你没有考虑用好的装夹工具 要考虑调制
发表于 2008-8-26 15:41:34 | 显示全部楼层 来自: 中国广东揭阳

小弟还是不怎么明白那两个不同心的圆怎么加工

小弟还是不怎么明白那两个不同心的圆怎么加工!! Y. [0 X6 I" E4 F  |7 v$ q
还请各位多多指教!!!
发表于 2008-8-26 19:20:43 | 显示全部楼层 来自: 中国江苏常州
我对工艺不太懂4 c8 X8 T4 x/ c
能不能现在加工中心上铣外圆
6 e  W: h$ Z3 b1 ~  G4 r然后在车床上用软爪车锥孔呢?
发表于 2008-8-26 21:16:14 | 显示全部楼层 来自: 中国福建泉州
本人觉得应该先夹外圆同时车内圆及锥度孔,这样工艺上已经保证了内圆与锥度孔的同轴度,然后再以内圆为基准,采用软性弹夹,车外圆。

评分

参与人数 1三维币 +2 收起 理由
华氏911 + 2 技术讨论

查看全部评分

发表于 2008-9-8 22:10:37 | 显示全部楼层 来自: 中国广东广州
先把外壳加工巴适保证粗糙度和同心度,再把芯加工好,用过盈配合把芯压入壳内
发表于 2008-9-8 23:03:47 | 显示全部楼层 来自: 中国广东深圳
刚发怎么没记录,我再写一遍.
& o, I& V8 j# ~# i! t5 p; l基本上你是没找到合适的装夹位置车外圆.' w* ~1 ]3 s7 y* t. L
用方案一,改一点,在卡盘这边做个弹簧顶的锥销定心.在直径130-156的位置用非金属材料两边压紧(尾顶尖用活动的).车外圆,3 f" u  B' ?0 a6 _/ l/ d
呵呵,如果觉得这方法可行,别忘了告诉领导给我加分.我等着下资料
发表回复
您需要登录后才可以回帖 登录 | 注册

本版积分规则


Licensed Copyright © 2016-2020 http://www.3dportal.cn/ All Rights Reserved 京 ICP备13008828号

小黑屋|手机版|Archiver|三维网 ( 京ICP备2023026364号-1 )

快速回复 返回顶部 返回列表