QQ登录

只需一步,快速开始

登录 | 注册 | 找回密码

三维网

 找回密码
 注册

QQ登录

只需一步,快速开始

展开

通知     

查看: 3462|回复: 13
收起左侧

[已解决] 如何测量内球面

[复制链接]
发表于 2008-8-1 16:19:35 | 显示全部楼层 |阅读模式 来自: 中国安徽滁州

马上注册,结识高手,享用更多资源,轻松玩转三维网社区。

您需要 登录 才可以下载或查看,没有帐号?注册

x
如果一个球面在一个盲孔的一侧如何进行它的半径的测量
发表于 2008-8-1 16:23:05 | 显示全部楼层 来自: 中国浙江温州
如果球面尺寸精度不高,可做样板进行测量,如精度较高且批量生产应买一台三座标测量仪来测。
发表于 2008-8-1 16:44:10 | 显示全部楼层 来自: 中国广东深圳
楼主,可否把你的图纸上传?如果要保密那就算啦。。。
发表于 2008-8-1 17:09:43 | 显示全部楼层 来自: 中国上海
LZ所说“在一个盲孔的一侧”意思,我猜是指“在盲孔底部”吧?4 _* T# N6 E' n+ B7 F3 \2 Y
这就引出一个令我好奇的问题,这样的结构有何用途呢?
, s9 Q9 F( T! `7 W: J9 v2 Q希望LZ能解我之惑。+ E2 p$ V+ ^& F
如果只是天马行空,随便问问,建议下回别问类似问题!
: P" a" I5 X! p0 E3 S$ t' m8 r8 q并非针对LZ一人,只是发现论坛中这种问题很多,没有意义且浪费感情。
# m, a! P: e2 {6 m7 Q希望大家都能自我约束,不要纯粹为了积分提问或回答问题。- P" U. u; C' E8 U. a$ _+ M
如果我错了或因此冒犯了LZ,我向你道歉。

评分

参与人数 1三维币 +5 收起 理由
userkypdy + 5 积极参与

查看全部评分

发表于 2008-8-1 21:18:15 | 显示全部楼层 来自: 中国北京
孔大的话用卡尺或千分尺,孔小的话就只有抽样破检了

评分

参与人数 1三维币 +5 收起 理由
userkypdy + 5 积极参与

查看全部评分

发表于 2008-8-2 11:26:23 | 显示全部楼层 来自: 中国山西太原
非常赞成4#的建议,也发现论坛内类似的问题很多,若有实际意义,大家多想办法解决是值得的,若不是浪费了大家的宝贵时间太可惜了。也没有图让大家猜,我的理解是在盲孔底部的侧面上加工一个球形孔,那是如何加工出来的呢?最好能传个图上来,就不用大家来猜了。
. j  p$ Y0 W6 P3 S5 O, h
$ I! W& P7 ^0 `) F$ u) M8 l4 y9 Z[ 本帖最后由 gaoyns 于 2008-8-2 16:43 编辑 ]

评分

参与人数 1三维币 +5 收起 理由
userkypdy + 5 积极参与

查看全部评分

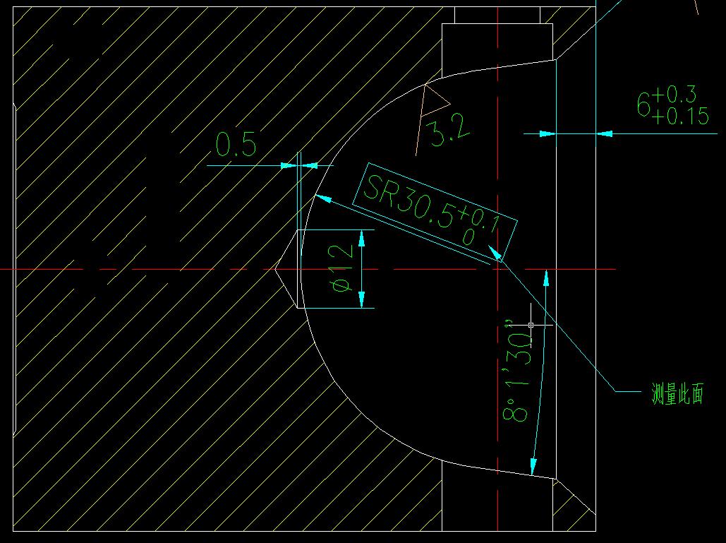
 楼主| 发表于 2008-8-2 15:20:40 | 显示全部楼层 来自: 中国安徽合肥

我到现在还不知道怎么上传图片

我也想把图片传上来,我也很着急# H+ Q" |2 l% Y

; t; V& e* Z2 {! I. M[ 本帖最后由 jianzhonggus 于 2008-8-3 06:50 编辑 ]
1220.JPG
发表于 2008-8-2 16:44:54 | 显示全部楼层 来自: 中国山西太原

回复 7# 的帖子

将图片转成JPG文件,编辑帖子,按“浏览”找到要上传的图片打开,“编辑帖子”就上来了。
发表于 2008-8-2 17:08:24 | 显示全部楼层 来自: 中国江苏常州
给个图把
, w7 _' S# [) ?) a1 A0 O/ D有的时候讨论半天什么都不是
发表于 2008-8-3 22:40:49 | 显示全部楼层 来自: 中国江苏苏州
采用如图的工具可以很好的解决这一问题
. I+ R5 m- U9 l7 h她是利用定位块作为玄长L从百分表反映玄高H的原理制成。使用时根据公式求得 玄高H的数值后用等于该尺寸的块规或塞规在百分表得一个度数定值。测量时让度数符合一至即半径达到要求
- u, W' i) {5 A- K" E
1 s) c4 \; Z5 I$ s: R- M! O
" q& o8 a  v4 e  z1 U- N9 o 未命名.jpg

评分

参与人数 1三维币 +10 收起 理由
userkypdy + 10 应助

查看全部评分

发表于 2008-8-12 14:28:38 | 显示全部楼层 来自: 中国江苏无锡
楼上的这个简图有点测内球面半径检具的味道.这是检具的一部分.

评分

参与人数 1三维币 +5 收起 理由
userkypdy + 5 积极参与

查看全部评分

发表于 2008-8-12 19:40:48 | 显示全部楼层 来自: 中国福建泉州
楼主的图纸类似于轴承球座的加工方法,SR30.5+0.1的公差要求并不高,可以直接卡板测量:
8 J" ?+ t0 x& y; Y  `' A线切割加工卡板,板料最好薄的0.3~0.5mm,一大一小进行检验;大的尺寸为R30.6,小的尺寸为30.5mm。------我司的习惯做法。

评分

参与人数 1三维币 +5 收起 理由
userkypdy + 5 应助

查看全部评分

发表于 2008-8-12 19:53:03 | 显示全部楼层 来自: 新加坡
看不懂了晕啊 :funk: :funk:
发表于 2008-8-12 21:03:46 | 显示全部楼层 来自: 中国江苏无锡
可以用检验球测量,球径一个上差的,一个下差的

评分

参与人数 1三维币 +5 收起 理由
userkypdy + 5 积极参与

查看全部评分

发表回复
您需要登录后才可以回帖 登录 | 注册

本版积分规则


Licensed Copyright © 2016-2020 http://www.3dportal.cn/ All Rights Reserved 京 ICP备13008828号

小黑屋|手机版|Archiver|三维网 ( 京ICP备2023026364号-1 )

快速回复 返回顶部 返回列表