QQ登录

只需一步,快速开始

登录 | 注册 | 找回密码

三维网

 找回密码
 注册

QQ登录

只需一步,快速开始

展开

通知     

查看: 3484|回复: 10
收起左侧

[已解决] 第一次用带轮,请教一下关于带轮轴向受力和定位的问题

 关闭 [复制链接]
发表于 2008-7-26 09:55:44 | 显示全部楼层 |阅读模式 来自: 中国天津

马上注册,结识高手,享用更多资源,轻松玩转三维网社区。

您需要 登录 才可以下载或查看,没有帐号?注册

x
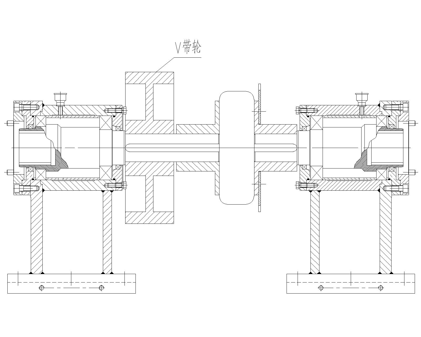
我们做一个试验台,主动轮装在电机上就不说了,关键是从动轮装在轴上两端通过泵架分别连接泵和马达。
$ ^) g  F% E4 K8 i. V) a! b现在带轮的轴向固定和轴向受力被人提出质疑,特此请教,望各位高手不吝赐教
9 ^( ^: ], q8 U) Y8 H, f
8 J+ j, P! O0 O, ~[ 本帖最后由 华氏911 于 2008-8-3 17:03 编辑 ]
发表于 2008-7-26 10:52:43 | 显示全部楼层 来自: 中国江苏常州
发个原理图纸把!!!!!!!!!!!!!!!
 楼主| 发表于 2008-7-26 11:10:25 | 显示全部楼层 来自: 中国天津
好的,请等一下,马上传
 楼主| 发表于 2008-7-26 11:15:10 | 显示全部楼层 来自: 中国天津
不好意思,还不太会用这个功能
 楼主| 发表于 2008-7-26 11:20:01 | 显示全部楼层 来自: 中国天津
不好意思,还不太会用这个功能,现在可以了
连接图.jpg
发表于 2008-7-26 11:50:58 | 显示全部楼层 来自: 中国山西太原
带轮的轴向定位,一边靠轴台,另一边挡圈或圆螺母固定。也可用紧定螺钉定位,这个轴没有留定位零件的位置,如果是刚搞的设计,可以加上定零件,若已经作好,可用紧定螺钉定位,从V带槽底向下钻螺钉底孔至轮毂上,然后攻丝。7 m# G: d8 \& c. [, ]
此结构不合理,带轮在两支架之间拆装V带很麻烦,若有条件改为悬壁为好。

评分

参与人数 1三维币 +5 收起 理由
华氏911 + 5 应助

查看全部评分

 楼主| 发表于 2008-7-26 13:20:14 | 显示全部楼层 来自: 中国天津
这是做功率回收的,目前也就想到这个方案。, S* A+ s0 l- J' o& _
电机是110KW的,现在的主要问题是好多人对轴向受力提出质疑,以为第一次做这个心里没底,希望各位指教
发表于 2008-7-26 16:52:39 | 显示全部楼层 来自: 中国江苏常州
这个的皮带是不合理的啊- T: E  _, @1 }2 o% `
改链条传动啊3 N4 s3 H, j" E+ i8 Z
这个大的功率
1 e: t* g9 l$ H0 I; R5 w4 t9 Z% y链条好啊
3 D8 L3 O' U0 ?5 ]+ t---------------------------8 D; e2 B4 t7 Z: u& c+ Q
平键也不合适) w, e5 Y0 N( W
改花键把5 O4 x$ ^2 \& `( e7 w  }3 K
---------------
* q& o' r% U9 j% K; {这个大4 |$ N- Y  q1 X1 \, g
轴向的定位不好用挡圈或则是紧定螺钉啊
' }& s4 R3 o. b) ]5 g* H---------------

评分

参与人数 1三维币 +5 收起 理由
userkypdy + 5 应助

查看全部评分

发表于 2008-7-27 17:52:31 | 显示全部楼层 来自: 中国浙江杭州
从图中看,轴承座之间,左边是皮带轮,右边是联轴器。由于皮带拉力较大,主要受力部位在联轴器的连接处,如果联轴器是刚性连接,则安装精度要求较高,否则会憋劲;如果联轴器是弹性连接,则弹性块寿命非常短。因此上面设计不太合理。可否这样该一下:去掉联轴器,将皮带轮装在泵轴上,在皮带轮左侧车一个定位凹台;左边装皮带轮的轴车成一个与皮带轮定位凹台配合的定位凸台,并用螺栓将两者相连。这样泵轴受力得到改善。左边轴承座应分为两体:轴承座和轴承座支架,在它们之间加一垫块,垫块的厚度应大于皮带厚度,目的是为了方便皮带的装卸。

评分

参与人数 1三维币 +8 收起 理由
userkypdy + 8 应助

查看全部评分

发表于 2008-7-27 19:24:37 | 显示全部楼层 来自: 中国福建泉州
皮带轮的固定可依靠轴的台阶或垫圈(垫套也行)或固定螺钉锁定。皮带轮固定了,其受的轴向力便可忽略。

评分

参与人数 1三维币 +5 收起 理由
userkypdy + 5 应助

查看全部评分

 楼主| 发表于 2008-7-28 08:41:30 | 显示全部楼层 来自: 中国天津
再问一个问题,从动轮这边用深沟球轴承应该没问题吧?还是应该用角接触的?
发表回复
您需要登录后才可以回帖 登录 | 注册

本版积分规则


Licensed Copyright © 2016-2020 http://www.3dportal.cn/ All Rights Reserved 京 ICP备13008828号

小黑屋|手机版|Archiver|三维网 ( 京ICP备2023026364号-1 )

快速回复 返回顶部 返回列表